Dieses um ca. 1700 erbaute, denkmalgeschützte, alt dörfliche Zins- und Renditeobjekt, besticht durch seine ruhige und doch zentrale Lage inmitten der Weinbaugemeinde Gau-Odernheim auf einem ca. 156 m² großen Grundstück.
Direkt im Ortskern gelegen, teilt sich dieses, zuletzt im Jahr 1999 / 2001 sanierte, Wohn- und Geschäftshaus in ein im Erdgeschoss gelegenes Ladengeschäft, sowie zwei darüberliegende Maisonette Wohnungen auf.
Die hintere Wohnung, sowie das Ladengeschäft sind derzeit vermietet und erzielen eine aktuelle jährliche Nettokaltmiete in Höhe von 12.840 €. Die vordere Wohnung ist nun frei und könnte somit direkt wieder, mit einem aktuellen Mietzins von ca. 9.240 € im Jahr, vermietet werden.
Die gesamten Wohn-/ Gewerbeflächen belaufen sich auf ca. 237 m². Ein weiteres Renditepotential bestünde in Form der möglichen Mietanpassungen.
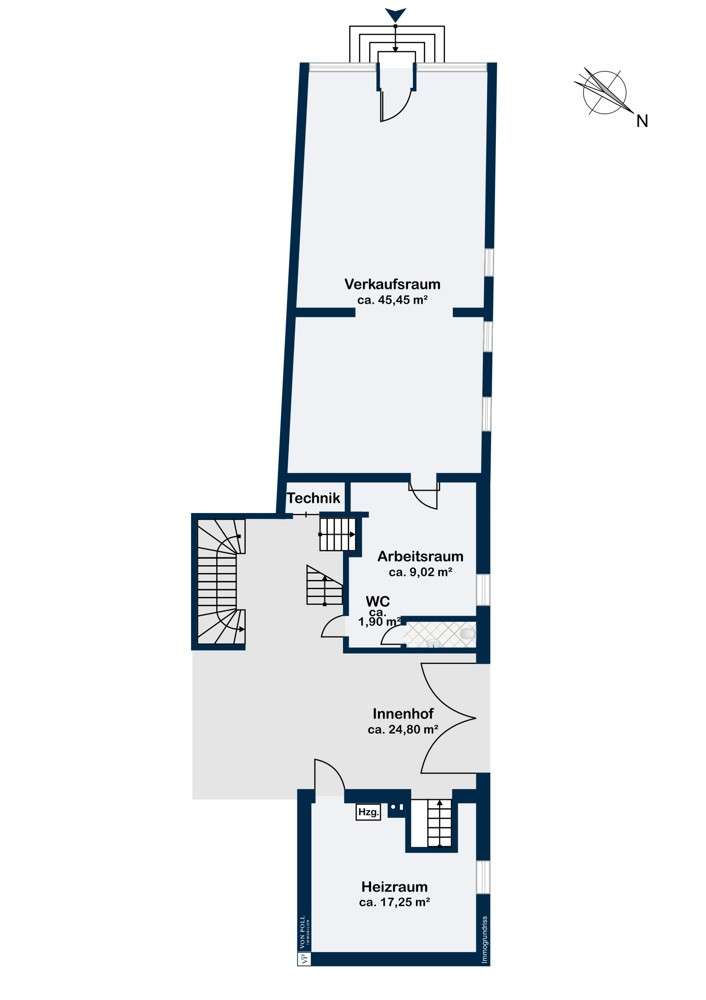
Das ca. 56,40 m² große Ladengeschäft, welches zurzeit als Blumenladen vermietet ist, teilt sich in einen großen Verkaufsraum, ein Arbeitszimmer, sowie ein kleines WC auf.
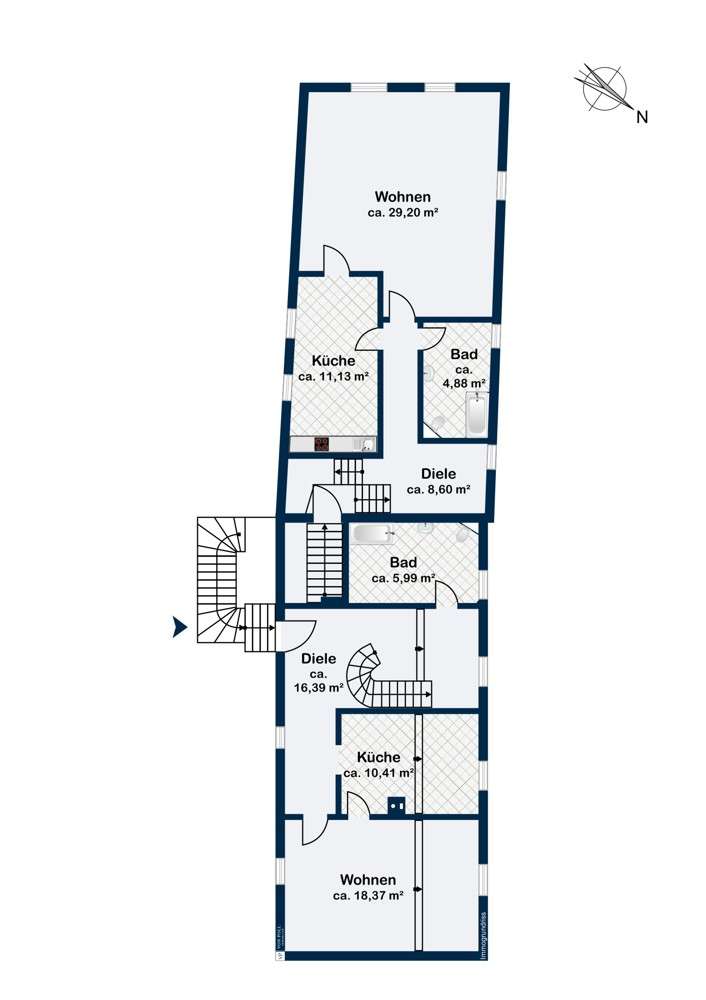
Über einen gemeinsamen Hofeingang, sind sowohl das Ladengeschäft, als auch die beiden, durch separate Treppenaufgänge getrennten, ca. 96,40 m² und ca. 84,30 m² großen Wohnungen erreichbar. Die Wohnfläche der vorderen Wohnung, verteilt sich auf eine Küche, ein Wohnzimmer, ein Bad und ein großes Dachstudio. Die zweite sehr helle Wohnung überzeugt mit einer Küche, einem Bad, einem Wohnzimmer, sowie drei Schlafzimmern im Dachgeschoss.
Weitere Abstellflächen befinden sich in zwei Kellergewölben, sowie im Innenhof. Beheizt wird die Immobilie über eine Gaszentralheizung. Eigene Stellplätze sind aufgrund der historischen Ortslage nicht vorhanden.
Die umfangreichen Sanierungs- und Modernisierungsmaßnahmen finden Sie nachfolgend als Anlage unter dem Punkt "Ausstattung und Details".
Auch sollte perspektivisch nach Prüfung und Rücksprache durch einen jeweiligen Steuerberater, im Zuge von Renovierungen / Sanierungsmaßnahmen eine Denkmalabschreibung von bis zu 50 % möglich sein.
Nutzen Sie unbedingt die Möglichkeit von umfangreichen staatlichen Förderprogrammen, bei denen Sie Zuschüsse oder günstige Darlehen für energetische und technische Sanierungen geltend machen können. Sprechen Sie uns diesbezüglich an, unsere Finanzierungsexperten helfen Ihnen dabei sehr gerne weiter.
Vereinbaren Sie gerne einen Besichtigungstermin und lassen sich von diesem attraktiven Angebot überzeugen!
Denkmalgeschütztes Wohn- und Geschäftshaus mit interessanter Renditemöglichkeit!
55239 Gau-Odernheim
Die vollständige Adresse der Immobilie erhalten Sie vom Anbieter.
Auf Karte anzeigen
Die vollständige Adresse der Immobilie erhalten Sie vom Anbieter.
Finanzierungszertifikat
In nur zwei Minuten zu Ihrem persönlichen Finanzierungszertifkat.
Infos
| Haustyp | Mehrfamilienhaus |
|---|---|
| Wohnfläche ca. | 180 m2 |
| Grundstücksfläche | 156 m2 |
| Zimmer | 7 |
| Badezimmer | 2 |
Kosten
| Kaufpreis |
320.000 € |
|---|---|
| Provision |
Provisionsfrei |
Finanzierungsrechner:
Kaufpreis:
600.000 €
Eigenkapital:
600.000 €
Monatliche Rate
0 €
Effektiver Jahreszins
0 %
Sollzinsbindung
10 Jahre
Bausubstanz & Energieausweis
| Baujahr | 1700 |
|---|---|
| Letzte Sanierung | 2001 |
| Objektzustand | Gepflegt |
| Qualität der Austattung | Normal |
| Heizungsart | Zentralheizung |
| Wesentliche Energieträger | Gas |
| Energieausweis | laut Gesetz nicht erforderlich |
Beschreibung des Objekts
Ausstattung
- denkmalgeschütztes Wohn- und Geschäftshaus
- vermietbare Fläche ca. 237 m²
- aktuelle jährliche Nettokaltmiete in Höhe von 12.840 €, weitere mögliche 9.240 €
- Ladengeschäft und zwei Maisonettewohnungen
- zwei Kellergewölbe
- abgeschlossener Innenhof
Sanierungen 1999 / 2001 (abgestimmt mit dem Denkmalschutzamt)
- Dachgeschoss Aufstockung mit kompletter neuer Dacheindeckung, Dämmung und Holzgebälk
- Einbau Gaszentralheizung für ganzes Objekt
- Umfangreiche Sanierung von Außenputz und Fachwerk
- Einbau überwiegend neuer Fenster
- Innenausbau beider Wohnungen
- Elektro und Sanitärsanierung
Lage
Gau-Odernheim mit seinen ca. 3.900 Einwohnern ist anerkanntes Kleinzentrum in der Verbandsgemeinde Alzey-Land. Das Weindorf ist geprägt von Landwirtschaft und Weinbau. Aber auch Handel und Gewerbe wird hier fleißig betrieben. Der tägliche Bedarf wird durch mehrere Einkaufsmöglichkeiten (SB-Märkte), sowie Banken, Allgemein-, Dental- und Veterinärmediziner vor Ort gedeckt.
Gau-Odernheim ist eine aufstrebende Gemeinde. Kontinuierlich und bedacht wurden in der Vergangenheit Baugebiete für die Neuansiedlung von Bürgern erschlossen.
Zahlreiche aktive Vereine bieten Ihnen vielfältige Gelegenheiten für allerlei sportliche Betätigung. Hierfür stehen ein Sportplatz, verschiedene Hallen und ein Tennisplatz zur Verfügung. Gau-Odernheim besitzt Kindergärten, eine Grundschule und eine Realschule.
Eingerahmt von Weinbergen haben Sie rund um das beschauliche Dorf vielfältige Möglichkeiten zum Wandern und Radeln.
Die Autobahnen A 61 und A 63 erreichen Sie jeweils in 5 Minuten.
Sonstige Angaben
GELDWÄSCHE: Als Immobilienmaklerunternehmen ist die von Poll Immobilien GmbH nach § 2 Abs. 1 Nr. 14 und § 11 Abs. 1, 2 Geldwäschegesetz (GwG) dazu verpflichtet, bei der Begründung einer Geschäftsbeziehung die Identität des Vertragspartners festzustellen und zu überprüfen, bzw. sobald ein ernsthaftes Interesse an der Durchführung des Immobilienkaufvertrages besteht. Hierzu ist es erforderlich, dass wir nach § 11 Abs. 4 GwG die relevanten Daten Ihres Personalausweises festhalten (wenn Sie als natürliche Person handeln) – beispielsweise mittels einer Kopie. Bei einer juristischen Person benötigen wir eine Kopie des Handelsregisterauszugs, aus welchem der wirtschaftlich Berechtigte hervorgeht. Das Geldwäschegesetz sieht vor, dass der Makler die Kopien bzw. Unterlagen fünf Jahre aufbewahren muss. Als unser Vertragspartner haben Sie auch eine Mitwirkungspflicht nach § 11 Abs. 6 GwG.
HAFTUNG: Wir weisen darauf hin, dass die von uns weitergegebenen Objektinformationen, Unterlagen, Pläne etc. vom Verkäufer bzw. Vermieter stammen. Eine Haftung für die Richtigkeit oder Vollständigkeit der Angaben übernehmen wir daher nicht. Es obliegt daher unseren Kunden, die darin enthaltenen Objektinformationen und Angaben auf ihre Richtigkeit hin zu überprüfen. Alle Immobilienangebote sind freibleibend und vorbehaltlich Irrtümer, Zwischenverkauf- und Vermietung oder sonstiger Zwischenverwertung.
UNSER SERVICE FÜR SIE ALS EIGENTÜMER:
Planen Sie den Verkauf oder die Vermietung Ihrer Immobilie, so ist es für Sie wichtig, deren Marktwert zu kennen. Lassen Sie kostenfrei und unverbindlich den aktuellen Wert Ihrer Immobilie professionell durch einen unserer Immobilienspezialisten einschätzen. Unser bundesweites und internationales Netzwerk ermöglicht es uns, Verkäufer bzw. Vermieter und Interessenten bestmöglich zusammenzuführen.
Grundriss
Erdgeschoss
>
>
Obergeschoss
>
>
Dachgeschoss
>
>
Adresse
55239 Gau-Odernheim
Interessante Orte
Preis- und Lageinformationen
Preistrend für Bestandsimmobilien in Gau-Odernheim