Verkauft wird ein Baugrundstück für 229.000 € mit vorhandener Architektenplanung und Baugenehmigung.
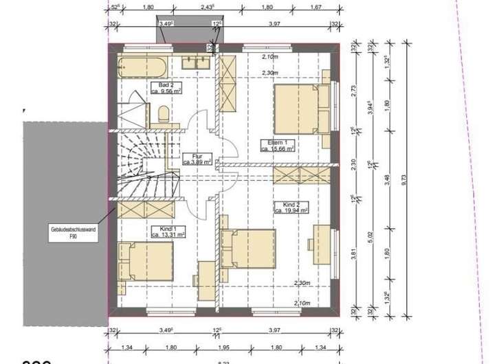
Keine Maklerprovison // Baugrundstück mit Baugenehmigung für 130m2 Einfamilienhaus in Lurup
22547 Hamburg
Die vollständige Adresse der Immobilie erhalten Sie vom Anbieter.
Auf Karte anzeigen
Die vollständige Adresse der Immobilie erhalten Sie vom Anbieter.
Finanzierungszertifikat
In nur zwei Minuten zu Ihrem persönlichen Finanzierungszertifkat.
Infos
| Vermarktungsart | Kaufen |
|---|---|
| Grundstücksfläche | 230 m2 |
| Erschließung | Teilerschlossen |
| Empfohlene Nutzung | Einfamilienhaus |
| Bebaubar nach | Bebauungsplan |
| Verfügbar ab | Sofort |
Kosten
| Miete pro Jahr |
229.000 € |
|---|---|
| Provision | Nein |
Finanzierungsrechner:
Kaufpreis:
600.000 €
Eigenkapital:
600.000 €
Monatliche Rate
0 €
Effektiver Jahreszins
0 %
Sollzinsbindung
10 Jahre
Beschreibung des Objekts
Lage
Das angebotene Grundstück befindet sich in ruhiger Wohnlage von Hamburg-Lurup mit einer gewachsenen Infrastruktur und überwiegender Einfamilien- und Doppelhausbebauung. Schulen und Kindergarten sowie Einkaufsmöglichkeiten sind gut erreichbar. Mit dem Bus 186 erreicht man in 8 Minuten den Bahnhof Elbgaustraße, wo man eine sehr gute Anbindung in alle Teile Hamburgs hat. Den Flughafen erreicht man in ca. 20 Minuten mit dem PKW.Das Grundstück selber ist das letzte Grundstück einer sogenannten „Kettenhauszeile“ und liegt somit als Eckgrundstück sehr ruhig. Die sonnige Süd-Ost-Ausrichtung bietet den ganzen Tag Sonne. Das Grundstück verfügt über keinen eigenen KfZ-Stellplatz. An der öffentlichen Ohlestraße hingegen sind ausreichend viele Parkmöglichkeiten vorhanden. Die Entfernung zur Straße beträgt rund 40 Meter.