Hier könnte Ihr ganz persönlicher Wohntraum entstehen - von einem freistehenden Einfamilienhaus optional mit Einliegerwohnung.
In bester Villenlage im Herzen von Ratingen Hösel befindet sich dieses wunderschöne und großzügige Baugrunstück mit altem
Baumbestand.
Der Garten verfügt über eine Südwest Ausrichtung.
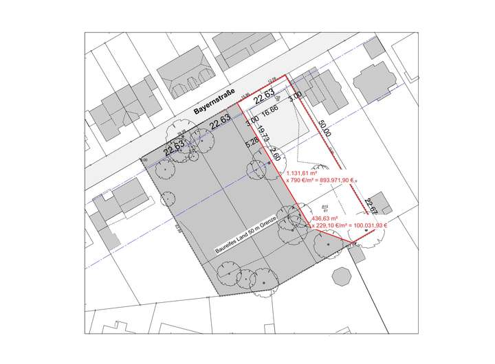
Das parkähnliche Grundstück liegt im Geltungsbereich des Bebauungsplans "H 408 - Bayernstraße/ Sachsenstraße/ Eickelscheidt" der Stadt Ratingen. Innerhalb der im Lageplan dargestellten Baugrenze könnte hier ein zweigeschossiger Traum vom Eigenheim mit maximal 2 Wohneinheiten verwirklicht werden.
Auf dem zu veräußerden Grundstück ist in offener Bauweise ein Einzelhaus zulässig.
Die festgesetzten Baugrenzen dürfen dabei auf ihrer gesamten Länge bis zu einer Tiefe von 3,50 m durch Terrassen überschritten werden.
Daten zum Baugrundstück:
Größe des Baugrundstücks: ca. 1.568,24 m²
max. GRZ I: 328,80 m²
maximale Fläche:
EG: 328,80 m²
DG: 328,80 m² * 3/4 = 246,60 m²
Gesamt: 575,40 m²
Ihnen bieten sich hier eine einmalige Gelegenheit zu einem Grundstückskauf in bester, ruhiger, gediegener und naturnaher Wohnlage.
Zu Verkaufen ! Verwirklichen Sie Ihren Wohntraum in bester Höseler Villenlage
Bayernstraße 33,
40883 Ratingen
Auf Karte anzeigen
Finanzierungszertifikat
In nur zwei Minuten zu Ihrem persönlichen Finanzierungszertifkat.
Infos
| Vermarktungsart | Kaufen |
|---|---|
| Grundstücksfläche | 1.568 m2 |
| Erschließung | Erschlossen |
| Grundflächenzahl (GRZ) | 0.2 |
| Bebaubar nach | Bebauungsplan |
| Verfügbar ab | 25.11.2025 |
Kosten
| Miete pro Jahr |
0 € |
|---|---|
| Provision | Nein |
Finanzierungsrechner:
Kaufpreis:
600.000 €
Eigenkapital:
600.000 €
Monatliche Rate
0 €
Effektiver Jahreszins
0 %
Sollzinsbindung
10 Jahre