Bei dem angebotenen Grundstück handelt es sich um 743 m² großes Baugrundstück im Ortskern von Leutershausen/ Hischberg.
Das Grundstück ist aktuell mit einem Bestandsgebäude von1980 bebaut, mit ca 218 m² Wohnfläche. Das Gebäude ist nicht mehr zeitgemäß.
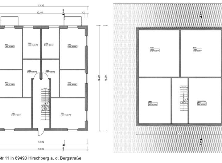
Ein Visualisierung nach dem örtlichen Bebauungsplan für eine mögliche Neubebauung eines Mehrfamilienhauses liegen bereits vor.
Es wurde keine Bauvoranfrage gestellt! Jedoch wurde die Beplanung über 550 m² / 410m² Mietflächen mit den ortlichen Gegebenheiten abgeglichen.
Großes Baugrundstück mit Altbestand bebaut- in gesuchter Lage von Hirschberg
Johann-Dörk-Straße 11,
69493 Hirschberg an der Bergstraße
Auf Karte anzeigen
Finanzierungszertifikat
In nur zwei Minuten zu Ihrem persönlichen Finanzierungszertifkat.
Infos
| Vermarktungsart | Kaufen |
|---|---|
| Grundstücksfläche | 743 m2 |
| Erschließung | Erschlossen |
| Empfohlene Nutzung | Mehrfamilienhaus, Villa |
| Bebaubar nach | Bebauungsplan |
| Verfügbar ab | nach Vereinbarung |
Kosten
| Miete pro Jahr |
689.000 € |
|---|---|
| Provision |
2,38 inkl. 19% MwSt. |
Finanzierungsrechner:
Kaufpreis:
600.000 €
Eigenkapital:
600.000 €
Monatliche Rate
0 €
Effektiver Jahreszins
0 %
Sollzinsbindung
10 Jahre
Beschreibung des Objekts
Lage
Das Grundstück befindet sich in einer attraktiven Lage von Leutershausen/ Hischberg
Trotz der ruhigen Wohnlage ist Hirschberg gut an die A5 angebunden. Die umliegenden Städte wie Mannheims und Heidelberg sind nur einige Kilometer entfernt. In wenigen Gehminuten ist der Bahnhof von Großsachsen erreichbar. Das Grundstück befindet sich in einem reinen Wohngebiet. Geschäfte des täglichen Bedarfs, Restaurants und öffentliche Einrichtungen (Kindergarten, Schule etc.) sind fußläufig erreichbar.
Hirschberg ist eine gewachsene Gemeinde mit ca 10000 Einwohnern an der Bergstrasse
Als Pendlergemeinde liegt es nah an Mannheim und Heidelberg
75 km von Frankfurt
15 km Heidelberg
20 km Mannheim
Strassenbahn
gute Anbindung an die A5
Sonstige Angaben
Erschlossenes Grundstück mit Bestandsgebäude
Bautiefe zwischen Baulinie und Baugrenze ergibt ca 13,3x 15 m² Vollgeschosse a ca 200 m² plus Dachgeschoß ca 150 m²
ca 410 vermietbare und verkaufbare Flächen