In der gefragten Riegeler Straße in 79331 Teningen entsteht diese moderne Doppelhaushälfte in zweigeschossiger Bauweise – ein hochwertiger Neubau von WeberHaus im Effizienzhaus-40-Standard. Auf einem 282 m² großen Grundstück bietet das Haus rund 155 m² Wohnfläche und kombiniert zeitgemäße Architektur mit einer ruhigen, familienfreundlichen Lage in zentraler Umgebung.
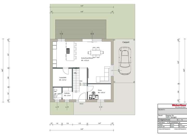
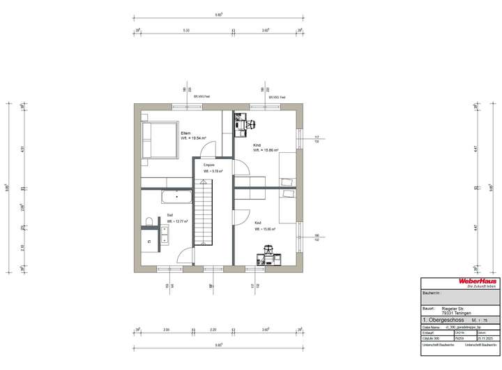
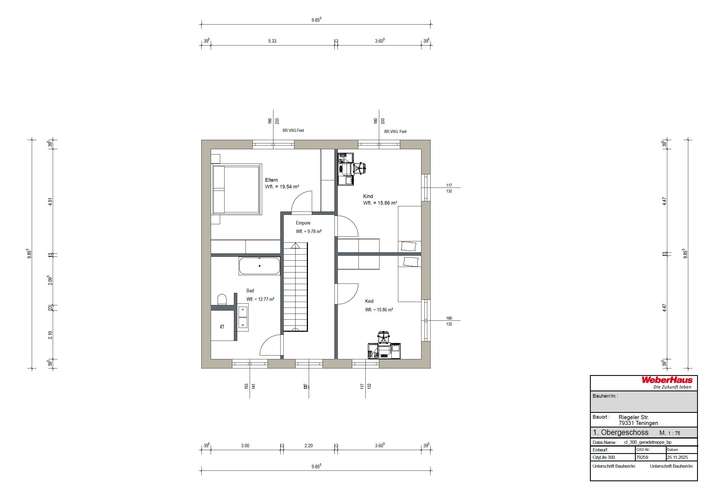
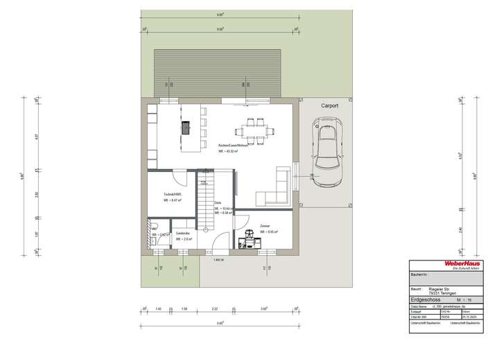
Die Immobilie überzeugt mit einem klar strukturierten Grundriss: Im Erdgeschoss befindet sich ein großzügiger Wohn- und Essbereich mit offener Küche und direktem Zugang zum privaten Garten, der bewusst abgewandt von der Straße liegt und viel Privatsphäre bietet. Ergänzt wird das Erdgeschoss durch ein Gäste-WC und einen Hauswirtschaftsraum. Im Obergeschoss befinden sich flexibel planbare Schlafbereiche für Eltern und Kinder sowie ein modernes Familienbad – die Grundrissgestaltung kann nach Käuferwunsch individuell angepasst werden, um persönlichen Wohnbedürfnissen gerecht zu werden. Die Ausstattung entspricht dem hochwertigen WeberHaus-Standard und umfasst unter anderem eine Luft-Wärmepumpe, Fußbodenheizung, große Fensterflächen, energieeffiziente Bauweise, wohngesunde Materialien sowie eine moderne Sanitärausstattung. Im Kaufpreis enthalten sind zudem eine hochwertige Einbauküche, ein Carport sowie sämtliche Kaufnebenkosten.
Die Lage überzeugt durch ihre Nähe zu Schulen, Kindergärten, Einkaufsmöglichkeiten, Sportanlagen und dem öffentlichen Nahverkehr. Durch die sehr gute Anbindung an die B3 und die Autobahn A5 erreicht man schnell Freiburg, Emmendingen, den Kaiserstuhl oder Offenburg.
Diese Immobilie ist ideal für Familien und Eigennutzer, die Wert auf Qualität, Energieeffizienz, modernes Wohnen und eine zentrale, dennoch ruhige Lage legen. Der Kaufpreis beträgt ab 789.000 €.
Moderne Doppelhaushälfte in zentraler Lage von Teningen – hochwertiger Neubau im Effizienzhaus-40-S…
Riegeler Straße 46,
79331 Teningen
Auf Karte anzeigen
Finanzierungszertifikat
In nur zwei Minuten zu Ihrem persönlichen Finanzierungszertifkat.
Infos
| Haustyp | Doppelhaushaelfte |
|---|---|
| Etagenzahl | 2 |
| Wohnfläche ca. | 155 m2 |
| Nutzfläche | 0 m2 |
| Grundstücksfläche | 282 m2 |
| Zimmer | 5 |
| Schlafzimmer | 3 |
| Badezimmer | 1 |
| Garage/Stellplatz | Carport |
| Anzahl Garage/Stellplatz | 2 |
Kosten
| Kaufpreis |
789.000 € |
|---|
Finanzierungsrechner:
Kaufpreis:
600.000 €
Eigenkapital:
600.000 €
Monatliche Rate
0 €
Effektiver Jahreszins
0 %
Sollzinsbindung
10 Jahre
Bausubstanz & Energieausweis
| Baujahr | 2026 |
|---|---|
| Bauphase | Haus in Planung (projektiert) |
| Objektzustand | Erstbezug |
| Heizungsart | Wärmepumpe |
Beschreibung des Objekts
Sonstige Angaben
WeberHaus GmbH & Co. KG
Bauforum Umkirch
Hugstetter Str. 4
79224 Umkirch
Telefon: 07665 934568-0
Fax: 07665 934568-20
E-Mail: stefan.roder@weberhaus.de
Öffnungszeiten: nach Vereinbarung
Grundriss
Planung_EG_251125.jpg
>
>
Planung_OG_251125.jpg
>
>
Adresse
Riegeler Straße 46, 79331 Teningen
Interessante Orte
Preis- und Lageinformationen
Preistrend für Bestandsimmobilien in Teningen