Das Satteldachhaus Cara zeigt schon von außen einige Besonderheiten und seinen ganz speziellen Charme: Neben einer flachen Dachneigung wurden Fenster im Drempelbereich für lichtdurchflutete Räume sowie eine Holzfassade angebracht. Innen überzeugt das Architektenhaus mit einer klaren Grundrissaufteilung auf 121 Quadratmetern Wohnfläche, vier Zimmern und zwei Vollgeschossen.
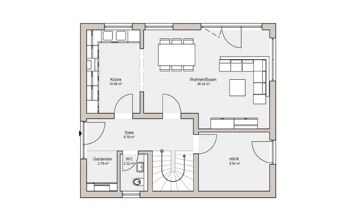
Im Erdgeschoss bietet das Familienhaus eine halboffene Küche zum großzügigen Wohn- und Essbereich mit bodentiefen Fenstern. Daneben gibt es auf dieser Etage ein Gäste-WC und eine Diele mit Garderobe. Praktisch ist auch der Hauswirtschaftsraum mit direktem Zugang in den Garten. Im Dachgeschoss stehen den Bewohnern große Individualräume zur Verfügung. Das Kinder- und das Eltern-Schlafzimmer bieten jeweils über 16 Quadratmeter Wohnfläche. Komplettiert wird die Etage durch ein Familien-Badezimmer und ein praktisches Home-Office.
Dieses Haus wird nach Ihren individuellen Wünschen geplant und ausgestattet!
Eigentum und Vermögen statt Miete! (inkl. Grundstück)
53773 Hennef (Sieg)
Die vollständige Adresse der Immobilie erhalten Sie vom Anbieter.
Auf Karte anzeigen
Die vollständige Adresse der Immobilie erhalten Sie vom Anbieter.
Finanzierungszertifikat
In nur zwei Minuten zu Ihrem persönlichen Finanzierungszertifkat.
Infos
| Haustyp | Einfamilienhaus |
|---|---|
| Wohnfläche ca. | 121 m2 |
| Grundstücksfläche | 500 m2 |
| Zimmer | 4 |
| Schlafzimmer | 3 |
| Badezimmer | 1 |
| Anzahl Garage/Stellplatz | 2 |
Kosten
| Kaufpreis |
533.683 € |
|---|---|
| Provision | Nein |
Finanzierungsrechner:
Kaufpreis:
600.000 €
Eigenkapital:
600.000 €
Monatliche Rate
0 €
Effektiver Jahreszins
0 %
Sollzinsbindung
10 Jahre
Bausubstanz & Energieausweis
| Baujahr | 2026 |
|---|---|
| Bauphase | Haus in Planung (projektiert) |
| Objektzustand | Erstbezug |
| Qualität der Austattung | Gehoben |
| Heizungsart | Wärmepumpe |
| Wesentliche Energieträger | Strom |
| Energieausweis | liegt vor |
| Energieausweistyp | Bedarfsausweis |
| Energieverbrauchskennwert | 20,3 kWh/(m²*a) |
| Energieeffizienzklasse | A+ |
20,3
kWh/(m²*a)
Energieeffizienzklasse A+
- A+
- A
- B
- C
- D
- E
- F
- G
- H
- 0
- 25
- 50
- 75
- 100
- 125
- 150
- 175
- 200
- 225
- >250
Beschreibung des Objekts
Ausstattung
4 Zimmer, offene Küche, Diele mit Garderobe, WC, Flur, Bad, Hauswirtschaftsraum
Das gezeigte Traumhaus im Überblick:
+ Schlüsselfertiges Massivhaus im Sinne der Ausstattungsbeschreibung "Edition 25"
+ Zukunftsorientierte Energieausstattung in Form einer Luft-Wasser-Wärmepumpe und Fußbodenheizung sowie einer kontrollierten Wohnraumlüftung mit Wärmerückgewinnung
+ Inklusive Bodenplatte
Beste Markenausstattung in jedem Kern-Haus:
+ Zimmermannsmäßiger Dachstuhl aus Konstruktionsvollholz
+ Dacheindeckung mit Betondachsteinen von Braas
+ Hochwertiger Kunstharz-Außenputz für eine langlebige Fassade
+ Vollständige Badausstattung von Villeroy & Boch mit Badewanne und flacher Duschwanne sowie einer Echtglasduschkabine
+ Fliesen von Villeroy & Boch in Bad und WC
+ Haustür mit 5-fach-Sicherheitsverriegelung
+ Erstklassige Innentüren der Marke Herholz
+ Fenster mit 3-Scheiben-Wärmeschutzverglasung und Rollläden
+ Stahl-Holz-Treppe mit individueller Farbgestaltungsmöglichkeit
+ Vollständige und überdurchschnittliche Elektroausstattung inklusive Klingelanlage und Netzwerkdosen
+ Rauchmelder für Ihre Sicherheit
+ Alle Leistungen aus einer Hand
+ Alle Planungs- und Architektenleistungen
+ Einsatz regionaler Handwerksbetriebe
+ Baubegleitende 5-Phasen-TÜV-Prüfung und Blower-Door-Test
+ Individuelle Anpassung auf Ihre Bedürfnisse
+ Auf Wunsch mit Keller erhältlich
+ Auf Wunsch mit weiteren Energietechniken erhältlich
Lage
Lageart
Das Grundstück liegt in einem innerstädtischen bis stadtrandnahen Bereich von Hennef mit überwiegend Wohnnutzung und lokal gemischter Infrastruktur. Die Lage verbindet ruhige Wohnqualität mit guter Erreichbarkeit wichtiger Versorgungseinrichtungen.
Mikrostandort (sofortes Umfeld)
Nachbarbebauung: Überwiegend Einfamilien- und Mehrfamilienhäuser; einzelne gewerbliche bzw. dienstleistende Nutzungen an der Siegtalstraße.
Erschließung: Direkter straßenseitiger Zugang; Anschluss an örtliche Versorgungsleitungen (Wasser, Abwasser, Strom, Telekom) ist in Wohngebieten standardmäßig vorhanden.
Freiflächen und Begrünung: Bäume und private Gärten in der Umgebung sorgen für ein grünes Straßenbild; kurze Wege zu Parks und Grünzügen.
Lärm- und Emissionssituation: Mäßige Verkehrsbelastung durch die Siegtalstraße; Lärmeeinfluss ist tagsüber spürbar, nachts in der Regel reduziert.
Makrostandort (Stadtteil / regionale Anbindung)
Zentralität: Gute Lage innerhalb von Hennef mit schnellen Verbindungen zum Stadtzentrum und zu zentralen Einrichtungen (Rathaus, Einkauf, Ärzte).
Öffentlicher Verkehr: Bushaltestellen in fußläufiger Entfernung; Hauptbahnhof / S-Bahn-Anbindung von Hennef und benachbarten Orten gut erreichbar, dadurch einfache Anbindung an Bonn und Köln.
Straßenverkehr: Gute Anbindung an die regionalen Verkehrsachsen und Autobahnen (Zubringer innerhalb kurzer Fahrzeit), Pendelverbindungen in die Umgebung sind komfortabel.
Fahrrad- und Fußwege: Vorhandene Geh- und Radwege für Alltagswege und Freizeit.
Versorgung und Infrastruktur
Einzelhandel & Versorgung: Lebensmittelläden, Bäckereien und Discountern in kurzer Entfernung; größere Einkaufszentren in Hennef oder Nachbarstädten.
Bildung & Betreuung: Kitas, Grund- und weiterführende Schulen in Hennef gut erreichbar.
Gesundheit: Hausärzte, Apotheken und Fachärzte in Stadtteilnähe; Krankenhausversorgung in der Region vorhanden.
Freizeit & Kultur: Sportanlagen, Vereine, Wander- und Radwege entlang der Sieg so...
Sonstige Angaben
Kern-Haus
Kern-Haus baut individuelle und massive Architektenhäuser zu einem attraktiven Preis-Leistungs-Verhältnis – und das bereits mit einer Erfahrung seit 1980. Bei Kern-Haus erhalten Sie unter anderem 10 Jahre Gewährleistung auf die wesentlichen Bauleistungen, bis zu 24 Monate Preissicherheit sowie eine dokumentierte 5-Phasen-TÜV-Prüfung während der Bauphase. Jedes Kern-Haus als Effizienzhaus 40 ist bereits QNG-zertifiziert durch die Deutsche Gesellschaft für nachhaltiges Bauen (DGNB).
40 Jahre Expertise für das massive, energieeffiziente Bauen: Kern-Haus realisiert Massivhäuser in Ziegel, Bims, Porenbeton oder Stahlbeton (DuoTherm).
Kern-Haus setzt auf eine hohe Bauqualität der Handwerker und auf eine große Auswahl starker Marken. So verwendet Kern-Haus beim Bau Ihres Hauses nur hochwertige Markenprodukte renommierter Hersteller – wie etwa Produkte von Villeroy & Boch.
Preise und Auszeichnungen von Kern-Haus:
- German Brand Award in den Jahren 2018 und 2021
- Hausbau Design Award: Sieger in den Jahren 2017, 2018, 2019, 2020, 2021, 2022 und 2023
- Deutscher Traumhauspreis: Sieger in den Jahren 2014, 2015, 2016 und 2018 und Silber 2017, 2020 und 2021
- Mittelstandspreis "Top 100" in den Jahren 2014, 2016, 2018, 2020 und 2022
- German Design Award im Jahr 2018
Weitere Informationen
Der gezeigte Preis versteht sich inklusive Grundstück und exklusive der Baunebenkosten.
Grundriss
Grundriss Erdgeschoss
>
>
Grundriss Dachgeschoss
>
>
Adresse
53773 Hennef (Sieg)
Interessante Orte
Preis- und Lageinformationen
Preistrend für Bestandsimmobilien in Hennef (Sieg)