Ein Paradies am Stadtrand: Naturerlebnis trifft Wohnqualität
Zum Verkauf steht ein äußerst rares und hochattraktives Baugrundstück in der begehrten Wohngegend Heidelberg-Ziegelhausen. Die Lage in der Wilhelmsfelder Straße 27 verbindet auf einzigartige Weise die Ruhe und Schönheit der Natur mit der hervorragenden Infrastruktur der Universitätsstadt Heidelberg.
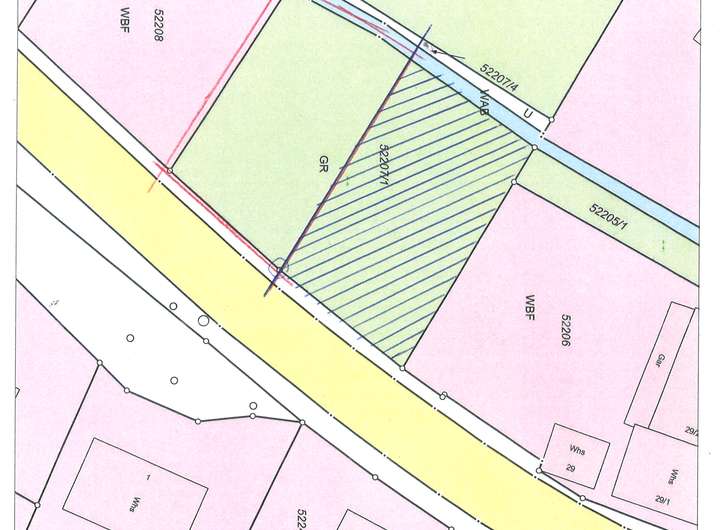
Das ca. 400 m² große, voll erschlossene Grundstück bietet die perfekte Grundlage für die Realisierung eines individuellen Einfamilienhauses (EFR).
Baurecht und Potenzial:
Die Bebaubarkeit richtet sich nach § 34 BauGB (Baugesetzbuch), was bedeutet, dass sich die geplante Bebauung harmonisch in die unmittelbare Nachbarschaft einfügen muss. In diesem gewachsenen Umfeld ist die Errichtung eines charmanten Einfamilienhauses mit zwei Vollgeschossen + einem ausbaubaren Dachgeschoß realistisch. Dies ermöglicht eine großzügige Wohnfläche für Familien mit Kindern oder Paare.
Exklusives Baugrundstück in Bestlage: Ihr Traum vom Eigenheim in HD-Ziegelhausen
Wilhelmsfelder Str. 27,
69118 Heidelberg
Auf Karte anzeigen
Finanzierungszertifikat
In nur zwei Minuten zu Ihrem persönlichen Finanzierungszertifkat.
Infos
| Vermarktungsart | Kaufen |
|---|---|
| Grundstücksfläche | 400 m2 |
| Erschließung | Erschlossen |
| Empfohlene Nutzung | Einfamilienhaus |
| Bebaubar nach | Bebauungsplan |
| Verfügbar ab | Sofort |
Kosten
| Miete pro Jahr |
250.000 € |
|---|---|
| Provision |
4,76% Die Provision ist fällig und zahbar am Tage der notariellen Beurkundung |
Finanzierungsrechner:
Kaufpreis:
600.000 €
Eigenkapital:
600.000 €
Monatliche Rate
0 €
Effektiver Jahreszins
0 %
Sollzinsbindung
10 Jahre
Beschreibung des Objekts
Lage
Die unvergleichliche Lage: Ziegelhausen-Wilhelmsfelder Straße
Die Lage ist das absolute Highlight dieses Angebots:
• Idyllisch und Naturverbunden: Das Grundstück liegt direkt angrenzend an Wälder und wird von den grünen Hängen des Odenwaldes umgeben. Genießen Sie eine unverbaubare Aussicht, reine Luft und unmittelbaren Zugang zu Wanderwegen und Erholungsmöglichkeiten.
• Ruheoase: Trotz der verkehrsgünstigen Anbindung ist die Lage extrem ruhig und frei von Durchgangsverkehrslärm – ideal für entspanntes Wohnen.
Optimale Infrastruktur
Die Anbindung ist trotz der naturnahen Lage hervorragend:
• Öffentlicher Nahverkehr: Die Bushaltestelle ist nur wenige Meter vom Grundstück entfernt. Von hier aus bestehen direkte Verbindungen ins Zentrum von Heidelberg und zu den Schulen.
• Buslinien: Sie profitieren von den Linien 34, 34E, 36E, 37, 37E und M4, die eine schnelle und flexible Mobilität gewährleisten.
• Bildungseinrichtungen: Kindergärten und Schulen befinden sich in unmittelbarer Nähe und sind bequem zu erreichen, was diesen Standort besonders attraktiv für Familien macht.
Sonstige Angaben
Bitte Ihre Anfragen mit vollständigen Kontaktdaten: Vorname, Name, Anschrift und Telefon / Mobil.