Baujahr 1992
Grundstück setzt sich auf verschiedenen Teilstücken zusammen:
Gebäude und Freifläche ca. 190 m², + Stellplätze und Wegeanteile von 23 m², 29 m², 22,60 m², Gesamtfläche ca. 265 m²
Freistellung nach Absprache Frühjahr 2026
Die Immobilie ist in einem sehr guten Zustand und real geteilt.
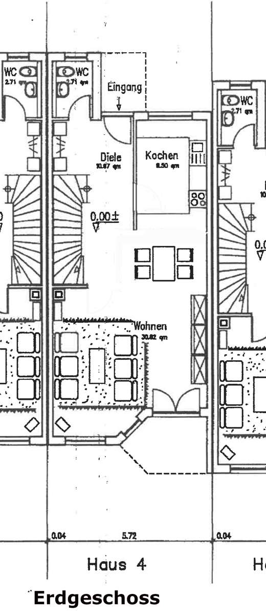
Erdgeschoss:
freundlicher Eingangsbereich, Wohn-Essbereich mit Ausgang zur großen Terrasse (teilweise überdacht), Küche, Gäste-WC
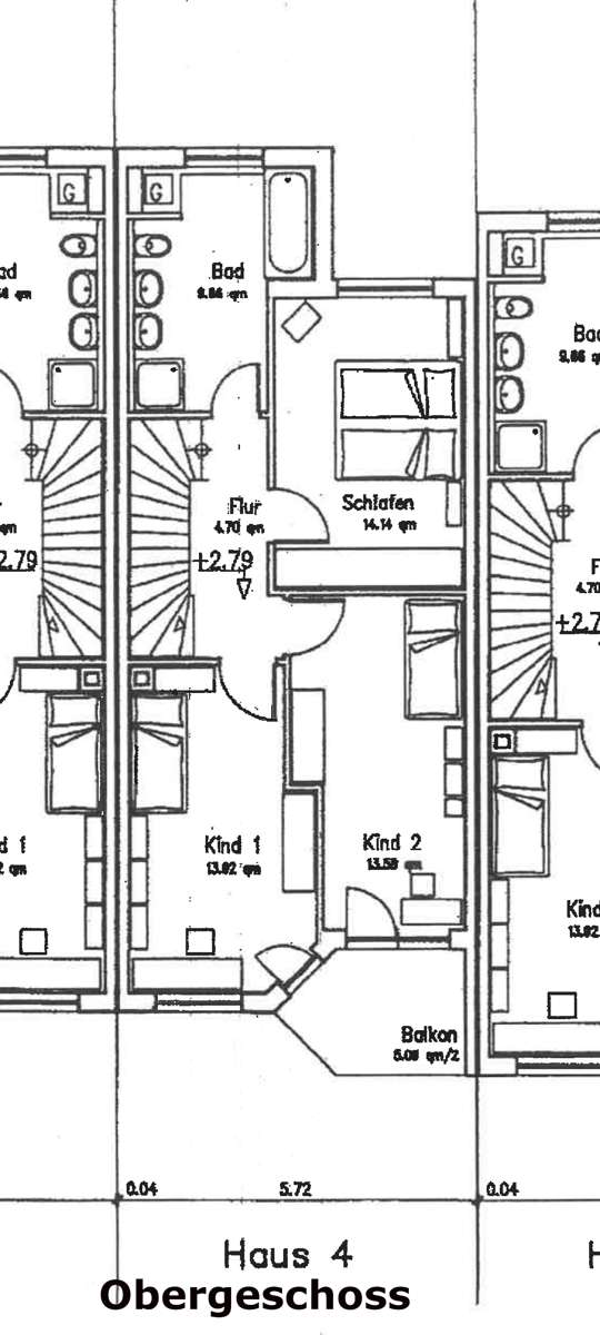
Obergeschoss:
3 Schlafzimmer, Wannen-Duschbad-WC, Flur, Balkon,
Wohnfläche EG und OG ca. 107 m²
+ ausgebautes Dachstudio mit 2-Zimmern, Dusch/Bad-WC
von ca. 31 m²
Gesamtwohnfläche ca. 140 m²
zzgl. Keller ca. 55 m²
zzgl. 2 Pkw-Stellplätze
Der Garten mit einem Gartenhaus grenzt direkt an einem Grünstreifen.
Familienfreundliches, modernes, Raumwunder mit 6-Zimmern Großes Reihenmittelhaus -3-er Gruppe,
65232 Taunusstein
Die vollständige Adresse der Immobilie erhalten Sie vom Anbieter.
Auf Karte anzeigen
Die vollständige Adresse der Immobilie erhalten Sie vom Anbieter.
Finanzierungszertifikat
In nur zwei Minuten zu Ihrem persönlichen Finanzierungszertifkat.
Infos
| Haustyp | Reihenmittelhaus |
|---|---|
| Wohnfläche ca. | 140 m2 |
| Nutzfläche | 55 m2 |
| Grundstücksfläche | 213 m2 |
| Bezugsfrei ab | Nach Vereinbarung |
| Zimmer | 6 |
| Schlafzimmer | 5 |
| Badezimmer | 2 |
Kosten
| Kaufpreis |
549.000 € |
|---|---|
| Provision | Nein |
Finanzierungsrechner:
Kaufpreis:
600.000 €
Eigenkapital:
600.000 €
Monatliche Rate
0 €
Effektiver Jahreszins
0 %
Sollzinsbindung
10 Jahre
Bausubstanz & Energieausweis
| Baujahr | 1992 |
|---|---|
| Objektzustand | Neuwertig |
| Heizungsart | Gas-Heizung |
| Wesentliche Energieträger | Gas |
| Energieausweis | liegt vor |
| Energieausweistyp | Bedarfsausweis |
| Energieverbrauchskennwert | 99,2 kWh/(m²*a) |
Beschreibung des Objekts
Ausstattung
Familienfreundliches großes 1-Familien-Reihenmittelhaus!
Top Gesamtzustand, hier können Sie einfach einziehen!
- sehr gepflegter Zugang zum Haus
- hochwertige Bodenbeläge
- schicke moderne Bäder
- ordentlicher Stauraum in den Schrägen und im Keller
- überwiegend elektrische Rollläden
- Einbauküche auf Wunsch (Übernahme möglich)
- Kaminofen
- zwei PKW-Stellplätze
Lage
Taunusstein ist die Stadt im Grünen und bietet Ihnen und Ihrer Familie eine gute Infrastruktur und einen hohen Freizeitwert. Sie leben vor den Toren Wiesbadens mit kurzen Wegen zur A 3 sowie in das gesamte Rhein-Main-Gebiet.
Taunusstein entstand im Zuge der Gebietsreform 1971 und hat 10 Stadtteile.
Hahn bietet Ihnen sämtliche Einkaufs- und Versorgungsmöglichkeiten, Ärzte, Apotheken, Optiker, diverse Restaurants, Kindergärten, Integrierte Gesamtschule, Freibad, zentralen Omnibusbahnhof sowie ein breit gefächertes Sport- und Freizeitangebot direkt am Ort. Sehr gute Verkehrsanbindung an das gesamte Rhein-Main-Gebiet und herrlich grüne Umgebung inklusive...
Das Haus liegt ruhig in direkter Wiesenrandlage unweit des Mühlfeldzentrums.
Sonstige Angaben
Energieausweis nach Verbrauch
gültig bis 02.11.2035
wesentlicher Energieträger Gas
Baujahr des Energieerzeugers 2020/2004
Endenergieverbrauch 99,58 kWh/(m².a)
Energieeffizienzklasse C
Grundriss
Plan EG
>
>
Plan OG
>
>
Plan DG
>
>
Plan KG
>
>
Adresse
65232 Taunusstein
Interessante Orte
Preis- und Lageinformationen
Preistrend für Bestandsimmobilien in Taunusstein