Wir führen jederzeit Besichtigungen nach Ihrer Mail-Anfrage & telefonischer Absprache in Einzelterminen durch und freuen uns über Ihr ernsthaftes & zielgerichtetes Interesse.
Exzellentes Leben & Wohnen auf 2 Etagen im EG, OG/ DG aufgeteilt in:
EG Wohnfläche gesamt
= ca. 159,38 qm
OG/ DG Wohnfläche gesamt
= ca. 91,73 qm
EG & OG/ DG Wohnfläche gesamt
= ca. 251,11 qm
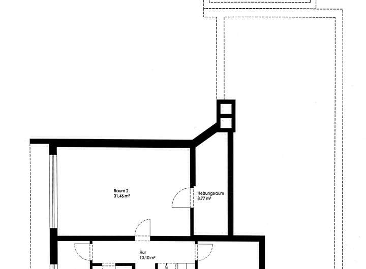
Keller Nutzfläche wohnlich ausgebaut
= qm ca. 68,55 qm + 8,77 qm
Zuzüglich weitere Nutzfläche der gesamten Terrassenfläche, der Dachterrasse/ Balkon und der großen Garage.
Das Grundstück hat eine Fläche von ca. 927 qm.
Dieses ganz besondere Architektenhaus als Einfamilienhaus bietet die Möglichkeit des schnellen Einzuges.
Frei nach Ihren Wünschen ist hier viel Platz für die kleine oder große Familie gegeben - ebenfalls alles optimal geeignet für Paare, als Mehrgenerationenhaus denkbar oder zur Verbindung des Arbeitens & Wohnens.
Vielseitige Alternativen & Optionen der Nutzung wären in diesem herrlichem und ruhigen Haus in bester Lage von Burgdorf denkbar.
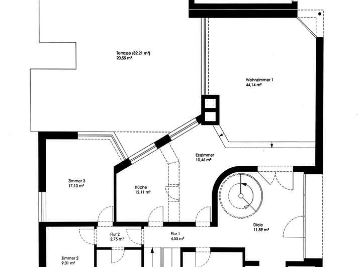
Sie betreten das Haus durch eine wertige Hauseingangstür und gelangen sogleich in den großartigen Empfangsbereich von Flur & Diele.
Im EG finden Leben und Wohnen statt mit Schlafzimmern/ Büro/ Office, Wintergarten, Badezimmer 1, riesigem Wohnzimmer im Split-Level, offener Esszimmer-Bereich, offener Küchenbereich möglich (Abtrennung aktuell durch Küchen-Möbel-Trennwand) & Zugang auf die Terrasse und in den wunderbaren Garten.
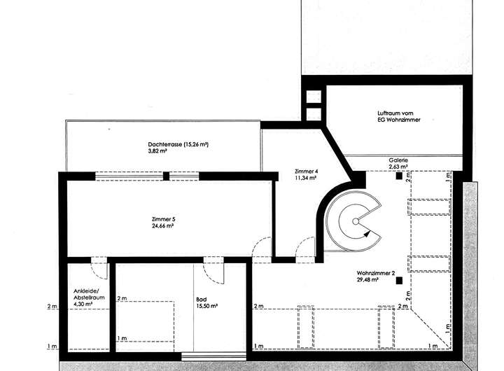
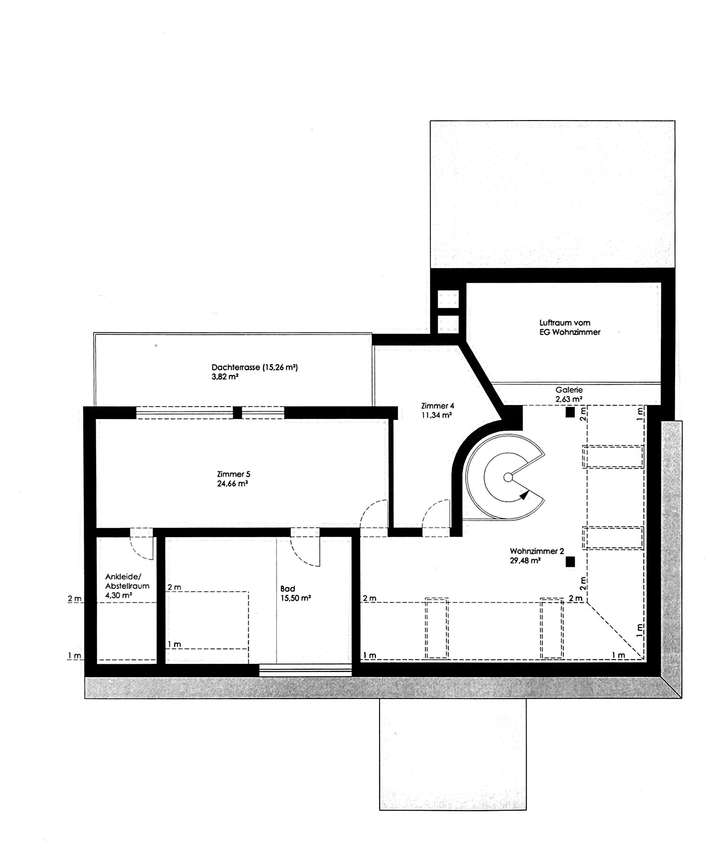
Im OG/ DG befindet sich ein weiteres großes Wohnzimmer mit Galerieebene. Dieser grandiose Raum kann vielseitig genutzt werden.
Im OG/ DG zudem vorhanden Badezimmer 2, Schlafzimmer/ Kinderzimmer & ein Zimmer als Office oder Gästebereich mit Zugängen auf den Balkon/ Dachterrasse.
Ein großer wohnlich ausgebauter Keller ist gegeben mit der Möglichkeit des Zugangs zum Garten.
In den Kellerräumen haben Sie viel Platz für Hobby, Fitness, Sauna oder Gästebereich.
Das Haus begeistert einfach mit seinem Charme und der gegeben Ruhe !
Top Architektenhaus mit viel Platz, Galerie, Keller, Garten & Garage in bester Lage von Burgdorf!
31303 Burgdorf
Die vollständige Adresse der Immobilie erhalten Sie vom Anbieter.
Auf Karte anzeigen
Die vollständige Adresse der Immobilie erhalten Sie vom Anbieter.
Finanzierungszertifikat
In nur zwei Minuten zu Ihrem persönlichen Finanzierungszertifkat.
Infos
| Haustyp | Einfamilienhaus |
|---|---|
| Etagenzahl | 2 |
| Wohnfläche ca. | 251 m2 |
| Nutzfläche | 335 m2 |
| Grundstücksfläche | 927 m2 |
| Bezugsfrei ab | Nach Kauf oder nach Absprache! |
| Zimmer | 7 |
| Schlafzimmer | 4 |
| Badezimmer | 3 |
| Garage/Stellplatz | Garage |
| Anzahl Garage/Stellplatz | 2 |
Kosten
| Kaufpreis |
575.000 € |
|---|---|
| Provision |
3,57 % inkl. 19 % MwSt. Die Provision/ Courtage in Höhe von 3,57 % inkl. 19 % gesetzlicher MwSt. auf den Kaufpreis ist mit dem Zustandekommen des notariellen Vertragsabschlusses/ Beurkundung verdient, fällig und vom Käufer nach Abschluss zu zahlen. Wir haben mit dem Verkäufer einen abgeschlossenen Provisionsvertrag in gleicher Höhe getätigt. Sie erreichen uns jederzeit per Immoscout Mail-Anfrage oder telefonisch unter: 0174 - 3333 111 Andreas W. Schwarz |
Finanzierungsrechner:
Kaufpreis:
600.000 €
Eigenkapital:
600.000 €
Monatliche Rate
0 €
Effektiver Jahreszins
0 %
Sollzinsbindung
10 Jahre
Bausubstanz & Energieausweis
| Baujahr | 1979 |
|---|---|
| Letzte Sanierung | 2025 |
| Bauphase | Haus fertig gestellt |
| Objektzustand | Modernisiert |
| Qualität der Austattung | Normal |
| Heizungsart | Fußbodenheizung |
| Wesentliche Energieträger | Gas |
| Energieausweis | liegt zur Besichtigung vor |
Beschreibung des Objekts
Ausstattung
Ausstattung / Modernisierungsmaßnahmen:
- Wunderbares Einfamilienhaus in besonderer architektonischer Bauweise mit offenen Galeriebereich auf zwei große Wohnzimmerflächen blickend und herrlichem Empfangsbereich mit großen Flügeltüren.
Freie Gestaltungsmöglichkeit durch leichte Umbaumaßnahmen wären möglich, da hier besonders viel Platz im gesamten Haus präsent ist.
Natürlich könnte auch alles so offen gestaltet bleiben vom EG bis ins OG/DG für die gesamte kleine oder große Familie.
- 2 Etagen voll ausgebaut (EG, OG/DG) auf ca. 251 qm Wohnfläche und einem Grundstück von ca. 927 qm Grundstücksfläche.
EG Wohnfläche gesamt ca. 159,38 qm + OG/DG Wohnfläche gesamt ca. 91,73 qm = Gesamtwohnfläche ca. 251,11 qm
Zudem Keller/ UG wohnlich ausgebaut ca. 68,55 qm Fläche, sowie großen Fensterflächen für passenden Lichteinfall + weitere Nutzfläche Heizungsraum, Waschküche/ HWR, sowie dem dritten Bad
- Außentreppe vom Keller in den Garten
- Terrasse mit ca. 82,21 qm Gesamtfläche (anteilig 1/4)
- Dachterrasse/ Balkon mit ca, 15,26 qm (anteilig 1/4)
- Wintergarten (unbeheizt) mit ca. 8,14 qm (anteilig 1/2)
Die Wohn- und Nutzflächenberechnung des EFH wurde anhand eines aktuellen & neuen Aufmaßes durch einen Architekten 2025 neu erstellt.
- Insgesamt 2x Bäder= 1x EG (2022 neu) & 1x OG - zudem ein Bad mit Dusche im wohnlich ausgebauten Kellerbereich.
- Gäste WC im EG
- Küchenbereich mit EBK, sowie Geräten
- offener Bereich Küche zum Esszimmer & Wohnzimmer 1. möglich, da hier die Wand mit Durchgangstür nur durch ein Küchen-Schrank-Möbelstück räumlich abgetrennt wurde und mit leichtem Aufwand entfernt werden könnte.
- Austritt von der Küche auf die Terrasse vorhanden
Durchdachte & helle Raumaufteilung im EG mit offenem Wohn- & Esszimmer, Flur, Diele, offenerer Wohnküche möglich, Badezimmer (erneuert), Gäste WC und einem weiteren Zimmer als Kinderzimmer oder Büro/ Office mit angebautem Wintergarten.
Zudem befindet sich im EG ein großes Schlafzimmer, kleineres Schlafzimmer/ Ankleidezimmer oder Office/Büro.
- Als Bodenbeläge wurden seitens der Eigentümer Fliesen & Teppich auf allen Etagen ausgewählt
- Sichere & wertige Hauseingangstür
- Schöne Treppenaufgänge zum OG/ DG durch eine breite & massive Holz-Wendeltreppe
Grandiose Raumdarstellung im OG/DG mit zweitem Wohnzimmer, Galeriebereich und geöffneten Blick ins untere gelegene erste Wohnzimmer / Luftraum.
Hier wurden im Dachschrägen-Bereich hochwertige Fenster mit Schiebelementen eingebaut., um alles auch hier lichtdurchflutet erscheinen zu lassen.
Im OG/DG befindet sich zudem ein riesiges Zimmer als Schlafzimmer/ Master-Room mit eigenem Bad, Ankleide/ Abstellraum und zweitem Zimmer zum Schlafen/ Büro/ Gästezimmer mit Zugang jeweils auf die Dachterrasse/ Balkon.
Der begehbare Spitzboden oberhalb des OG/DG wurde bereits passend isoliert, ausgebaut und bietet zusätzlichen Raum zum Lagern.
- 1 x grandiose Terrasse mit Zugang zur Garage und wunderbar angelegter Garten mit herrlicher Bepflanzung - alles blickgeschützt. Auch der Bereich vor dem Haus wurde gärtnerisch sehr schön entworfen.
- Doppelgarage mit Parkmöglichkeit auch direkt davor. Somit Möglichkeit des Parkens für bis zu 4 PKWs
- 2025 Erneuerung der Gasheizung mit WW-Aufbereitung durch Solarthermieanlage
- Fußbodenheizung im EG & OG/DG
- Glasfaser liegt in der Straße - im Haus vorhanden
Perfektes & herzerfrischendes Wohnen mitten im wunderbaren Burgdorf !
Lage
Beste Premium-Lage in Burgdorf mit hervorragender City Erreichbarkeit.
Dieses spannende Einfamilienhaus mit seiner architektonisch besonders schönen Außenbetrachtung, dem prima angelegten Gartenbereich befindet sich in absolut bester Erreichbarkeit in Burgdorf in einer ruhigen Seitenstraße/ Sackgasse.
Herrliche Ruhe durch die Lage des Hauses in einer harmonischen Wohnumgebung - super Infrastruktur - funktionierende Innenstadt mit vielen Geschäften und perfekter Erreichbarkeit der Einkaufsmöglichkeiten, Einkaufszentrum, Schulen, Kindergarten, Ärzte, Apotheken.
Sport- sowie Freizeitaktivitäten sind im Umfeld gut vorhanden.
Die Naturumgebung mit den Wäldern & Feldern sorgt für eine behagliche Atmosphäre & Entspannung.
Schnelle Erreichbarkeit der Autobahnen A2 & A7, B3 und Messeschnellweg - Flughafen Langenhagen optimal anfahrbar.
Hannover - Burgwedel - Lehrte - Celle sind klasse anzusteuern.
Beste gastronomische Einrichtungen und Cafés sind nächstgelegen.
Perfekte Anbindung an den öffentlichen Nahverkehr, Haltestelle Bus schnell per pedes erreichbar, sowie der Bahnhof in Burgdorf.
Hervorragende Nutzung des überregionalen Verkehrsnetzes mit optimaler Anbindung ist vorhanden.
Burgdorf gehört zu den sehr guten & nachgefragten Wohnadressen in der Region Hannovers und ist besonders bei Familien sehr angesagt.
Exzellentes Wohnen - Top Lage - Schnell erreichbare und erholsame Naturlandschaft in der Region gegeben!
Sonstige Angaben
Der Maklervertrag mit uns kommt durch die schriftliche Vereinbarung oder durch die Inanspruchnahme unserer Maklertätigkeit auf Grundlage des Objekt Exposés und seiner vertraglichen Bedingungen zustande.
Die Provisionsvereinbarung wird wie folgt vereinbart, erfolgt in Textform und Bedarf der Bestätigung des jeweiligen Interessenten in Schriftform eines Maklervertrages.
Es ist eine Courtage / Provision in Höhe von 3,57 % inkl. 19 % gesetzlicher MwSt. auf den Kaufpreis nach notariellen Vertragsabschluss/ Beurkundung verdient, fällig und vom Käufer zu zahlen.
Wir haben einen entgeltpflichtigen Maklervertrag über den gleichen Provisionssatz mit dem Verkäufer abgeschlossen.
Alle Angaben sind ohne Gewähr und basieren ausschließlich auf Informationen, die uns von unserem Auftraggeber / Eigentümer des Objektes zur Verfügung gestellt wurden.
Wir übernehmen keine Gewähr für die Vollständigkeit, Richtigkeit und Aktualität dieser Angaben.
Die Kontaktaufnahme zwischen Interessenten / Käufer zum Eigentümer darf nur im Einvernehmen mit uns vorgenommen werden.
Dieses bitten wir zu respektieren!
Die Grunderwerbsteuer, Notar- und Grundbuchkosten sind vom Käufer zu tragen.
Im übrigen gelten unsere Allgemeinen Geschäfts-und Datenschutzbestimmungen.
Gerne beraten wir Sie beim angedachten Verkauf Ihrer Immobilie.
Nutzen Sie dazu unser kostenloses Bewertungsangebot für Ihre Immobilie.
Wir freuen uns darauf, Sie persönlich kennenzulernen und Ihnen erfolgreich zur Seite stehen zu dürfen.
Sie erreichen uns jederzeit unter 0174 - 3333 111 oder über Ihre Mail-Anfrage bei Immoscout, welche einem Telefonat vorangehen sollte. Andreas W. Schwarz
Grundriss
EG
>
>
OG/ DG
>
>
Keller / UG
>
>
Adresse
31303 Burgdorf
Interessante Orte
Preis- und Lageinformationen
Preistrend für Bestandsimmobilien in Burgdorf