• Grundstücksfläche: 268 m²
• Baugenehmigung: ja
• Bauzwang: nein
• Kaufpreis: 194.900 €
GRÜNDSTÜCK MIT BAUGENEHMIGUNG OHNE BAUZWANG ZU VERKAUFEN
Königsbrunnen Str. 96,
86179 Augsburg
Auf Karte anzeigen
Finanzierungszertifikat
In nur zwei Minuten zu Ihrem persönlichen Finanzierungszertifkat.
Infos
| Vermarktungsart | Kaufen |
|---|---|
| Grundstücksfläche | 268 m2 |
| Empfohlene Nutzung | Reihenhaus |
| Bebaubar nach | Bebauungsplan |
Kosten
| Miete pro Jahr |
194.900 € |
|---|---|
| Provision |
3% zzgl. gesetzliche MwSt. |
Finanzierungsrechner:
Kaufpreis:
600.000 €
Eigenkapital:
600.000 €
Monatliche Rate
0 €
Effektiver Jahreszins
0 %
Sollzinsbindung
10 Jahre
Beschreibung des Objekts
Lage
Dieses Angebot bietet Ihnen die Möglichkeit ein Grundstück mit folgender Planung zu erwerben:
Das geplante Reihenhaus überzeugt durch eine durchdachte und familienfreundliche Raumaufteilung, die auf allen Ebenen maximale Wohnqualität bietet.
Bereits im Erdgeschoss öffnet sich der Eingangsbereich zu einem großzügigen, lichtdurchfluteten Wohn- und Essbereich. Die weitläufige Fensterfront sorgt für ein angenehmes Raumgefühl und ermöglicht gleichzeitig den direkten Zugang zum Garten. Die offene Küche fügt sich harmonisch in diesen Wohnbereich ein und schafft einen modernen Mittelpunkt des täglichen Lebens. Ein Gäste-WC komplettiert diese Ebene und sorgt für zusätzlichen Komfort im Alltag.
Im Obergeschoss befinden sich die privaten Räume der Kinder. Zwei geräumige Kinderzimmer bieten viel Platz zum Spielen und Lernen, während ein weiteres, etwas kleineres Zimmer flexibel als Gästezimmer, Büro oder dritter Kinderraum genutzt werden kann. Ein helles Badezimmer mit Badewanne und Waschbecken steht auf dieser Ebene zur Verfügung und macht das Obergeschoss zu einem praktischen und gemütlichen Familienbereich.
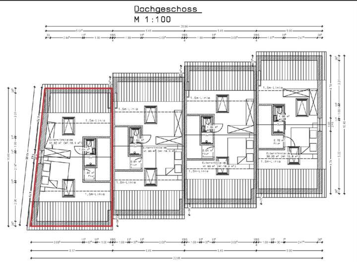
Das Dachgeschoss ist als Elternbereich konzipiert. Hier befindet sich ein großzügiges Schlafzimmer, das durch eine integrierte Ankleide nochmals aufgewertet wird. Ein eigenes Bad mit Dusche ermöglicht ein hohes Maß an Privatsphäre und schafft eine kleine, persönliche Rückzugsoase abseits des Familiengeschehens.
Ergänzt wird das Haus durch ein hervorragend nutzbares Kellergeschoss. Ein geräumiger Hobbyraum bietet sich ideal für Freizeitaktivitäten oder Fitness. Ein separater Kellerraum sowie ein Technik- bzw. Hauswirtschaftsraum sorgen für reichlich Stauraum und funktionelle Nutzungsmöglichkeiten. Ein zentraler Flur verbindet die verschiedenen Räume des Untergeschosses.
Sonstige Angaben
GELDWÄSCHE: Als Immobilienmaklerunternehmen ist die Walter Immobilien nach § Abs. 1 Nr. 14 und § 10 Abs. 3 Geldwäschegesetz (GwG) dazu verpflichtet, bei der Begründung einer Geschäftsbeziehung die Identität des Vertragspartners festzustellen und zu überprüfen. Hierzu ist es erforderlich, dass wir nach § 11 GwG die relevanten Daten Ihres Personalausweises festhalten (wenn Sie als natürliche Person handeln) – beispielsweise mittels einer Kopie. Bei einer juristischen Person benötigen wir eine Kopie des Handelsregisterauszugs, aus welchem der wirtschaftlich Berechtigte hervorgeht. Das Geldwäschegesetz sieht vor, dass der Makler die Kopien bzw. Unterlagen fünf Jahre aufbewahren muss.