Ein erschlossenes Grundstück in einer gewachsenen Umgebung ist eine Seltenheit. Dieses Flurstück bietet eine solide Basis für ein Bauvorhaben, das sich an bewährten Werten orientiert – klare Strukturen, vollständige Unterlagen und eine Lage mit Zukunft.
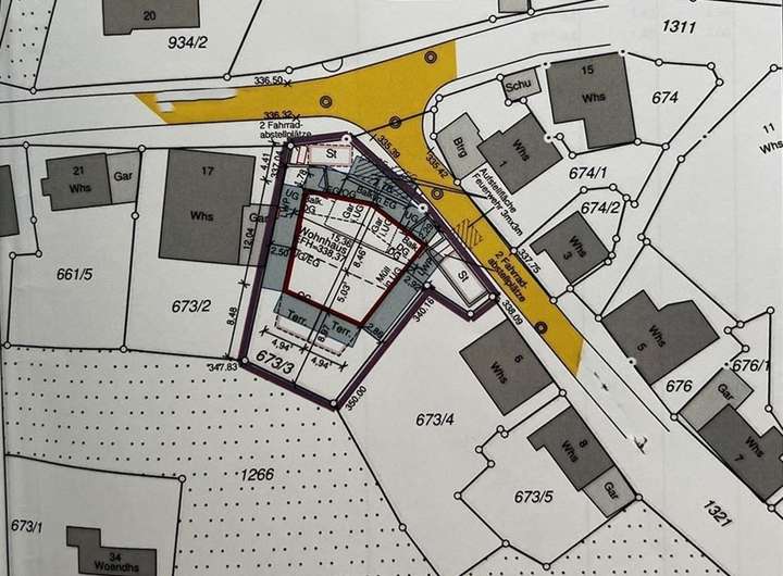
Das Flurstück 673/3 in der Schönbuchstraße, Gemarkung Neuenhaus, ist ein unbebautes und vollständig erschlossenes Grundstück.
Es eignet sich ideal für den Bau von zwei modernen Doppelhaushälften, basierend auf der vorliegenden Baugenehmigung und der vorhandenen Planung.
Mitverkauft und im Kaufumfang enthalten
1. Baugenehmigung
Die Baugenehmigung beinhaltet die Genehmigung für den Bau von zwei Doppelhaushälften.
Dem Erwerber liegen sämtliche genehmigten Bauunterlagen vor.
Der Erwerber tritt vollumfänglich in Rechte und Pflichten ein und informiert das Landratsamt Esslingen schriftlich über den Eintritt.
2. Bodengutachten
Ein umfassendes Bodengutachten ist Bestandteil des Verkaufs.
Es bietet Planungssicherheit und ermöglicht eine solide Fundamentierung – wie es seit jeher Grundlage guter Baupraxis ist.
3. Planung der Doppelhaushälften
Komplette Planungsunterlagen (Grundrisse, Ansichten, Bauzeichnungen) liegen vor und gehören zum Leistungsumfang.
Sie ermöglichen dem Erwerber einen direkten Einstieg in die Ausführung – ohne den zeitintensiven Planungsprozess von Grund auf.
Startklar: Grundstück für zwei Doppelhaushälften mit Genehmigung und Planung
Schönbuchstraße 2,
72631 Aichtal
Auf Karte anzeigen
Finanzierungszertifikat
In nur zwei Minuten zu Ihrem persönlichen Finanzierungszertifkat.
Infos
| Vermarktungsart | Kaufen |
|---|---|
| Grundstücksfläche | 458 m2 |
Kosten
| Miete pro Jahr |
295.000 € |
|---|---|
| Provision |
3,57% vom Kaufpreis (inkl. MwSt.) |
Finanzierungsrechner:
Kaufpreis:
600.000 €
Eigenkapital:
600.000 €
Monatliche Rate
0 €
Effektiver Jahreszins
0 %
Sollzinsbindung
10 Jahre
Beschreibung des Objekts
Lage
Das Grundstück befindet sich in ruhiger und gewachsener Wohnlage von Neuenhaus, einem Ortsteil, der für seine angenehme Nachbarschaft und seine gute Struktur geschätzt wird. Die Schönbuchstraße ist eine gepflegte Wohnstraße ohne Durchgangsverkehr – ideal für Familien und Menschen, die Wert auf Ruhe, Sicherheit und Beständigkeit legen.
Alle Einrichtungen des täglichen Bedarfs sind bequem erreichbar.
Einkaufsmöglichkeiten, Schulen, Kindergärten, Ärzte, öffentlicher Nahverkehr sowie Freizeit- und Naturangebote liegen im nahen Umfeld. Die Umgebung ist geprägt von einer traditionell stabilen Wohnqualität, die seit vielen Jahren Bestand hat.
Die verkehrliche Anbindung ist zuverlässig: Über nahegelegene Hauptstraßen und regionale Verbindungen erreicht man größere Städte und Gewerbestandorte schnell und unkompliziert. Gleichzeitig bietet die direkte Umgebung viel Grün, Spazierwege und Naherholung.
Kurzum: Eine klassische, solide Lage, wie man sie sich für ein langfristiges Bauprojekt wünscht – ruhig, sicher, gut angebunden und mit einer stetig gewachsenen Wohnstruktur.
Wenn Sie möchten, formuliere ich Ihnen daraus auch eine kurze Lagebeschreibung speziell für Immoscout, oder eine emotionale Version für Ihr PDF-Exposé.
Sonstige Angaben
Ein erschlossenes Baugrundstück mit vollständiger Genehmigung, Gutachten und Planung für zwei Doppelhaushälften – eine Gelegenheit, die heute selten geworden ist.
Für Bauherren, Investoren oder Familienprojekte bietet dieses Grundstück eine sichere Grundlage, um ohne Verzögerung in die Realisierung einzusteigen.