Entdecken Sie dieses charmante Reihenhaus in begehrter Lage von Wiesbaden-Aukamm. Auf 134 m² Wohnfläche plus 31 m² wohnlich ausgebauter Nutzfläche im Kellergeschoss und einem 259 m² Grundstück bietet das Haus eine ideale Kombination aus Komfort, Platz und Ruhe.
Das gepflegte Reihenhaus überzeugt mit 5 Zimmern, darunter 4 helle Schlafzimmer, sowie 2 modernen Bädern und einem separaten Gäste-WC. Die Ausstattung umfasst Fliesen- und Laminatböden, Fußbodenheizung, eine moderne Gasheizung sowie große Fensterfronten, die für viel Tageslicht sorgen.
Besondere Highlights:
✅Neue moderne Gas-Brennwerttherme (2025)
✅Voll ausgestattete Einbauküche
✅ Liebevoll angelegter Garten mit teils überdachter Terrasse
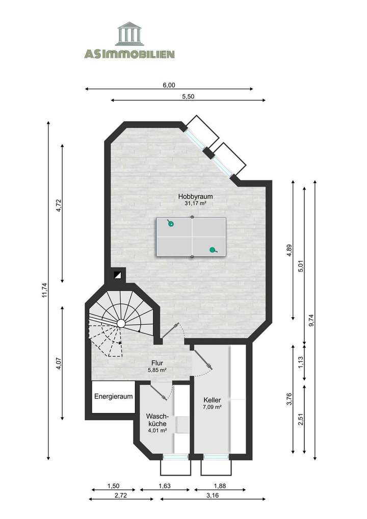
✅ 31 m² Hobbyraum im KG + zusätzlicher Stauraum
✅ Zwei Bäder + Gäste-WC
✅ Außenstellplatz
✅ Option zur Einliegerwohnung im Dachgeschoss
Das Haus wurde 1984 in massiver Bauweise errichtet und bietet zwei Vollgeschosse, ein ausgebautes Dachgeschoss sowie einen voll nutzbaren Keller. Im Erdgeschoss erwarten Sie ein großzügiger Eingangsbereich, ein Gäste-WC, die Küche sowie das helle Wohnzimmer mit Zugang zur Terrasse und zum Garten.
Im Obergeschoss befinden sich zwei Zimmer und ein modernes Bad; das große Elternschlafzimmer mit Balkon kann auf Wunsch wieder in zwei Räume geteilt werden. Das Dachgeschoss bietet zwei weitere Zimmer und ein Duschbad – ideal für Gäste, Homeoffice oder eine mögliche Einliegerwohnung.
Der wohnlich ausgebaute Hobbyraum im Keller erweitert die Nutzungsmöglichkeiten und eignet sich hervorragend als Spielzimmer, Fitnessraum oder Arbeitsbereich. Die Heizungsanlage wurde vor etwa acht Jahren erneuert.
Ein praktischer Außenstellplatz rundet dieses attraktive Angebot ab.
Die Lage in Wiesbaden / Aukamm bietet eine hervorragende Infrastruktur mit schnellen Anbindungen an das Stadtzentrum, ausgezeichnete Schulen und eine Vielzahl von Einkaufsmöglichkeiten. Verpassen Sie nicht die Gelegenheit, dieses gehobene Reihenhaus zu Ihrem neuen Zuhause zu machen.
AS IMMOBILIEN: Ihr neues Zuhause in Wiesbaden-Aukamm |stilvolles RMH mit Platz für die ganze Familie
65191 Wiesbaden
Die vollständige Adresse der Immobilie erhalten Sie vom Anbieter.
Auf Karte anzeigen
Die vollständige Adresse der Immobilie erhalten Sie vom Anbieter.
Finanzierungszertifikat
In nur zwei Minuten zu Ihrem persönlichen Finanzierungszertifkat.
Infos
| Haustyp | Sonstige |
|---|---|
| Etagenzahl | 3 |
| Wohnfläche ca. | 134 m2 |
| Grundstücksfläche | 259 m2 |
| Bezugsfrei ab | sofort |
| Zimmer | 5 |
| Schlafzimmer | 4 |
| Badezimmer | 2 |
| Anzahl Garage/Stellplatz | 1 |
Kosten
| Kaufpreis |
729.000 € |
|---|---|
| Provision |
2,975 % des notariell beurkundeten Kaufpreises inkl. MwSt Bei Abschluss eines notariellen Kaufvertrags ist vom Käufer eine Provision in Höhe von 2,975 % inkl. gesetzlicher MwSt. auf den Kaufpreis an uns zu zahlen. Die Provision ist verdient und fällig mit Vertragsschluss. In gleicher Höhe werden wir auch vom Eigentümer/ Verkäufer vergütet. Die AS Immobilien erhält einen unmittelbaren Zahlungsanspruch gegenüber dem Käufer. Grunderwerbssteuer, Notar- und Grundbuchkosten trägt der Käufer. |
Finanzierungsrechner:
Kaufpreis:
600.000 €
Eigenkapital:
600.000 €
Monatliche Rate
0 €
Effektiver Jahreszins
0 %
Sollzinsbindung
10 Jahre
Bausubstanz & Energieausweis
| Baujahr | 1984 |
|---|---|
| Letzte Sanierung | 2017 |
| Objektzustand | Gepflegt |
| Qualität der Austattung | Gehoben |
| Heizungsart | Fußbodenheizung |
| Wesentliche Energieträger | Gas |
| Energieausweis | liegt vor |
| Energieausweistyp | Verbrauchsausweis |
| Energieverbrauchskennwert | 128,0 kWh/(m²*a) |
| Energieeffizienzklasse | D |
128,0
kWh/(m²*a)
Energieeffizienzklasse D
- A+
- A
- B
- C
- D
- E
- F
- G
- H
- 0
- 25
- 50
- 75
- 100
- 125
- 150
- 175
- 200
- 225
- >250
Beschreibung des Objekts
Ausstattung
✅ Modernes Einfamilienhaus mit ca. 134 m² Wohnfläche + 31 m² Hobbyraum
✅ Vier Schlafzimmer, zwei Bäder + Gäste-WC
✅ Moderne Einbauküche
✅ Fußbodenheizung, Gas-Zentralheizung & Kamin
✅ Terrasse, Balkon und eingezäunter Garten
✅ Einliegerwohnung im DG möglich
✅ Großer Keller mit 31 m² Hobbyraum / Gästezimmer / Fitnessraum
✅ Außenstellplatz
✅Neue moderne Gas-Brennwerttherme (2025)
✅ Ruhige Lage im begehrten Aukammtal
Lage
Willkommen in der charmanten Wohngegend von Wiesbaden / Aukamm, einem der exklusivsten und gefragtesten Viertel der Stadt. Diese Lage bietet eine perfekte Symbiose aus Ruhe und Nähe zur Stadt.
Aukamm liegt eingebettet zwischen dem idyllischen Aukammtal und dem Kureck, nur wenige Minuten von der Wiesbadener Innenstadt entfernt. Hier genießen Sie die Vorzüge einer ruhigen Wohnlage mit gleichzeitig hervorragender Anbindung an das Stadtzentrum, die Autobahn und den Hauptbahnhof.
Die Umgebung ist geprägt von großzügigen Grünflächen, malerischen Spazierwegen und dem Aukammbach, der durch das Tal fließt. Hier können Sie die Natur in vollen Zügen genießen und dem Alltag entfliehen. Gleichzeitig befinden Sie sich in unmittelbarer Nähe zu erstklassigen Einkaufsmöglichkeiten, Restaurants und Cafés, die Wiesbaden zu bieten hat.
Bildungseinrichtungen wie Schulen und Kindergärten sind ebenfalls in der Nähe, was Aukamm zu einem idealen Wohnort für Familien macht. Die öffentliche Verkehrsanbindung ist hervorragend, sodass Sie auch ohne eigenes Auto bestens versorgt sind.
Erleben Sie das exklusive Ambiente und die Vorzüge dieser behrten Lage in Wiesbaden / Aukamm.
Sonstige Angaben
Alle Angaben in diesem Exposé basieren auf Informationen des Eigentümers und wurden mit größter Sorgfalt sowie nach bestem Wissen zusammengestellt. Eine Gewähr für die Richtigkeit und Vollständigkeit kann jedoch nicht übernommen werden. Verbindlich sind ausschließlich die Vereinbarungen im notariellen Kaufvertrag.
Sofern Grundrisse Maßangaben oder Ausstattungen enthalten, wird auch hierfür keine Haftung übernommen. Änderungen des Kaufpreises sowie ein Zwischenverkauf bleiben vorbehalten.
AS Immobilien ist vom Eigentümer exklusiv mit dem Verkauf dieser Immobilie beauftragt.
Hinweis zum Geldwäschegesetz (GwG)
Gemäß § 2 Abs. 1 Nr. 10 des Geldwäschegesetzes (GwG) sind wir verpflichtet, die Identität unserer Kunden bei der ersten Kontaktaufnahme festzustellen. Wir bitten daher um Ihr Verständnis, dass wir Ihre vollständigen persönlichen Daten (Name, Anschrift, Geburtsdatum, Geburtsort und Staatsangehörigkeit) vor Beginn einer Geschäftsbeziehung erheben müssen. Dies erfolgt in der Regel durch Vorlage einer Ausweiskopie (bei juristischen Personen zusätzlich durch einen aktuellen Handelsregisterauszug).
Für die erste Kontaktaufnahme bzw. zur Zusendung des vollständigen Exposés benötigen wir Ihre vollständige Anschrift. Bitte nutzen Sie hierfür unser Kontaktformular.
Unser Service für Sie
✔ Auf Wunsch übernehmen wir die professionelle Vermarktung oder Vermietung Ihrer Immobilie – diskret, zuverlässig und zielgerichtet.
Weitere Immobilienangebote
Entdecken Sie weitere Angebote auf unserer Website:
🌐 www.as-immobilien-wiesbaden.com
Folgen Sie uns auch auf Social Media:
https://www.instagram.com/as_immobilien_wiesbaden
https://www.facebook.com/ASImmobilienWiesbaden
Grundriss
EG
>
>
OG
>
>
DG
>
>
KG
>
>
Adresse
65191 Wiesbaden
Interessante Orte
Preis- und Lageinformationen
Preistrend für Bestandsimmobilien in Bierstadt