Das Grundstück befindet sich in einem aktiven Umfeld, das sowohl Gewerbe- als auch Wohnnutzung vereint, und bietet somit eine vielseitige Nutzbarkeit.
Das Grundstück liegt direkt an der Hamburger Straße am Schutower Kreuz in Rostock und hat somit die perfekte Anbindung und Infrastruktur für alle Annehmlichkeiten.
In unmittelbarer Umgebung befinden sich sowohl Gewerbebetriebe als auch Wohngebiete, eine perfekte Kombination aus wirtschaftlichen Perspektiven und individuellen Wohlbefinden. Die Innenstadt ist nur 5 Minuten entfernt und die wichtigsten Autobahnanbindungen, sowie öffentliche Verkehrsmittel, wie Bus und Bahn sind schnell erreicht.
Mit einer Fläche von 1570 m² bietet das Grundstück genau das richtige Maß für die Realisierung eines anspruchsvollen Bauvorhabens. Das Grundstück befindet sich in einem Mischgebiet, was eine flexible Nutzung hergibt. Durch die bereits erteilte Baugenehmigung kann hier also ideal eine Mehrfamilienhaus entstehen.
Aber auch für einen gewerblichen Zweck sind alle Vorraussetzungen gegeben. Somit bietet das Grundstück vielfältige Investitionsmöglichkeiten.
Derzeit befinden sich auf dem Grundstück 3 renovierungsbedürftige Gebäude.
Das Grundstück ist voll erschlossen. Anschlüsse für Wasser, Abwasser, Strom ,Gas und Internet liegen bereits am Grundstück an und können problemlos verwendet werden.Die Zufahrtswege sind asphaltiert.
Erbbauzins und Laufzeit:
Das Grundstück wird im Rahmen eines Erbbaurechts angeboten, das eine ansprechende und wirtschaftliche Alternative zum klassischen Grundstückskauf darstellt. Der jährliche Erbbauzins beträgt 7.222,44 EUR und die Laufzeit des Erbbauvertrages von 1937 beläuft sich auf 101 Jahre mit der Möglichkeit zur Verlängerung.
Bebauung:
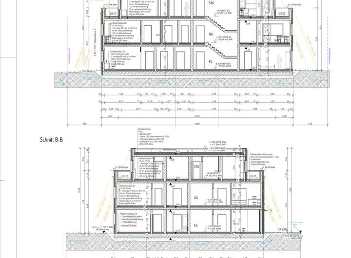
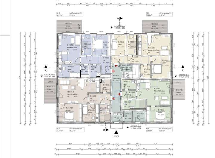
Die Baugenehmigung umfasst ein Mehrfamilienhaus mit 10 Wohneinheiten, 2 Stockwerken und einer Stellplatzanlage für 10 Pkw. Die moderne Architektur passt sich optimal an die bestehende Bebauung im Umfeld an und bietet ausreichend Wohnraum.
Nutzen Sie diese seltene Gelegenheit, ein bereits genehmigtes Bauvorhaben in Top-Lage zu realisieren und damit die Grundlage für ein erfolgreiches und profitables Projekt zu verwirklichen.
Eine Besichtigung am und auf dem Grundstück findet ausschließlich mit uns zusammen statt.
Alle Angaben ohne Gewähr. Alle Angaben berufen Sich auf die Aussage der Eigentümer. Wir haften weder für den Inhalt des Exposés noch für die Richtigkeit der Angaben.
Es werden nur Anfragen mit vollständigen Adressdaten, Telefonnummer und E-Mailadresse beantwortet.
Gewerbegrundstück mit Baugenehmigung für ein Mehrfamilienhaus inkl. Planung in Top-Lage in Rostock
18069 Rostock
Die vollständige Adresse der Immobilie erhalten Sie vom Anbieter.
Auf Karte anzeigen
Die vollständige Adresse der Immobilie erhalten Sie vom Anbieter.
Finanzierungszertifikat
In nur zwei Minuten zu Ihrem persönlichen Finanzierungszertifkat.
Infos
| Vermarktungsart | Kaufen |
|---|---|
| Grundstücksfläche | 1.570 m2 |
| Erschließung | Erschlossen |
| Empfohlene Nutzung | Mehrfamilienhaus |
Kosten
| Miete pro Jahr |
550.000 € |
|---|---|
| Provision |
7,14 % Die Maklerprovision beträgt 7,14 % vom Kaufpreis inklusive der gesetzlichen Mehrwertsteuer von 19% verdient, fällig und zahlbar durch den Käufer nach Abschluss des notariellen Kaufvertrages! |
Finanzierungsrechner:
Kaufpreis:
600.000 €
Eigenkapital:
600.000 €
Monatliche Rate
0 €
Effektiver Jahreszins
0 %
Sollzinsbindung
10 Jahre
Beschreibung des Objekts
Lage
Rostock ist eine Stadt an der Warnow an der Nordküste Deutschlands. In nur wenigen Minuten erreichen Sie mit dem Fahrrad, zu Fuß oder den öffentlichen Verkehrsanbindungen die Innenstadt. In unmittelbarer Umgebung befinden sich Schulen, Kindergärten, Einkaufsmöglichkeiten, Ärzte, Apotheken, Banken und Tankstellen.
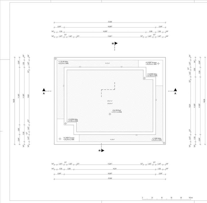
Grundriss
Planung Erdgeschoss Grundriss
>
>
Planung Obergeschoss Grundriss
>
>
Planung Staffelgeschoss Grundr
>
>
Planung Grundriss Dachaufsicht
>
>