Willkommen im Village Lichtenrade. In diesem vollunterkellerten Reihenhaus (Typ "Red") finden Familien alles vor, was städtisches Wohnen im Grünen ausmacht. Die entsprechende Hauszeile wurde 2021 erstmal fertiggestellt.
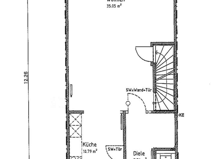
Gleich hinter dem Eingangsflur befindet sich das Gäste-WC sowie eine grosse Ausparung für die Garderobe. Die Küche ist mit hochwertigen Einbauten ausgestattet und bietet einen offene Durchgang zum Wohn- und Esszimmer mit über 35qm als Lebensmittelpunkt Ihres neuen Zuhauses. Von hier aus haben Sie Zutritt zur Terrasse mit Westausrichtung und Blick auf Ihren eigenen Garten
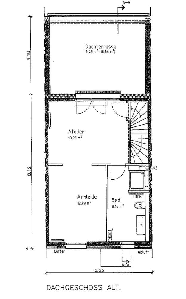
Im ersten Obergeschoss finden Sie zwei grosse und ein kleineres Schlafzimmer sowie ein geräumiges Wannenbad mit Tageslicht, Ausblick und separater Dusche vor. Im obersten, dritten Geschoss folgt ein Atelier mit bis zu 3,30m hohen Decken, separaten Duschbad (Tageslicht) und eigener Terrasse in Westausrichtung.
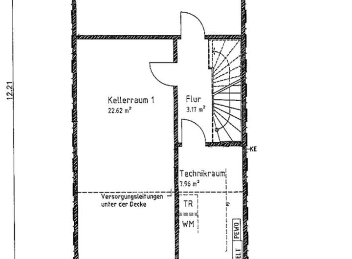
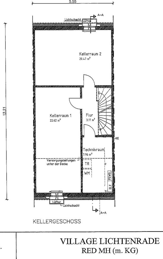
Ein weiter Bonuspunkt des hier angebotenen Hauses: Es ist vollunterkellert, schafft mit zwei 20 und 22 qm grossen Kellerräumen ordentlich Platz und bietet zahlreiche Abstell- und Unterbringungsmöglichkeiten. Je nach Bedarf und Ansprüchen lässt sich der Keller natürlich auch als Hobby- oder Arbeitsraum nutzen.
Am besten Sie machen sich selbst ein Bild vom Village Lichtenrade und vereinbaren individuell eine ausführliche Einzelbesichtigung mit uns. Dies selbstverständlich auch gern am Wochenende. Wir freuen uns auf Ihre Kontaktaufnahme, gern auch telefonisch.
grosses Reihenhaus "RED", bezugsfrei, Keller, Westterrasse und Garten -Samstagsbesichtigung-
12307 Berlin
Die vollständige Adresse der Immobilie erhalten Sie vom Anbieter.
Auf Karte anzeigen
Die vollständige Adresse der Immobilie erhalten Sie vom Anbieter.
Infos
| Haustyp | Reihenmittelhaus |
|---|---|
| Etagenzahl | 3 |
| Wohnfläche ca. | 159 m2 |
| Nutzfläche | 213,32 m2 |
| Grundstücksfläche | 148 m2 |
| Bezugsfrei ab | sofort |
| Zimmer | 5 |
| Schlafzimmer | 4 |
| Badezimmer | 2 |
| Garage/Stellplatz | Carport |
| Anzahl Garage/Stellplatz | 1 |
Kosten
| Kaltmiete |
2.518 € |
|---|---|
| Nebenkosten | + 307 € |
| Heizkosten | + 195 € |
| Gesamtmiete | 3.090 € (zzgl. Heizkosten) |
| Miete für Garage/Stellplatz | 70 € |
| Kaution o. Genossenschaftsanteile | 3 Monatsmieten |
Weiter mieten oder doch kaufen?
Wer in Miete wohnt, überweist dem Vermieter im Laufe der Jahre hohe Summen, die sich
auch in die eigenen vier Wände investieren lassen könnten.
Bausubstanz & Energieausweis
| Baujahr | 2020 |
|---|---|
| Objektzustand | Gepflegt |
| Heizungsart | Zentralheizung |
| Energieausweis | liegt vor |
| Energieausweistyp | Bedarfsausweis |
| Energieverbrauchskennwert | 45,1 kWh/(m²*a) |
| Energieeffizienzklasse | A |
45,1
kWh/(m²*a)
Energieeffizienzklasse A
- A+
- A
- B
- C
- D
- E
- F
- G
- H
- 0
- 25
- 50
- 75
- 100
- 125
- 150
- 175
- 200
- 225
- >250
Beschreibung des Objekts
Ausstattung
- hochwertige Einbauküche mit Markengeräten (Siemens, Constructa)
- Holzparkett in allen Wohnräumen (Eiche natur)
- Hauptbad mit Wanne und separater, verglaster Dusche
- hochwertige Sanitärobjekte und Armaturen (Villeroy&Boch, Grohe)
- Gäste-WC im Eingangsbereich
- Terrasse mit 15 qm und großem Garten
- Dachterrasse mit 20qm und Westausrichtung
- Kellerräume mit über 58qm
- dezentrale Lüftung mit Wärmerückgewinnung
- separate Netzwerkdose auf jeder Etage
Lage
Das Village Lichtenrade liegt im gleichnamigen Ort als südlichstem Teil des Berliner Bezirks Tempelhof-Schöneberg. Die aus Reihenhäusern und Doppelhaushälften entstandene Wohnsiedlung nördlich der Alten Mälzerei ist dank Gärten und verkehrsberuhigten Privatstrassen familienfreundlich und zudem sehr gut angebunden.Bäcker und Supermärkte sind nach 4min Fußweg, Geschäftszentrum Bahnhofstrasse und Bushaltestelle nach 10 Minuten erreicht. Die S-Bahn Lichtenrade liegt ca 600m und S-Bahn Schichauweg ca 400m entfernt. Sowohl mit Auto als auch den öffentlichen Verkehrsmitteln gelangen sie in kurzer Zeit und je nachdem sowohl in die Berliner Innenstadt als auch ins grüne Umland.
Sonstige Angaben
Bei Rückfragen und für weitere Informationen stehen wir Ihnen jederzeit gern zur Verfügung. Vor Ort
Ansprechpartner: Herr Becker 0173 2307376
Grundriss
31a Red KG
>
>
31a Red EG
>
>
31a Red OG
>
>
31a Red DG
>
>
31a Red DG
>
>
Adresse
12307 Berlin
Interessante Orte
Preis- und Lageinformationen
Preistrend für Bestandsimmobilien in Lichtenrade (Tempelhof)