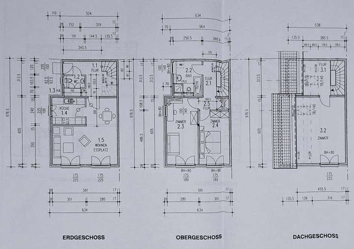
Dieses moderne Reihenendhaus mit ca. 128 m² Wohnfläche und vier Zimmern (Wohnzimmer, zwei kleinere Zimmer/ Kinderzimmer und ein größeres Zimmer/ Elternschlafzimmer) bietet gehobene Ausstattung und viel Platz für Familien. Das Haus erstreckt sich über drei Etagen und verfügt über ein Badezimmer sowie ein zusätzliches Gäste-WC. Die Einbauküche ist bereits vorhanden und großzügigen und hellen Zimmer laden zum Wohlfühlen ein. Ein gepflegter privater Garten mit Terrasse ist über das Wohnzimmer und die Küche zugänglich. Ein Außenstellplatz für Ihr Fahrzeug ist ebenfalls verfügbar und ist im Gesamtpreis inbegriffen. Im Garten zugehörig ist ein Schuppen (für z.B. Fahrräder/ Werkzeug). Eigener PWK-Stellplatz. Das Haus ist ab dem 01.01.2026 bezugsfrei.
Modernes Reihenendhaus in Berlin-Pankow
13127 Berlin
Die vollständige Adresse der Immobilie erhalten Sie vom Anbieter.
Auf Karte anzeigen
Die vollständige Adresse der Immobilie erhalten Sie vom Anbieter.
Infos
| Haustyp | Reiheneckhaus |
|---|---|
| Etagenzahl | 3 |
| Wohnfläche ca. | 128 m2 |
| Nutzfläche | 145 m2 |
| Grundstücksfläche | 218 m2 |
| Bezugsfrei ab | 1.1.2026 |
| Zimmer | 4 |
| Schlafzimmer | 3 |
| Badezimmer | 2 |
| Haustiere | Nach Vereinbarung |
| Garage/Stellplatz | Außenstellplatz |
| Anzahl Garage/Stellplatz | 1 |
Kosten
| Kaltmiete |
2.200 € |
|---|---|
| Nebenkosten | + 299 € |
| Heizkosten | in Nebenkosten enthalten |
| Gesamtmiete | 2.499 € |
| Kaution o. Genossenschaftsanteile | 10.000 |
Weiter mieten oder doch kaufen?
Wer in Miete wohnt, überweist dem Vermieter im Laufe der Jahre hohe Summen, die sich
auch in die eigenen vier Wände investieren lassen könnten.
Bausubstanz & Energieausweis
| Baujahr | 2001 |
|---|---|
| Objektzustand | Vollständig Renoviert |
| Qualität der Austattung | Gehoben |
| Energieausweis | liegt vor |
| Energieausweistyp | Verbrauchsausweis |
| Energieverbrauchskennwert | 56,3 kWh/(m²*a) |
| Energieeffizienzklasse | B |
56,3
kWh/(m²*a)
Energieeffizienzklasse B
- A+
- A
- B
- C
- D
- E
- F
- G
- H
- 0
- 25
- 50
- 75
- 100
- 125
- 150
- 175
- 200
- 225
- >250
Beschreibung des Objekts
Ausstattung
Gehobene Ausstattung sowie frisch renoviert: Parkettboden, Fußbodenheizung, komplette Einbauküche, vollausgestattetes Bad sowie Gästebad, gepflegter Garte mit Terrasse und Gartenschuppen, eigener PKW-Stellplatz, das Grundstück voll umzäunt
Lage
Das Haus in Pankow im Norden von Berlin liegt in einer ruhigen sowie familienfreundlichen Seitenstraße und zeichnet sich durch eine angenehme Bevölkerungsdichte und eine vielfältige Altersstruktur aus, was es ideal für Familien und junge Berufstätige macht. Die S-Bahn-Linie S2 sowie die Buslinien 150 und 250 sorgen für eine gute öffentliche Verkehrsanbindung. Gute Verkehrsanbindung auch per PKW. Der Stadtteil bietet eine hohe Sicherheit und eine freundliche Atmosphäre, geprägt von Mehr- und Einfamilienhäusern und einer lebendigen Nachbarschaft. In der Nähe befinden sich mehrere Spielplätze, Kitas und Schulen. Mehrere Supermärkte und Einkaufsmöglichkeiten sind gut erreichbar.
Sonstige Angaben
Ein Besichtigungstermin wird gerne bei Interesse mitgeteilt. Bitte nur vollständige Bewerbungsunterlagen einschicken (Standard: Schufa-Auskunft, Gehaltsnachweise, Personalausweiskopie, Mietschuldenfreiheitsbescheinigung).
Grundriss
Grundriss
>
>
Adresse
13127 Berlin
Interessante Orte
Preis- und Lageinformationen
Preistrend für Bestandsimmobilien in Französisch Buchholz (Pankow)