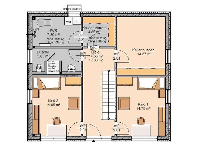
Lichtdurchflutete Stadtvilla – für das persönliche Wohnglück. Die individuelle Planung von Kern-Haus überzeugt mit 131 m² Wohnfläche, die sich auf 4 Zimmer aufteilt. Aufgrund der Grundstückssituation wurde die Raumaufteilung so konzipiert, dass sich im hinteren Bereich des Erdgeschosses ein Keller,- und ein Vorratsraum sowie der Hauswirtschaftsraum befindet. Die beiden Kinderzimmer sind zur Eingangsseite angeordnet und bieten dem Nachwuchs viel Platz zur freien Entfaltung. Mit dem Duschbad wird diese Etage vollständig.
Das Obergeschoss macht diese Stadtvilla zu einem einmaligen und individuellen Wohnerlebnis: Hier finden Sie eine offene Küche zum Wohn- und Essbereich und können von dort den eigenen Garten betreten. Bodentiefe Fenster ermöglichen einen freien Blick in die Landschaft. Hier kommt die Familie gerne zusammen.
Auf dieser Ebene befindet sich ein zudem das Elternschlafzimmer sowie ein großzügiges Badezimmer und ein praktischer Abstellraum in der Nähe der Küche.
Dieses Haus wird nach Ihren individuellen Wünschen geplant und ausgestattet!
Traumhaus von Kern-Haus: Individuell & massiv & mit Keller!
56112 Lahnstein
Die vollständige Adresse der Immobilie erhalten Sie vom Anbieter.
Auf Karte anzeigen
Die vollständige Adresse der Immobilie erhalten Sie vom Anbieter.
Finanzierungszertifikat
In nur zwei Minuten zu Ihrem persönlichen Finanzierungszertifkat.
Infos
| Haustyp | Einfamilienhaus |
|---|---|
| Wohnfläche ca. | 131 m2 |
| Grundstücksfläche | 561 m2 |
| Zimmer | 4 |
| Schlafzimmer | 4 |
| Badezimmer | 2 |
| Anzahl Garage/Stellplatz | 1 |
Kosten
| Kaufpreis |
671.480 € |
|---|---|
| Provision | Nein |
Finanzierungsrechner:
Kaufpreis:
600.000 €
Eigenkapital:
600.000 €
Monatliche Rate
0 €
Effektiver Jahreszins
0 %
Sollzinsbindung
10 Jahre
Bausubstanz & Energieausweis
| Baujahr | 2026 |
|---|---|
| Bauphase | Haus in Planung (projektiert) |
| Objektzustand | Erstbezug |
| Qualität der Austattung | Gehoben |
| Heizungsart | Wärmepumpe |
| Wesentliche Energieträger | Strom |
| Energieausweis | liegt vor |
| Energieausweistyp | Bedarfsausweis |
| Energieverbrauchskennwert | 19,0 kWh/(m²*a) |
| Energieeffizienzklasse | A+ |
19,0
kWh/(m²*a)
Energieeffizienzklasse A+
- A+
- A
- B
- C
- D
- E
- F
- G
- H
- 0
- 25
- 50
- 75
- 100
- 125
- 150
- 175
- 200
- 225
- >250
Beschreibung des Objekts
Ausstattung
4 Zimmer, offene Küche, Diele, Flur, Bad, Dusche, Hauswirtschaftsraum, Vorratsraum, Abstellraum, Kellerraum
Das gezeigte Traumhaus im Überblick:
+ Schlüsselfertiges Massivhaus im Sinne der Ausstattungsbeschreibung "Edition 25"
+ Zukunftsorientierte Energieausstattung in Form einer Luft-Wasser-Wärmepumpe und Fußbodenheizung sowie einer kontrollierten Wohnraumlüftung mit Wärmerückgewinnung
+ Inklusive Keller
Beste Markenausstattung in jedem Kern-Haus:
+ Zimmermannsmäßiger Dachstuhl aus Konstruktionsvollholz
+ Dacheindeckung mit Betondachsteinen von Braas
+ Hochwertiger Kunstharz-Außenputz für eine langlebige Fassade
+ Vollständige Badausstattung von Villeroy & Boch mit Badewanne und flacher Duschwanne sowie einer Echtglasduschkabine
+ Fliesen von Villeroy & Boch in Bad und WC
+ Haustür mit 5-fach-Sicherheitsverriegelung
+ Erstklassige Innentüren der Marke Herholz
+ Fenster mit 3-Scheiben-Wärmeschutzverglasung und Rollläden
+ Stahl-Holz-Treppe mit individueller Farbgestaltungsmöglichkeit
+ Vollständige und überdurchschnittliche Elektroausstattung inklusive Klingelanlage und Netzwerkdosen
+ Rauchmelder für Ihre Sicherheit
+ Alle Leistungen aus einer Hand
+ Alle Planungs- und Architektenleistungen
+ Einsatz regionaler Handwerksbetriebe
+ Baubegleitende 5-Phasen-TÜV-Prüfung und Blower-Door-Test
+ Individuelle Anpassung auf Ihre Bedürfnisse
+ Auf Wunsch mit weiteren Energietechniken erhältlich
Lage
Das charmante Baugrundstück befindet sich in zentraler Lage von Lahnstein.
Der Ort Lahnstein ist eine große Stadt im Rhein-Lahn-Kreis und liegt an der Mündung der Lahn, welche fünf Kilometer südlich von Koblenz in den Rhein mündet.
Lahnstein erreichen Sie über die B 42 auf der rechten Rheinseite und über die B 260 (genannt: die Bäderstraße) nach Bad Ems und Nassau bis Niederwalluf bei Wiesbaden.
Die Lahn überqueren die Lahntalbrücke (B 42), die Rudi-Geil-Brücke (L 335) zwischen Ober- und Niederlahnstein, die Lahnbrücke Friedrichssegen sowie zwei Eisenbahnbrücken.
Lahnstein ist eine lebendige und traditionsreiche Stadt mit viel Kultur und besonderem Flair, in der das Feiern und die Lebensfreude nicht zu kurz kommen.
Die Stadt bietet auch eine auf hohem Niveau stehende Infrastruktur: Dazu zählen z.B. das Bildungsangebot mit allen Schulformen, die sehr gute Versorgung mit Kindertagesstätten oder das Kulturangebot von der Volkshochschule bis zum Theaterprogramm.
Hinzu kommen eine schöne Rhein- und Lahnpromenade, ideale Wandermöglichkeiten und eine Vielzahl von Einrichtungen für die Freizeitgestaltung.
Entdecken Sie einen neuen Lebensraum für sich und Ihre Familie in Lahnstein!
Sonstige Angaben
Kern-Haus baut individuelle und massive Architektenhäuser zu einem attraktiven Preis-Leistungs-Verhältnis – und das bereits mit einer Erfahrung seit 1980. Bei Kern-Haus erhalten Sie unter anderem 10 Jahre Gewährleistung auf die wesentlichen Bauleistungen, bis zu 24 Monate Preissicherheit sowie eine dokumentierte 5-Phasen-TÜV-Prüfung während der Bauphase. Jedes Kern-Haus als Effizienzhaus 40 ist bereits QNG-zertifiziert durch die Deutsche Gesellschaft für nachhaltiges Bauen (DGNB).
40 Jahre Expertise für das massive, energieeffiziente Bauen: Kern-Haus realisiert Massivhäuser in Ziegel, Bims, Porenbeton oder Stahlbeton (DuoTherm).
Kern-Haus setzt auf eine hohe Bauqualität der Handwerker und auf eine große Auswahl starker Marken. So verwendet Kern-Haus beim Bau Ihres Hauses nur hochwertige Markenprodukte renommierter Hersteller – wie etwa Produkte von Villeroy & Boch.
Preise und Auszeichnungen von Kern-Haus:
- German Brand Award in den Jahren 2018 und 2021
- Hausbau Design Award: Sieger in den Jahren 2017, 2018, 2019, 2020, 2021, 2022 und 2023
- Deutscher Traumhauspreis: Sieger in den Jahren 2014, 2015, 2016 und 2018 und Silber 2017, 2020 und 2021
- Mittelstandspreis "Top 100" in den Jahren 2014, 2016, 2018, 2020 und 2022
- German Design Award im Jahr 2018
Weitere Informationen
Der gezeigte Preis versteht sich inklusive Grundstück und exklusive der Baunebenkosten. Auf das Grundstück kann eine Maklerprovision anfallen!
Grundriss
Grundriss Erdgeschoss
>
>
Grundriss Obergeschoss
>
>
Adresse
56112 Lahnstein
Interessante Orte
Preis- und Lageinformationen
Preistrend für Bestandsimmobilien in Lahnstein