Dieses beeindruckende Einfamilienhaus im klassischen Satteldachstil vereint Eleganz und Funktionalität auf großzügigen 201,37 Quadratmetern, verteilt auf zwei Etagen. Die Architektur sorgt durch zwei Zwerchgiebel für eine beeindruckende Raumhöhe im Obergeschoss, was nicht nur für mehr Licht sorgt, sondern auch die nutzbare Fläche optimal ausschöpft. Mit sieben Zimmern, darunter fünf gemütliche Schlafzimmer und ein modernes Badezimmer, bietet dieses zukünftige Zuhause genügend Platz für die ganze Familie. Auf dem großzügigen Grundstück von 920 Quadratmetern hast du ausreichend Freiraum für kreative Gartengestaltung oder Spielmöglichkeiten für die Kinder.
LivingHaus bietet dir die Möglichkeit, dein Haus ganz nach deinen individuellen Wünschen und Vorstellungen zu gestalten. Egal, ob du eine offene Wohnküche für gesellige Abende oder ein heimeliges Arbeitszimmer benötigst, jede Entscheidung liegt in deinen Händen. Und mit den zusätzlichen Leistungen von LivingHaus wird dein Bauprojekt noch einfacher und stressfreier. Die hochwertige Traumküche wird exakt auf deinen Grundriss abgestimmt und mit modernster Technik sowie cleveren Stauraumlösungen ausgestattet. So kannst du direkt nach dem Einzug in deinem neuen Zuhause loskochen und deine kulinarischen Fähigkeiten entfalten.
Mit dem Living Haus Bau-Cockpit behältst du jederzeit den Überblick über dein Bauprojekt. Die digitale Plattform ermöglicht dir den Zugriff auf Zeitpläne und Dokumente, sodass du jederzeit informiert bleibst. Das I-KON-System sorgt dafür, dass dein Haus nicht nur umweltfreundlich, sondern auch energieeffizient gebaut wird. Durch die innovativen Lösungen benötigst du nur 55% der Energie eines Standardhauses.
Finanzielle Unterstützung erhältst du durch das Zuhause-Darlehen, das dir bis zu 250.000 Euro zu einem besonders günstigen Zinssatz bietet. Das Zuhause-Paket enthält eine hochwertige Grundausstattung, sodass du dich um nichts kümmern musst - alles wird optimal aufeinander abgestimmt und fix und fertig geliefert. Wenn du gerne selbst Hand anlegst, bietet dir das DIY-Ausbau-Coaching die Möglichkeit, unter Anleitung von Experten den Innenausbau selbst zu gestalten. Du lernst viele praktische Tipps kennen und wirst zum Profi in deinem eigenen Zuhause.
LivingHaus - Dein maßgeschneidertes Traumhaus in Wedemark
30900 Wedemark
Die vollständige Adresse der Immobilie erhalten Sie vom Anbieter.
Auf Karte anzeigen
Die vollständige Adresse der Immobilie erhalten Sie vom Anbieter.
Finanzierungszertifikat
In nur zwei Minuten zu Ihrem persönlichen Finanzierungszertifkat.
Infos
| Haustyp | Einfamilienhaus |
|---|---|
| Etagenzahl | 2 |
| Wohnfläche ca. | 201 m2 |
| Nutzfläche | 201,37 m2 |
| Grundstücksfläche | 920 m2 |
| Zimmer | 7 |
| Schlafzimmer | 5 |
| Badezimmer | 1 |
Kosten
| Kaufpreis |
742.948 € |
|---|
Finanzierungsrechner:
Kaufpreis:
600.000 €
Eigenkapital:
600.000 €
Monatliche Rate
0 €
Effektiver Jahreszins
0 %
Sollzinsbindung
10 Jahre
Bausubstanz & Energieausweis
| Baujahr | 2026 |
|---|---|
| Bauphase | Haus in Planung (projektiert) |
| Qualität der Austattung | Gehoben |
| Energieausweis | liegt vor |
| Energieausweistyp | Bedarfsausweis |
| Energieverbrauchskennwert | 18,0 kWh/(m²*a) |
| Energieeffizienzklasse | A+ |
18,0
kWh/(m²*a)
Energieeffizienzklasse A+
- A+
- A
- B
- C
- D
- E
- F
- G
- H
- 0
- 25
- 50
- 75
- 100
- 125
- 150
- 175
- 200
- 225
- >250
Beschreibung des Objekts
Ausstattung
Die Ausstattung deines LivingHaus ist durchdacht und individuell anpassbar. Du erhältst eine hochwertige Traumküche, die perfekt auf deine Bedürfnisse und den Grundriss abgestimmt ist. Die Grundausstattung umfasst moderne Böden, edle Türen und stilvolle Sanitäranlagen, die allesamt optimal aufeinander abgestimmt sind. Die Bautechniken sind auf höchste ökologische, ökonomische und technische Standards ausgelegt, einschließlich innovativer Dämmung und intelligenter Heizsysteme. Du profitierst von einer 18-monatigen Festpreisgarantie und umfassenden Bauversicherungen, die dir Sicherheit während des gesamten Bauprozesses geben. Zusätzlich ist eine individuelle Planung der Küche, ein Bodengutachten sowie die gesamte Bauantragsplanung enthalten. Ob Bodenplatte oder Keller: Du erhältst alles aus einer Hand. Dein neues Zuhause wird durch ein hohes Maß an Vorfertigung schnell und effizient realisiert, damit du dein zukünftiges Zuhause so gestalten kannst, wie du es dir wünschst.
Lage
Wedemark bietet dir eine hervorragende Lebensqualität mit einer Vielzahl an Bildungs-, Gesundheits- und Freizeitmöglichkeiten. In unmittelbarer Nähe befinden sich mehrere Kindergärten und Schulen, wie die Grundschule in Bissendorf, die für ihre familiäre Atmosphäre und hohe Bildungsstandards bekannt ist. Auch das Gymnasium in Wedemark genießt einen exzellenten Ruf. Für die Gesundheitsversorgung sind zahlreiche Arztpraxen und Apotheken vorhanden, die sich um die Bedürfnisse der Anwohner kümmern. Einkaufsmöglichkeiten sind durch Supermärkte wie Edeka und Rewe gegeben, die eine breite Produktpalette anbieten und auch sonntags geöffnet haben.
Für die Freizeitgestaltung bietet die Umgebung von Wedemark zahlreiche Möglichkeiten: Ob Spaziergänge im Naturpark, Radfahren entlang der idyllischen Feldwege oder Ausflüge ins nahegelegene Schwimmbad - hier findest du alles, was das Herz begehrt. Der öffentliche Nahverkehr ist gut ausgebaut, sodass du bequem mit der S-Bahn nach Hannover oder in die umliegenden Städte pendeln kannst. Die Autobahnanbindung sorgt zudem für eine schnelle Erreichbarkeit des Stadtzentrums und der umliegenden Regionen. Wedemark ist also der ideale Ort für Familien, Naturliebhaber und Pendler, die ein harmonisches und aktives Leben führen möchten.
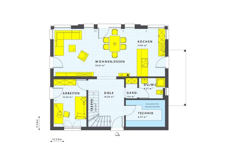
Grundriss
Grundriss EG
>
>
Grundriss OG
>
>
Adresse
30900 Wedemark
Interessante Orte
Preis- und Lageinformationen
Preistrend für Bestandsimmobilien in Wedemark