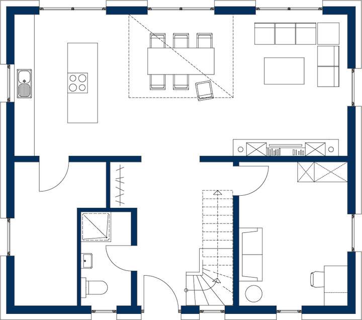
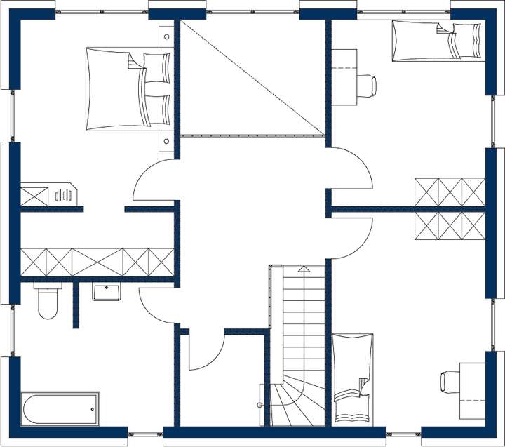
Das moderne Stadthaus bietet auf seinen zwei Geschossen ausreichend Wohnraum für eine Familie.
Und auch im Innenbereich sorgt die Dachkonstruktion für eine maximale Ausnutzung der Fläche. Der durch eine schmale Wand getrennte Wohn- und Essbereich sorgt für ausreichende Privatsphäre in beiden Räumen, ohne diese komplett voneinander zu trennen.
Dies ist ein Hausbeispiel. Weitere Möglichkeiten stehen zur Verfügung. Eine individuelle Bebbauung ist möglich.
Der Grundstückspreis liegt bei 280.000,-€. Das Haus mit 154qm Wohnfläche kann für 315.990,-€ zusätzlich erworben werden.
Vereinbaren Sie mit uns ein unverbindliches Beratungsgespräch und informieren Sie sich über die vielseitigen Möglichkeiten.
Sie haben individuelle Vorstellungen von der Gestaltung Ihres Hauses? Selbstverständlich kann der Grundriss und das Haus Ihren Wünschen angepasst werden.
Das Haus wird für Sie bezugsfertig (ohne Maler u. Teppich) erstellt.
attraktives Baugrundstück
01689 Weinböhla
Die vollständige Adresse der Immobilie erhalten Sie vom Anbieter.
Auf Karte anzeigen
Die vollständige Adresse der Immobilie erhalten Sie vom Anbieter.
Finanzierungszertifikat
In nur zwei Minuten zu Ihrem persönlichen Finanzierungszertifkat.
Infos
| Vermarktungsart | Kaufen |
|---|---|
| Grundstücksfläche | 800 m2 |
| Empfohlene Nutzung | Einfamilienhaus |
Kosten
| Miete pro Jahr |
280.000 € |
|---|---|
| Provision |
7,14% |
Finanzierungsrechner:
Kaufpreis:
600.000 €
Eigenkapital:
600.000 €
Monatliche Rate
0 €
Effektiver Jahreszins
0 %
Sollzinsbindung
10 Jahre
Beschreibung des Objekts
Lage
Das 800 m² Grundstück liegt in zentraler, aber ruhiger Lage.
2 weitere Grundstücke mit 660qm und 445qm steht zur Verfügung.
Sonstige Angaben
Weitere Angaben nur in einem persönlichen Gespräch möglich, aufgrund der hohen Nachfrage.
Ein Besichtugungstermin findet am 03.01.2026 statt. Anmeldungen werden entgegegen genommen.
Die Grundstücke sind nicht erschlossen. Eine Teilung erfolgt derzeit.
Wir bieten Ihnen Bauzeit u.- Festpreisgarantie.
Kernkompetenzen der FIBAV:
-Neubau von Massivhäusern
-Verkauf von Gebrauchtimmobilien
-Vermietung
-Sanierung
-Fianzierung
Dieses Angebot ist freibleibend und unverbindlich, Zwischenverkauf, sowie Irrtum und technische und architektonische Änderungen vorbehalten.
Bei allen vorliegenden Abbildungen und Fotografien handelt es sich um beispielhafte Darstellungen. Möblierungen und sonstige Einrichtungsgegenstände, Lampen, Außenanlagen, wie zum Beispiel Terrassen, Zuwegungen, Stellplätze, Carports, Pool und Gartenanlagen inkl. Bepflanzung sind nicht im Leistungsumfang enthalten. Der Leistungsumfang ergibt sich aus der jeweiligen individuellen Baubeschreibung des Hauses.
Grundriss
fallersleben EG
>
>
fallersleben OG
>
>