Gehobene Service-Wohnanlage eingebettet im lebendigen Tabak-Quartier in Bremen Woltmershausen.
Infos
| Miet-/ Kaufobjekt | Miete |
|---|---|
| Mietpreis ab (zzgl. Nebenkosten) | 1.859 € |
| Einrichtungstyp | Betreutes Wohnen |
| Anzahl betreute Wohnungen | 24 |
| Haustiere | Nach Vereinbarung |
Kosten
| Kaufpreis |
0 € |
|---|
Finanzierungsrechner:
Kaufpreis:
600.000 €
Eigenkapital:
600.000 €
Monatliche Rate
0 €
Effektiver Jahreszins
0 %
Sollzinsbindung
10 Jahre
Infos zu den Wohneinheiten
| Wohnfläche | von 103.3 m2 |
|---|---|
| Wohnfläche | von 3 |
| Balkon/ Terrasse | Ja |
Dienstleistungen
Bausubstanz & Energieausweis
| Baujahr | 2026 |
|---|---|
| Heizungsart | Wärmepumpe |
| Wesentliche Energieträger | Fernwärme |
| Energieausweis | liegt vor |
Kurzbeschreibung
Beschreibung des Objekts
Die Johanniter-Unfall-Hilfe bietet im Bremer Tabak Quartier im Stadtteil Woltmershausen Wohnen mit Service an. Alle, der insgesamt 24 barrierearmen Mietwohnungen sind mit einem Notrufsystem ausgestattet und auf die Bedürfnisse von Seniorinnen und Senioren zugeschnitten. Der inhaltliche Schwerpunkt der neuen Einrichtung ist auf Gemeinschaft und Aktivität ausgerichtet. Die Johanniter-Unfall-Hilfe betreibt in der Anlage ein Beratungs-/Servicebüro für alle Fragen des täglichen Lebens. Das Büro steht allen Bewohnerinnen und Bewohnern zur Verfügung. Der Neubau wird vollständig über die Abwärme aus Entwässerungskanälen beheizt. Die hier entnommene Abwärme wird dabei mittels Wärmepumpen auf die erforderliche Temperatur gebracht.
Ausstattung
Vinyl-Design-Fußboden in Holzoptik, Einbauküche, bodentiefe Fenster.
Lage
Von der historischen Zigarettenfabrik hin zum neuen Zukunftsquartier für Arbeiten, Wohnen und Freizeit. Auf dem über 20 Hektar großen Gelände des Tabak Quartiers erwarten Sie Büros, Wohnungen, Parks, spannende Gastronomie- und Kulturangebote, ein Hotel, eine Kita und viele weitere Projekte. Inmitten des Areals befindet sich das Service-Wohnen-Gebäude der Johanniter.
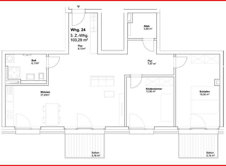
Grundriss
Wohnung 24_3 Zimmer 100er Wohn
>
>