Willkommen im Village Lichtenrade. In diesem dreistöckigen Reihenendhaus (Typ "Azur") finden Familien alles vor, was städtisches Wohnen im Grünen ausmacht.
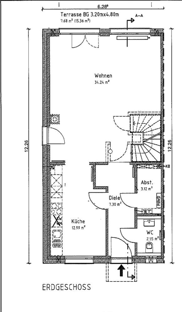
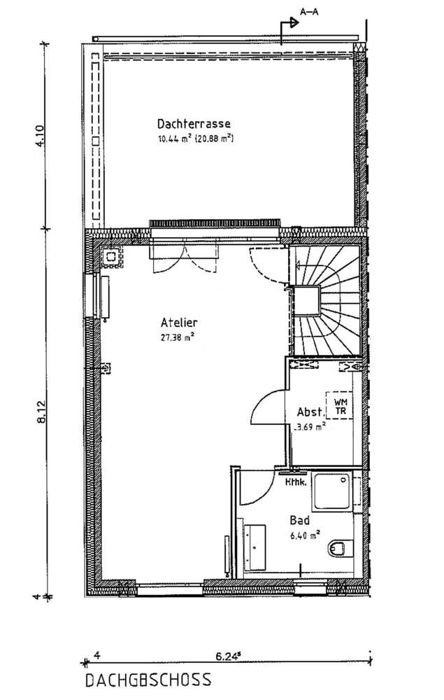
Gleich vom Eingangsflur gehen Gäste-WC sowie eine Abstellraum ab.Gegenüberliegend befindet sich die 13qm grosse Küche mit hochwertigen Einbauten und offenem Durchgang zum Wohn- und Esszimmer als Lebensmittelpunkt Ihres neuen Zuhauses. Von hier aus haben Sie Zutritt zur Terrasse mit Südausrichtung auf dem grossen Eckgrundstück. Im ersten Obergeschoss finden Sie drei unterschiedlich grosse Schlafzimmer sowie ein geräumiges Wannenbad mit Tageslicht, Ausblick und separater Dusche vor. Im obersten, dritten Geschoss folgt ein Atelier mit teils 3m hohen Decken, grossem Abstellraum, Duschbad (Tageslicht) und eigener Terrasse in Südausrichtung.
Am besten Sie machen sich selbst ein Bild vom Village Lichtenrade und vereinbaren individuell eine ausführliche Einzelbesichtigung mit uns. Dies selbstverständlich auch gern am Wochenende. Wir freuen uns auf Ihre Kontaktaufnahme, gern auch telefonisch.
Reihenendhaus mit fünf Zimmern - Samstagbesichtigung 03 Januar 2026
12307 Berlin
Die vollständige Adresse der Immobilie erhalten Sie vom Anbieter.
Auf Karte anzeigen
Die vollständige Adresse der Immobilie erhalten Sie vom Anbieter.
Infos
| Haustyp | Reiheneckhaus |
|---|---|
| Etagenzahl | 3 |
| Wohnfläche ca. | 174 m2 |
| Nutzfläche | 192 m2 |
| Grundstücksfläche | 208 m2 |
| Bezugsfrei ab | Januar 2026 |
| Zimmer | 5 |
| Schlafzimmer | 4 |
| Badezimmer | 2 |
| Garage/Stellplatz | Carport |
| Anzahl Garage/Stellplatz | 1 |
Kosten
| Kaltmiete |
2.290 € |
|---|---|
| Nebenkosten | + 330 € |
| Heizkosten | + 200 € |
| Gesamtmiete | 2.890 € (zzgl. Heizkosten) |
| Miete für Garage/Stellplatz | 70 € |
| Kaution o. Genossenschaftsanteile | 3 Monatsmieten |
Weiter mieten oder doch kaufen?
Wer in Miete wohnt, überweist dem Vermieter im Laufe der Jahre hohe Summen, die sich
auch in die eigenen vier Wände investieren lassen könnten.
Bausubstanz & Energieausweis
| Baujahr | 2020 |
|---|---|
| Objektzustand | Neuwertig |
| Heizungsart | Zentralheizung |
| Energieausweis | liegt vor |
| Energieausweistyp | Bedarfsausweis |
| Energieverbrauchskennwert | 45,1 kWh/(m²*a) |
| Energieeffizienzklasse | A |
45,1
kWh/(m²*a)
Energieeffizienzklasse A
- A+
- A
- B
- C
- D
- E
- F
- G
- H
- 0
- 25
- 50
- 75
- 100
- 125
- 150
- 175
- 200
- 225
- >250
Beschreibung des Objekts
Ausstattung
- hochwertige Einbauküche mit Markengeräten (Siemens, Constructa)
- Holzparkett in allen Wohnräumen (Eiche natur)
- Hauptbad mit Wanne und separater, verglaster Dusche
- hochwertige Sanitärobjekte und Armaturen (Villeroy&Boch, Grohe)
- Gäste-WC im Eingangsbereich
- Terrasse mit 15 qm und großem Gartengrundstück
- Dachterrasse mit 20qm und Südausrichtung
- dezentrale Lüftung mit Wärmerückgewinnung
- separate Netzwerkdose auf jeder Etage
Lage
Das Village Lichtenrade liegt im gleichnamigen Ort als südlichstem Teil des Berliner Bezirks Tempelhof-Schöneberg. Die aus Reihenhäusern und Doppelhaushälften entstandene Wohnsiedlung nördlich der Alten Mälzerei ist dank Gärten und verkehrsberuhigten Privatstrassen familienfreundlich und zudem sehr gut angebunden.Bäcker und Supermärkte sind nach 4min Fußweg, Geschäftszentrum Bahnhofstrasse und Bushaltestelle nach 10 Minuten erreicht. Die S-Bahn Lichtenrade liegt ca 600m und S-Bahn Schichauweg ca 400m entfernt. Sowohl mit Auto als auch den öffentlichen Verkehrsmitteln gelangen sie in kurzer Zeit und je nachdem sowohl in die Berliner Innenstadt als auch ins grüne Umland.
Sonstige Angaben
Bei Rückfragen und für weitere Informationen stehen wir Ihnen jederzeit gern zur Verfügung. Vor Ort
Ansprechpartner: Herr Becker 0173 2307376
Grundriss
Grundriss Erdgeschoss
>
>
Grundriss Obergeschoss
>
>
Grundriss Dachgeschoss
>
>
Adresse
12307 Berlin
Interessante Orte
Preis- und Lageinformationen
Preistrend für Bestandsimmobilien in Lichtenrade (Tempelhof)