Dieses vielseitig nutzbare Wohn- und Geschäftshaus in zentraler Lage von Hüttenberg-Rechtenbach bietet sowohl Kapitalanlegern als auch Eigennutzern attraktive Möglichkeiten. Ob Arbeiten und Wohnen unter einem Dach oder ausschließlich als zukunftssichere Investition – hier stehen Ihnen zahlreiche Optionen offen.
Die Immobilie wurde im Jahr 1933 errichtet und befindet sich auf einem großzügigen Grundstück von 1.253 m². Insgesamt verteilen sich zwei Wohneinheiten sowie eine Gewerbeeinheit auf drei Geschossen.
Gewerbeeinheit – Erdgeschoss
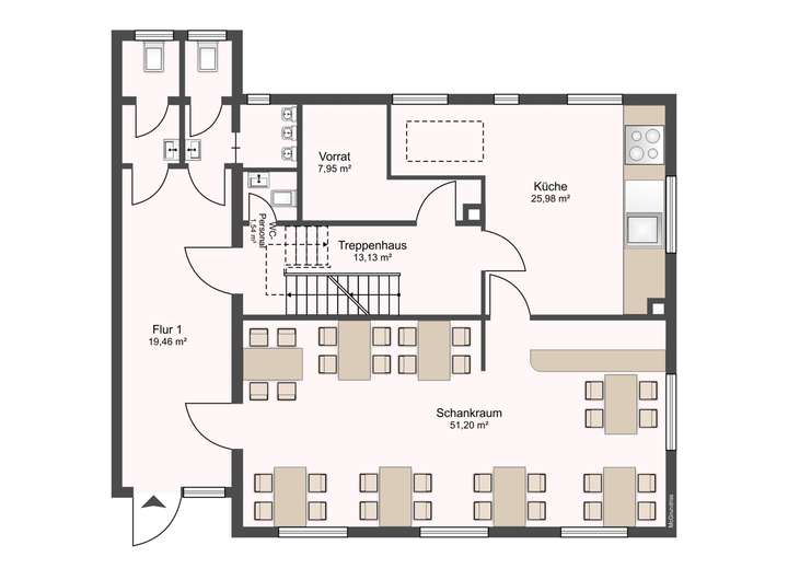
Die Gewerbefläche umfasst 113 m² und wurde zuletzt gastronomisch betrieben. Ein aktuelles Brandschutzkonzept ist vorhanden. Denkbar ist eine erneute Nutzung im Gastronomiebereich, ebenso wie eine Umgestaltung zu Praxis- bzw. Büroräumen oder eine Umnutzung zu Wohnraum – je nach Bedarf und Konzept.
Wohnungen – Ober- und Dachgeschoss
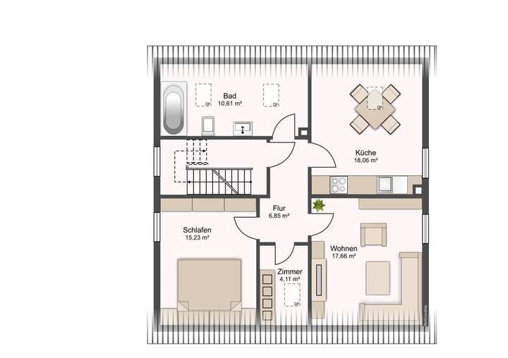
Im Obergeschoss befindet sich eine vermietete Wohnung mit einer Wohnfläche von 91,75 m² – ideal zur sofortigen Renditeerzielung.
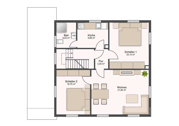
Die Dachgeschosswohnung bietet 72,52 m² und ist bereits frei – somit sofort bezugsfertig oder direkt weitervermietbar.
Wohn- und Geschäftshaus in Hüttenberg-Rechtenbach
35625 Hüttenberg
Die vollständige Adresse der Immobilie erhalten Sie vom Anbieter.
Auf Karte anzeigen
Die vollständige Adresse der Immobilie erhalten Sie vom Anbieter.
Finanzierungszertifikat
In nur zwei Minuten zu Ihrem persönlichen Finanzierungszertifkat.
Infos
| Haustyp | Mehrfamilienhaus |
|---|---|
| Etagenzahl | 3 |
| Wohnfläche ca. | 164 m2 |
| Nutzfläche | 113,63 m2 |
| Grundstücksfläche | 1.253 m2 |
| Zimmer | 8 |
| Badezimmer | 2 |
| Anzahl Garage/Stellplatz | 10 |
Kosten
| Kaufpreis |
349.000 € |
|---|---|
| Provision |
3,57 % inkl. MwSt. |
Finanzierungsrechner:
Kaufpreis:
600.000 €
Eigenkapital:
600.000 €
Monatliche Rate
0 €
Effektiver Jahreszins
0 %
Sollzinsbindung
10 Jahre
Bausubstanz & Energieausweis
| Baujahr | 1933 |
|---|---|
| Objektzustand | Renovierungsbedürftig |
| Heizungsart | Zentralheizung |
| Wesentliche Energieträger | Gas |
| Energieausweis | liegt vor |
| Energieausweistyp | Verbrauchsausweis |
| Energieverbrauchskennwert | 152,4 kWh/(m²*a) |
| Energieeffizienzklasse | E |
152,4
kWh/(m²*a)
Energieeffizienzklasse E
- A+
- A
- B
- C
- D
- E
- F
- G
- H
- 0
- 25
- 50
- 75
- 100
- 125
- 150
- 175
- 200
- 225
- >250
Beschreibung des Objekts
Ausstattung
- zwei Wohnungen
- eine Gewerbeeinheit
- Gas-Zentralheizung
- großer Garten
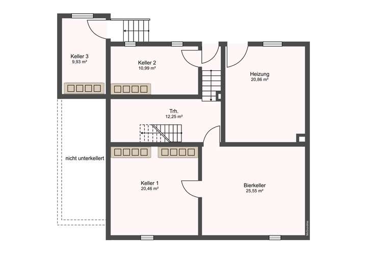
- unterkellert
- PKW-Stellplätze
Lage
Die Immobilie befindet sich in zentraler Lage von Hüttenberg-Rechtenbach, direkt an der Frankfurter Straße 12. Der Ortsteil zeichnet sich durch eine gewachsene, familienfreundliche Infrastruktur sowie eine gute Erreichbarkeit der umliegenden Städte aus. Einrichtungen des täglichen Bedarfs, wie Einkaufsmöglichkeiten, Gastronomie, Dienstleister und medizinische Versorgung, befinden sich in naher Umgebung und sind größtenteils bequem zu Fuß erreichbar.
Rechtenbach profitiert von einer verkehrsgünstigen Anbindung. Über die nahegelegenen regionalen Verkehrsachsen sind die umliegenden Mittelzentren zügig erreichbar. Zudem bietet die Lage einen idealen Ausgangspunkt für Berufspendler wie auch für Gewerbetreibende, die eine gute Sichtbarkeit und Erreichbarkeit ihres Standortes schätzen.
Gleichzeitig überzeugt das Wohnumfeld durch seine naturnahe Lage und kurze Wege ins Grüne. Zahlreiche Freizeit- und Erholungsmöglichkeiten in der näheren Umgebung sorgen für einen hohen Wohnwert und ein attraktives Lebensumfeld.
Grundriss
Grundriss Gewerbe
>
>
Grundriss Obergeschoss
>
>
Grundriss Dachgeschoss
>
>
Grundriss Keller
>
>
Adresse
35625 Hüttenberg
Interessante Orte
Preis- und Lageinformationen
Preistrend für Bestandsimmobilien in Hüttenberg