Baugrundstück mit Baugenehmigung
in schöner Wohnlage von Eltville-Rauenthal
Im Überblick:
- ideal für ein modernes Doppelhaus oder ein Einfamilienhaus
- Baugenehmigung liegt bereits vor
- Provisionsfrei
- schnelle Anbindung ins komplette Rhein-Mainz-Gebiet
- in schöner Lage teilweise mit Fernblick
Grundstück:
ca. 370 m²
Bebauung:
nach §34 BauGB Nachbarschaftsbebauung
Baugenehmigung für ein Doppelhaus liegt bereits vor
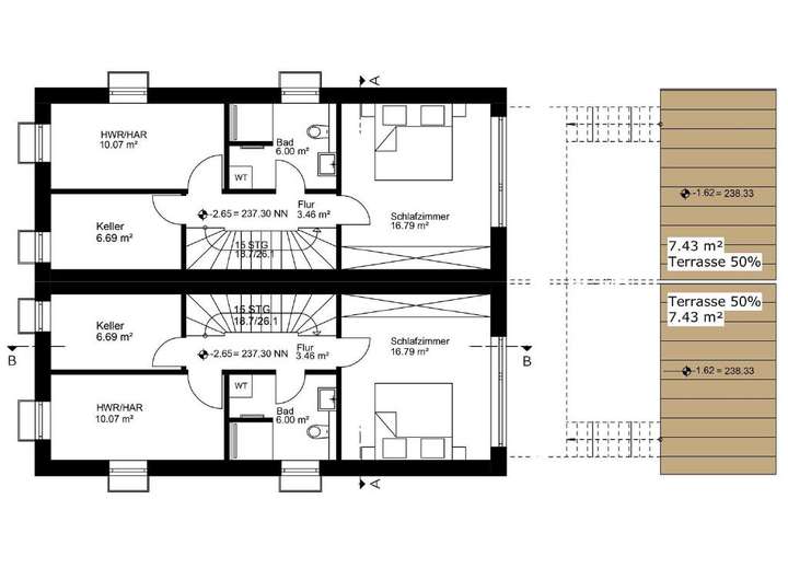
Planungsvorschlag:
großes Doppelhaus mit jeweils ca. 125 m² Wohnfläche
weitere Details gerne auf Anfrage
Stellplätze:
jeweils 2 Außenstellplätze möglich
Lage:
in zentraler, dennoch ruhiger Wohnlage - durch Naturnaher Umgebung tolle
Spazier- und Wandermöglichkeiten und schnelle Anbindung ins Rhein-Main-Gebiet
Gesamtkaufpreis:
Optional: Grundstück mit ca. 185 m²
Für die Zusendung eines Exposés benötigen wir Ihre vollständige Anschrift mit Telefon- Nr. Bitte füllen Sie freundlicherweise das Kontakt-Formular aus.
*** Sie möchten Ihr Haus in gute Hände geben? Wir haben sicherlich auch für Ihre Immobilie den passenden Käufer. Sprechen Sie uns unverbindlich an. Wir beraten Sie gerne
Baugrundstück mit Baugenehmigung in schöner Wohnlage
65345 Eltville am Rhein
Die vollständige Adresse der Immobilie erhalten Sie vom Anbieter.
Auf Karte anzeigen
Die vollständige Adresse der Immobilie erhalten Sie vom Anbieter.
Finanzierungszertifikat
In nur zwei Minuten zu Ihrem persönlichen Finanzierungszertifkat.
Infos
| Vermarktungsart | Kaufen |
|---|---|
| Grundstücksfläche | 370 m2 |
Kosten
| Miete pro Jahr |
298.000 € |
|---|---|
| Provision | Nein |
Finanzierungsrechner:
Kaufpreis:
600.000 €
Eigenkapital:
600.000 €
Monatliche Rate
0 €
Effektiver Jahreszins
0 %
Sollzinsbindung
10 Jahre