Es handelt sich um 3 Grundstücke die einzeln oder zusammen zum Verkauf stehen. Zwei Grundstücke liegen nebeneinander, wären also individuell bebaubar, das dritte befindet sich in Sichtweite. ( 451qm, 449qm, 451qm )
Der Bebauungsplan ist bereits vorhanden, die Erschließung beantragt.
Für Ihre Investitionskalkulation berücksichtigen Sie folgen Anhaltszahlen:
Grundstückspreis Euro 750,00 p.qm
Erschließung vorraussichtlich Euro 140,00 p.qm
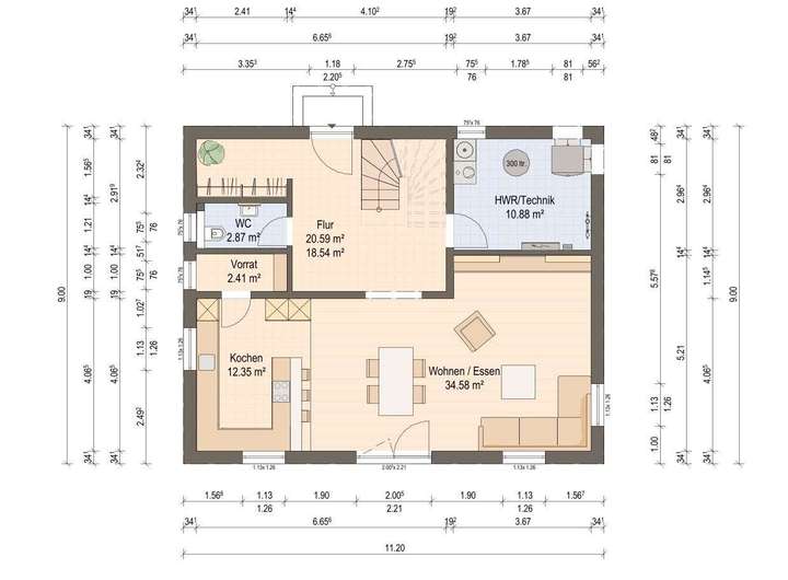
Eine Kalkulationen für schlüsselfertiges Bauen liegen vor und damit auch die planbaren Eckpunkte der jeweilgen Bebauungsmöglichkeiten .
Entdecken Sie Ihr Traumgrundstück in Althegnenberg! Diese großzügigen Grundstücke bietet die perfekte Gelegenheit, Ihr persönliches Paradies zu schaffen. Mit Flächen von ca. 450 qm bietet Sie ausreichend Platz für ein Einfamilienhaus, einen Garten und eventuell sogar zusätzliche Gebäude wie eine Garage oder ein Gästehaus.
Die Grundstücke liegt in einem entstehenden Wohngebiet in ruhigen und doch zentrumsnahen Lage, die sowohl Privatsphäre als auch bequemen Zugang zu allen Annehmlichkeiten gewährleistet. Die umliegende Natur und die malerische Landschaft von Althegnenberg machen dieses Grundstück zu einem idealen Ort für Naturliebhaber und diejenigen, die eine ruhige Umgebung schätzen.
Zu den Highlights der Grundstücke gehören:
- Ausreichend Platz für ein Einfamilienhaus und Garten
- Ruhige und doch zentrale Lage
- Nähe zu Schulen, Einkaufsmöglichkeiten und öffentlichen Verkehrsmitteln
- Möglichkeit zur Errichtung zusätzlicher Gebäude wie Garage oder Gästehaus
- Atemberaubende Aussicht auf die umliegende Landschaft
Nutzen Sie diese einmalige Gelegenheit, um Ihr neues Zuhause in Althegnenberg zu bauen. Kontaktieren Sie uns noch heute für weitere Informationen.
3 Baugrundstücke zwischen Augsburg und München sofort sichern und dann gut Ihr Vorhaben durchplanen
82278 Althegnenberg
Die vollständige Adresse der Immobilie erhalten Sie vom Anbieter.
Auf Karte anzeigen
Die vollständige Adresse der Immobilie erhalten Sie vom Anbieter.
Finanzierungszertifikat
In nur zwei Minuten zu Ihrem persönlichen Finanzierungszertifkat.
Infos
| Vermarktungsart | Kaufen |
|---|---|
| Grundstücksfläche | 450 m2 |
| Bebaubar nach | Bebauungsplan |
Kosten
| Miete pro Jahr |
0 € |
|---|---|
| Provision |
2,5% zzgl. MWST ( Kapitalanleger 5% zzgl. gesetzlicher Mehrwertsteuer Alle Angaben nach bestem Wissen. Irrtum und Zwischenverkauf vorbehalten. Der Käufer zahlt im Erfolgsfall an die Firma Portal Neustart 24 plus GmbH eine Käufer-Maklerprovision in Höhe von 2,5% (bei Kapitalanlegern 5 %) zzgl. gesetzlicher MwSt.. Die Provision errechnet sich aus dem beurkundeten Kaufpreis. Dieses Exposé ist eine Vorinformation, als Rechtsgrundlage gilt allein der notariell abgeschlossene Kaufvertrag. |
Finanzierungsrechner:
Kaufpreis:
600.000 €
Eigenkapital:
600.000 €
Monatliche Rate
0 €
Effektiver Jahreszins
0 %
Sollzinsbindung
10 Jahre
Beschreibung des Objekts
Lage
Entdecken Sie Ihr neues Zuhause in der charmanten Gemeinde Althegnenberg, einem idyllischen Ort im oberbayerischen Landkreis Fürstenfeldbruck. Diese Immobilie befindet sich in einer ruhigen Wohngegend, die sowohl die Vorzüge des ländlichen Lebens als auch die Nähe zu urbanen Annehmlichkeiten bietet.
Althegnenberg liegt verkehrsgünstig, nur etwa 30 Kilometer westlich von München. Die hervorragende Anbindung an das öffentliche Verkehrsnetz und die nahegelegene A8 ermöglichen eine schnelle und unkomplizierte Erreichbarkeit der Landeshauptstadt sowie anderer umliegender Städte.
Die Umgebung ist geprägt von weitläufigen Feldern, grünen Wiesen und malerischen Wäldern, die zu Spaziergängen und Outdoor-Aktivitäten einladen. Gleichzeitig bietet Althegnenberg eine ausgezeichnete Infrastruktur mit Schulen, Kindergärten, Einkaufsmöglichkeiten und medizinischen Einrichtungen, die den Alltag komfortabel gestalten.
Genießen Sie die Ruhe und Natur in Althegnenberg, während Sie gleichzeitig von der Nähe zu kulturellen und wirtschaftlichen Zentren profitieren. Diese Lage vereint das Beste aus beiden Welten und macht sie zu einem idealen Ort für Familien, Paare und Einzelpersonen, die eine hohe Lebensqualität schätzen.
Sonstige Angaben
In einer Videokonferenz beantworten wir Fragen und Sie erhalten einen ersten Eindruck über weitere Bilder & einen 360Grad Rundgang zur Umgebung. Wir haben die Bauvorhaben durchkakuliert und können Ihnen die dazugehörige Planung vorstellen. Vor Ort sind Besichtigungen, nach Vereinbarung, ebenfalls möglich.
Wir freuen uns Sie kennenzulernen!
............und vielleicht haben wir ja noch einige Ideen für Ihre zukünftige
erfolgreiche Lebensplanung. Lassen Sie uns mal reden