Einfamilienhaus:
- Baujahr 1956
- Vollgeschoss, ausgebautes Dachgeschoss, vollunterkellert
- Ursprüngliche Nutzung: familiengeführtes Milchgeschäft im Erdgeschoss
- Zustand: modernisierungsbedürftig
- Potenzial: umfassende Sanierung oder Neuinterpretation der Bestandsfläche
Mehrfamilienhaus:
- Baujahr 1965
- Westlich angrenzend an das Einfamilienhaus
- Anzahl Wohnungen: 5
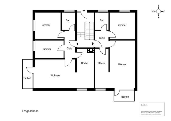
- Hochparterre: Wohnung ca. 50 m², Wohnung ca. 62 m²
- Obergeschoss: Wohnung ca. 50 m², Wohnung ca. 62 m² (frei lieferbar)
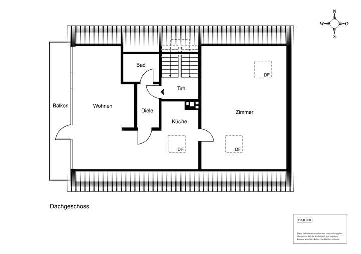
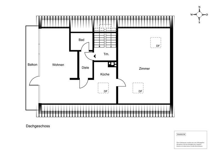
- Dachgeschoss: Wohnung ca. 78 m²
- Regelmäßig modernisiert
- Jahresnettokaltmiete bei Vollvermietung: EUR 39.445,56
- Mietsteigerungspotenzial vorhanden
- Drei Einzelgaragen seitlich des Gebäudes (davon zwei vermietet)
Entwicklungsobjekt mit vielseitigem Nutzungspotenzial in gefragter Lage!
22609 Hamburg
Die vollständige Adresse der Immobilie erhalten Sie vom Anbieter.
Auf Karte anzeigen
Die vollständige Adresse der Immobilie erhalten Sie vom Anbieter.
Finanzierungszertifikat
In nur zwei Minuten zu Ihrem persönlichen Finanzierungszertifkat.
Infos
| Haustyp | Mehrfamilienhaus |
|---|---|
| Wohnfläche ca. | 400 m2 |
| Grundstücksfläche | 814 m2 |
| Zimmer | 17,5 |
Kosten
| Kaufpreis |
1.695.000 € |
|---|---|
| Provision |
6,25 % inkl. der gesetzl. MwSt. |
Finanzierungsrechner:
Kaufpreis:
600.000 €
Eigenkapital:
600.000 €
Monatliche Rate
0 €
Effektiver Jahreszins
0 %
Sollzinsbindung
10 Jahre
Bausubstanz & Energieausweis
| Baujahr | 1956 |
|---|---|
| Heizungsart | Zentralheizung |
| Wesentliche Energieträger | Öl |
Beschreibung des Objekts
Ausstattung
- Bebauungsplan: Nienstedten 11 / Osdorf 9
- Gebietsausweisung: WR Max II
- Aktuelle Bebauung: Ein Einfamilienhaus und ein Mehrfamilienhaus
Lage
- Vornehme und idyllische Wohnlage im Hamburger Westen
- Ideale Verbindung aus Ruhe, Natur und urbaner Nähe
- Kombination aus hanseatischer Gelassenheit, Natur und urbanem Komfort
- Geprägt von großzügigen Villen, gepflegten Gärten und altem, gewachsenem Baumbestand
- Ruhiges, exklusives Umfeld mit hoher Privatsphäre
- Hamburger Polo Club in fußläufiger Nähe
- Jenischpark, Botanischer Garten (Loki-Schmidt-Garten) und Elbufer mit Spazier- und Radwegen in unmittelbarer Umgebung
- Vielfältige Möglichkeiten für Erholung und Freizeit im Grünen
- Infrastruktur & Einkaufsmöglichkeiten
- Hochwertige Einkaufsmöglichkeiten in Nienstedten und Othmarschen
- Boutiquen, Feinkostläden und charmante Cafés in der Umgebung
- Elbe-Einkaufszentrum in wenigen Minuten erreichbar
- Jenisch-Gymnasium fußläufig erreichbar
- Gymnasium Hochrad, Christianeum und Internationale Schule Hamburg in wenigen Minuten erreichbar
- S-Bahn-Station Klein Flottbek fußläufig erreichbar
Grundriss
Erdgeschoss (Mehrfamilienhaus)
>
>
Obergeschoss (Mehrfamilienhau
>
>
Dachgeschoss (Mehrfamilienhau
>
>
Kellergeschoss (Mehrfamilienh
>
>
Adresse
22609 Hamburg
Interessante Orte
Preis- und Lageinformationen
Preistrend für Bestandsimmobilien in Osdorf