-Moderne Architektur und sehr gepflegter Zustand des Hauses in einer kleinen Eigentümergemeinschaft aus nur 5 Parteien
-Zwei Tiefgaragenstellplätze im Haus für je 35.000 EUR
-Malerischer, ruhiger Gemeinschaftsgarten mit eigenem Bootsanleger
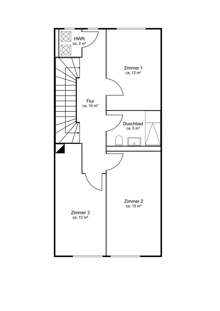
-Sechs helle, gut nutzbare Zimmer verteilen sich auf ca. 167 m² Wohnfläche
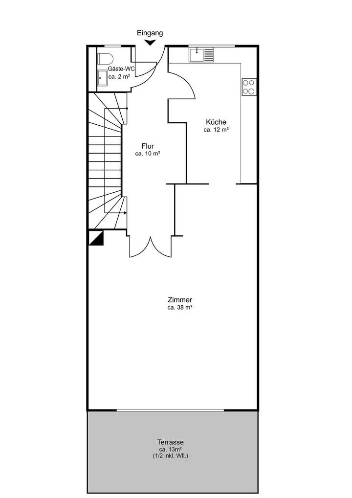
-Stilvoll gestalteter, ca. 38 m² großer Wohnbereich mit Kamin und Eichenparkett bietet Zugang zur Südwest-Terrasse
-Moderne Einbauküche der Marke Nolte mit umfangreicher Markenausstattung, direkt angrenzend zum Eingangsbereich des Hauses
-Vier Schlafzimmer möglich, diese lassen sich ideal
als Kinder-, Gäste- oder Arbeitszimmer nutzen
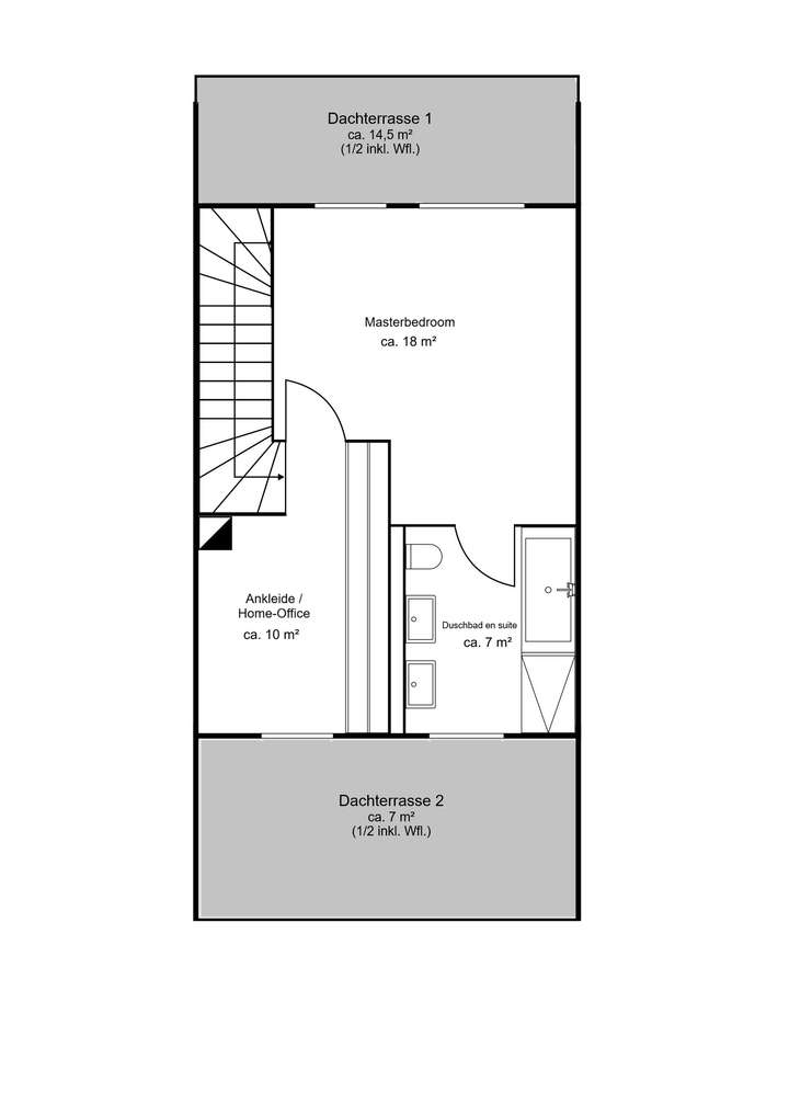
-Masterschlafbereich mit Bad en Suite, Ankleide und Zugang zu zwei großzügigen Dachterrassen im 2. OG
Haben wir Ihr Interesse geweckt?
Wir freuen uns auf Ihre Kontaktaufnahme.
Wichtig - bitte rufen Sie uns an oder teilen Sie uns Ihre Telefonnummer mit. Wir bitten um Ihr Verständnis, dass wir keine Exposés ohne ein vorheriges Gespräch versenden.
Ihr Engel & Völkers Team Hamburg Alster
Tel.: 040-471 00 50
E-Mail: Alster@engelvoelkers.com
Bildquelle: Henning Fix
Modernes Townhouse mit Dachterrassen & Wasserzugang!
22297 Hamburg
Die vollständige Adresse der Immobilie erhalten Sie vom Anbieter.
Auf Karte anzeigen
Die vollständige Adresse der Immobilie erhalten Sie vom Anbieter.
Finanzierungszertifikat
In nur zwei Minuten zu Ihrem persönlichen Finanzierungszertifkat.
Infos
| Haustyp | Reihenmittelhaus |
|---|---|
| Etagenzahl | 4 |
| Wohnfläche ca. | 167 m2 |
| Grundstücksfläche | 1.302 m2 |
| Zimmer | 6 |
| Schlafzimmer | 3 |
| Badezimmer | 3 |
| Garage/Stellplatz | Garage |
| Anzahl Garage/Stellplatz | 2 |
Kosten
| Kaufpreis |
1.650.000 € |
|---|---|
| Preis für Garage/Stellplatz | 35.000 € |
| Provision |
3.57 % inkl. gesetzl. MwSt. |
Finanzierungsrechner:
Kaufpreis:
600.000 €
Eigenkapital:
600.000 €
Monatliche Rate
0 €
Effektiver Jahreszins
0 %
Sollzinsbindung
10 Jahre
Bausubstanz & Energieausweis
| Baujahr | 2020 |
|---|---|
| Objektzustand | Neuwertig |
| Heizungsart | Zentralheizung |
| Wesentliche Energieträger | Gas |
| Energieausweis | liegt vor |
| Energieausweistyp | Bedarfsausweis |
| Energieverbrauchskennwert | 30,1 kWh/(m²*a) |
| Energieeffizienzklasse | A |
30,1
kWh/(m²*a)
Energieeffizienzklasse A
- A+
- A
- B
- C
- D
- E
- F
- G
- H
- 0
- 25
- 50
- 75
- 100
- 125
- 150
- 175
- 200
- 225
- >250
Beschreibung des Objekts
Ausstattung
Parkett
Fußbodenheizung
Kamin
Lage
Das Stadthaus liegt idyllisch am Alsterlauf im begehrten Stadtteil Hamburg-Alsterdorf. Diese exklusive Wohngegend besticht durch ihre ruhige Atmosphäre und die hochwertige Bebauung mit eleganten Villen und stilvollen Mehrfamilienhäusern auf großzügigen Grundstücken. Die zentrale Lage zwischen Innenstadt und Flughafen sorgt für eine optimale Anbindung: Die Hamburger City ist mit dem Auto oder der U-Bahn schnell erreichbar, und der Flughafen "Hamburg Airport" liegt nur wenige Fahrminuten entfernt. Familien profitieren von der Nähe zu Schulen und Kindergärten. Die Straße selbst ist eine ruhige Anliegerstraße, die ein idyllisches und familiäres Wohngefühl vermittelt. Hier verbindet sich urbanes Leben mit naturnahem Wohnen in einer der schönsten Wohnlagen Hamburgs.
Sonstige Angaben
Sie sind selbst Eigentümer und möchten erfahren, wie sich der Wert Ihrer eigenen Immobilie entwickelt hat? Gerne erstellen wir für Sie eine professionelle Marktbewertung und unterstützen Sie kompetent und zuverlässig beim erfolgreichen Verkauf Ihrer Immobilie. Für weitere Informationen wenden Sie sich bitte an das Engel & Völkers Büro am Eppendorfer Baum 11 in 20249 Hamburg-Harvestehude oder rufen Sie uns an unter 040 – 47 100 511.
Die Courtage in Höhe von 3,57 % inkl. 19 % MwSt. auf den Kaufpreis ist mit dem Zustandekommen des Kaufvertrages (notarieller Vertragsabschluss) verdient und fällig. Käufer und Verkäufer schulden die Courtage aufgrund separater Vereinbarungen in Textform in gleicher Höhe. Die Vermittelnden und/oder Nachweisenden, E+V Hamburg Immobilien GmbH (Lizenznehmer der Engel & Völkers Residential GmbH) und ggf. deren Beauftragter, erhalten einen unmittelbaren Zahlungsanspruch gegenüber dem Käufer und dem Verkäufer.
Grundriss
Grundriss EG
>
>
Grundriss 1. OG
>
>
Grundriss 2. OG
>
>
Adresse
22297 Hamburg
Interessante Orte
Preis- und Lageinformationen
Preistrend für Bestandsimmobilien in Alsterdorf