Diese ansprechende Doppelhaushälfte in ruhiger Lage von Wandlitz Schönwalde verfügt über insgesamt vier Zimmer und bietet eine großzügige Wohnfläche von ca. 114,65 m² zuzüglich einer überdachten Terrasse, die nicht in der Wohnflächenberechnung enthalten ist. Das durchdachte Raumkonzept, kombiniert mit der idyllischen Gartenlage, macht diese Immobilie zu einem idealen Zuhause für Paare, kleine Familien oder anspruchsvolle Individualisten.
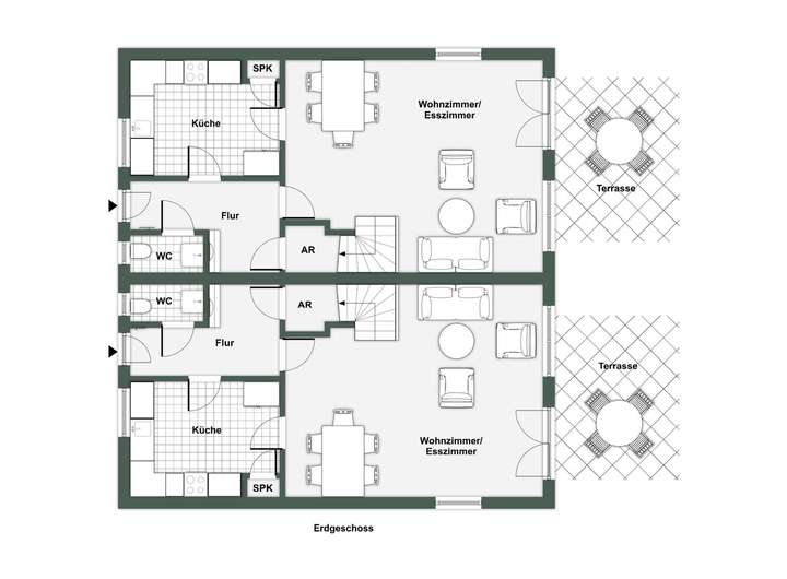
Beim Betreten des Hauses empfängt Sie ein gut geschnittener Eingangsbereich mit direktem Zugang zum Gästebadezimmer. Das Erdgeschoss besticht zudem durch einen sehr großzügigen Wohnbereich mit integriertem Essbereich und offener Küche. Eine großflächige verglaste Flügeltür führt direkt auf die Terrasse und eröffnet einen wunderschönen Blick in den Garten. Gleichzeitig sorgt sie für eine besonders helle und freundliche Wohnatmosphäre.
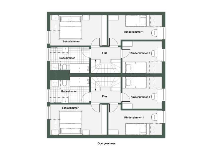
Über den Wohnbereich gelangen Sie in das erste Obergeschoss. Hier erwartet Sie ein modern gestaltetes Badezimmer mit ausreichend Platz. Zudem befinden sich auf dieser Ebene ein Schlafzimmer sowie ein weiteres Zimmer, das flexibel als Kinder Gäste oder Hobbyraum genutzt werden kann. Das Schlafzimmer bietet einen herrlichen Blick in den Garten, welcher für eine verbesserte Wohnqualität sorgt.
Im Dachgeschoss steht Ihnen ein weiteres Zimmer zur Verfügung, das sich ideal als Homeoffice Gästezimmer oder Rückzugsort eignet. Trotz der Dachschrägen überzeugt dieser Raum durch eine beeindruckende Deckenhöhe und ein angenehmes Raumgefühl.
Die Doppelhaushälfte befindet sich in einer gepflegten Doppelhaussiedlung mit einheitlicher Architektur. Ein besonderes Alleinstellungsmerkmal dieses Hauses sind jedoch die zwei Carports, die aufgrund der bevorzugten Lage zur Verfügung stehen und einen klaren Vorteil gegenüber den übrigen Häusern der Siedlung bieten.
Das Grundstück umfasst ca. 361 m² und wird durch zusätzliche ca. 23 m² Nutzfläche ergänzt. Der liebevoll angelegte Garten bietet durch geschickt platzierte Bepflanzung eine hohe Privatsphäre und gleichzeitig ausreichend Raum für individuelle Gestaltungsideen.
Zwischen Vogelgesang und Sonnenlicht – Doppelhaushälfte mit besonderer Atmosphäre
16348 Wandlitz
Die vollständige Adresse der Immobilie erhalten Sie vom Anbieter.
Auf Karte anzeigen
Die vollständige Adresse der Immobilie erhalten Sie vom Anbieter.
Finanzierungszertifikat
In nur zwei Minuten zu Ihrem persönlichen Finanzierungszertifkat.
Infos
| Haustyp | Doppelhaushaelfte |
|---|---|
| Etagenzahl | 3 |
| Wohnfläche ca. | 114 m2 |
| Nutzfläche | 23 m2 |
| Grundstücksfläche | 361 m2 |
| Bezugsfrei ab | sofort |
| Zimmer | 4 |
| Badezimmer | 2 |
| Garage/Stellplatz | Carport |
| Anzahl Garage/Stellplatz | 2 |
Kosten
| Kaufpreis |
469.000 € |
|---|---|
| Provision |
3,57 % inkl. der gesetzl. MwSt. von 19 % des Kaufpreises |
Finanzierungsrechner:
Kaufpreis:
600.000 €
Eigenkapital:
600.000 €
Monatliche Rate
0 €
Effektiver Jahreszins
0 %
Sollzinsbindung
10 Jahre
Bausubstanz & Energieausweis
| Baujahr | 2000 |
|---|---|
| Objektzustand | Gepflegt |
| Qualität der Austattung | Normal |
| Heizungsart | Gas-Heizung |
| Wesentliche Energieträger | Gas |
| Energieausweis | liegt vor |
| Energieausweistyp | Verbrauchsausweis |
| Energieverbrauchskennwert | 98,4 kWh/(m²*a) |
| Energieeffizienzklasse | C |
98,4
kWh/(m²*a)
Energieeffizienzklasse C
- A+
- A
- B
- C
- D
- E
- F
- G
- H
- 0
- 25
- 50
- 75
- 100
- 125
- 150
- 175
- 200
- 225
- >250
Beschreibung des Objekts
Ausstattung
ERDGESCHOSS:
- Gästebadezimmer
- Wohn und Essbereich
- offene Küche
- kleine Abstellkammer
OBERGESCHOSS:
- modernes großzügiges Badezimmer
- Schlafzimmer
- ein weiteres Zimmer
DACHGESCHOSS:
- ein weiteres Zimmer, ideal für Homeoffice
- kleiner Heizungsraum
- kleiner Abstellraum
WEITERE HIGHLIGHTS:
- 2 Carpots
- 2 Gartenschuppen
Lage
Die Doppelhaushälfte befindet sich in einer ruhigen und gepflegten Doppelhaussiedlung in Wandlitz Schönwalde. Die Siedlung zeichnet sich durch ein einheitliches und harmonisches Erscheinungsbild aus, da alle Häuser in gleicher Architektur errichtet wurden. Dadurch entsteht ein besonders ruhiges und familienfreundliches Wohnumfeld.
Ein besonderes Highlight dieser Lage ist der direkt gegenüberliegende Wald, der ideale Voraussetzungen für ausgedehnte Spaziergänge, sportliche Aktivitäten im Grünen oder entspannte Stunden in der Natur bietet. Ob mit der Familie, beim Joggen oder gemeinsam mit dem Hund, hier beginnt die Erholung direkt vor der Haustür.
Wandlitz Schönwalde bietet eine sehr gute Infrastruktur für den täglichen Bedarf. Einkaufsmöglichkeiten, Supermärkte, Bäckereien sowie weitere Geschäfte des täglichen Bedarfs sind in kurzer Zeit erreichbar. Ebenso befinden sich Schulen, Kindertagesstätten sowie Arztpraxen und Apotheken in der näheren Umgebung und sorgen für eine zuverlässige Versorgung im Alltag.
Darüber hinaus überzeugt die Lage durch ein vielseitiges Freizeitangebot. Die umliegenden Seen der Wandlitzer Seenplatte laden zu Badeausflügen, Spaziergängen am Wasser und verschiedenen Wassersportaktivitäten ein. Zudem stehen zahlreiche Rad und Wanderwege, Sportvereine, Spielplätze sowie gastronomische Angebote zur Verfügung.
Ein weiterer großer Vorteil ist die sehr gute Anbindung an Berlin. Der Bezirk Berlin Pankow ist je nach Verkehrslage in etwa 20 Minuten erreichbar. Dadurch verbindet diese Lage naturnahes Wohnen mit der Nähe zur Hauptstadt auf besonders attraktive Weise.
Sonstige Angaben
Unsere Angebote sind freibleibend und unverbindlich. Die Angaben basieren auf Aussagen des Verkäufers. Irrtum sowie Zwischenverkauf bleiben ausdrücklich vorbehalten. Der Makler-Vertrag mit uns und/oder unserem Beauftragten kommt durch schriftliche Vereinbarung oder durch die Inanspruchnahme unserer Maklertätigkeit auf der Basis des Objekt-Exposés und seiner Bedingungen zustande. Die Käufercourtage in Höhe von 3,57% auf den Kaufpreis, einschließlich gesetzlicher Mehrwertsteuer, ist mit wirksamen notariellem Kaufvertrag verdient und fällig. Wir bitten um Verständnis, dass wir Detailinformationen nur liefern, sofern Sie uns Ihre kompletten Adress- und Kontaktdaten übermittelt haben. Weitere interessante Objekte finden Sie auf unserer Firmenhomepage: www.kensington-berlin.com sowie auf www.kensington-international.com Eigentümern bieten wir eine kostenlose Einwertung Ihrer Immobilie an.
Adresse
16348 Wandlitz
Interessante Orte
Preis- und Lageinformationen
Preistrend für Bestandsimmobilien in Wandlitz