Heimkommen und wohlfühlen steht hier an erster Stelle.
Dieses gepflegte Zweifamilienhaus befindet sich in einer beliebten Siedlungslage von Ilshofen. Das Wohnhaus kann auch ohne große Veränderungen als Einfamilienhaus genutzt werden.
Das Gebäude wurde 2002 in massiver Bauweise errichtet und verfügt über eine Gesamtwohnfläche von ca. 164 m² sowie über eine Grundstücksfläche von 548 m².
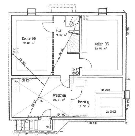
Das Gebäude ist komplett unterkellert und bietet damit neben viel Stauraum auch Platz für ein großes Hobbyzimmer/HomeGym, eine Sauna mit Dusche und Toilette sowie einen Waschraum. Die Gas-Zentralheizung ist ebenfalls im Kellergeschoss untergebracht.
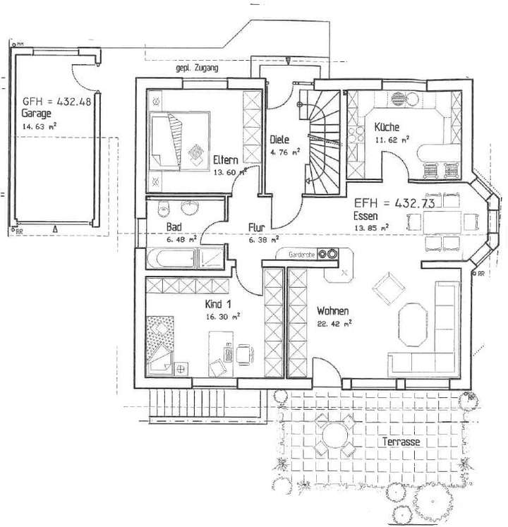
Im Erdgeschoss befindet sich das großzügige, helle Wohn- und Esszimmer mit gemütlichem Kachelofen und Zugang zur sonnigen Terrasse. Die voll ausgestattete Küche ist im Preis inkludiert. Zwei Schlafzimmer und ein Bad mit Dusche, Wanne sowie Toilette runden das Erdgeschoss ab.
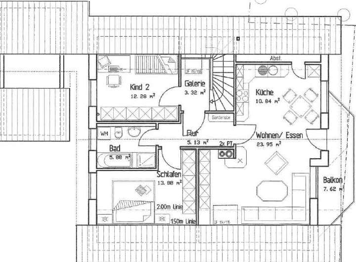
Im Obergeschoss ist der Grundriss vergleichbar. Statt einer Terrasse verfügt das Wohnzimmer über einen süd-ost Balkon mit schöner Aussicht.
Eine Garage, ein Gartenhaus sowie eine neuwertige Pergola sind zusätzlich vorhanden. Ein schön angelegter Garten lädt zum leben und genießen im Freien ein.
Sehr gepflegtes Wohnhaus in schöner Siedlungslage
74532 Ilshofen
Die vollständige Adresse der Immobilie erhalten Sie vom Anbieter.
Auf Karte anzeigen
Die vollständige Adresse der Immobilie erhalten Sie vom Anbieter.
Finanzierungszertifikat
In nur zwei Minuten zu Ihrem persönlichen Finanzierungszertifkat.
Infos
| Haustyp | Mehrfamilienhaus |
|---|---|
| Wohnfläche ca. | 163 m2 |
| Grundstücksfläche | 548 m2 |
| Zimmer | 6 |
| Schlafzimmer | 4 |
| Badezimmer | 2 |
Kosten
| Kaufpreis |
575.000 € |
|---|---|
| Provision |
3,57 % inkl. ges. MwSt. vom Kaufpreis. Die Provision ist verdient und wird fällig mit notarieller Beurkundung. Die Sparkasse hat einen provisionspflichtigen Maklervertrag in gleicher Höhe mit dem Verkäufer abgeschlossen. |
Finanzierungsrechner:
Kaufpreis:
600.000 €
Eigenkapital:
600.000 €
Monatliche Rate
0 €
Effektiver Jahreszins
0 %
Sollzinsbindung
10 Jahre
Bausubstanz & Energieausweis
| Baujahr | 2002 |
|---|---|
| Letzte Sanierung | 2020 |
| Bauphase | Haus fertig gestellt |
| Objektzustand | Gepflegt |
| Qualität der Austattung | Normal |
| Heizungsart | Zentralheizung |
| Wesentliche Energieträger | Gas |
| Energieausweis | liegt vor |
| Energieausweistyp | Verbrauchsausweis |
| Energieverbrauchskennwert | 75,9 kWh/(m²*a) |
| Energieeffizienzklasse | C |
75,9
kWh/(m²*a)
Energieeffizienzklasse C
- A+
- A
- B
- C
- D
- E
- F
- G
- H
- 0
- 25
- 50
- 75
- 100
- 125
- 150
- 175
- 200
- 225
- >250
Beschreibung des Objekts
Ausstattung
Individuelle Ausstattungsmerkmale:
- Einbauküche
- Kachelofen
- attraktive Lage
Lage
Sie wohnen in der herrlichen Landschaft Hohenlohes zwischen den Städten Schwäbisch Hall und Crailsheim. Die Stadt Ilshofen verfügt über eine sehr gute Infrastruktur und viele interessante Arbeitsplätze. Sie finden verschiedene Einkaufsmöglichkeiten sowie medizinische Versorgung und Apotheke, Schulen und Kindergärten direkt am Ort. Eine Vielzahl an Vereinen bieten Ihnen attraktive Freizeitangebote. Rund um Ilshofen können Sie in toller Landschaft wandern und ausgedehnte Touren mit dem Rad genießen. Gute Busverbindungen, ein wichtiger Bahnhof in Eckartshausen sowie zwei Autobahnanschlüsse zur A6 machen Ilshofen auch für Pendler hochattraktiv.
Grundriss
Erdgeschoss
>
>
Obergeschoss
>
>
Untergeschoss
>
>
Adresse
74532 Ilshofen
Interessante Orte
Preis- und Lageinformationen
Preistrend für Bestandsimmobilien in Ilshofen