sofort bebaubar - Baugenehmigung vom Sept. 2025 liegt vor (Freisteller Bebauungsplan Nr. 71).
Optimale Nutzung des südorientierten Grundstücks durch individuell geplante Doppelhaushälfte für 2 eigenständige Wohneinheiten als Energieeffizienzhaus 55
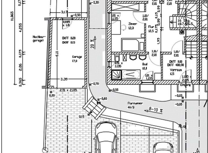
Garage unterkellert.
Wohneinheit 1 (zwei untere Stockwerke): 139 m² Wohnfläche mit Südgarten
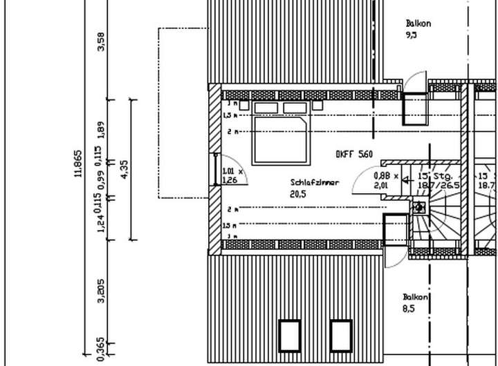
Wohneinheit 2 (zwei obere Stockwerke): 89 m² Wohnfläche
Baugrundstück 486 m² - voll erschlossen an öff. Straße mit Wasser/Kanal/Strom/T-com
Baugrundgutachten, Entwurfsstatik und Bewehrungspläne liegen bereits vor
Denkmalschutzrechtliche Erlaubnis liegt vor
Die Planunterlagen für die Baugenehmigung, Grundstücksgröße, Wohnflächen etc. liegen digital vor und können im weiteren Verlauf eingesehen werden
Ich verkaufe ausschließlich privat und wünsche keine Maklerangebote. Sämtliche Bilder in diesem Exposé sind urheberrechtlich geschützt und dürfen nicht durch Dritte verwendet bzw. weitergegeben werden.
provisionsfrei von Privat: Grundstück im Dorfkern Eisenhofen für DHH mit zwei Wohneinheiten
Untere Dorfstraße 2b,
85253 Erdweg
Auf Karte anzeigen
Finanzierungszertifikat
In nur zwei Minuten zu Ihrem persönlichen Finanzierungszertifkat.
Infos
| Vermarktungsart | Kaufen |
|---|---|
| Grundstücksfläche | 486 m2 |
| Erschließung | Erschlossen |
| Verfügbar ab | nach Absprache |
Kosten
| Miete pro Jahr |
450.000 € |
|---|---|
| Provision | Nein |
Finanzierungsrechner:
Kaufpreis:
600.000 €
Eigenkapital:
600.000 €
Monatliche Rate
0 €
Effektiver Jahreszins
0 %
Sollzinsbindung
10 Jahre
Beschreibung des Objekts
Lage
Eisenhofen mit rund 900 Einwohnern liegt im schönen Glonntal, mitten im ruhigen Hügelland zwischen Dachau und Altomünster, nordwestlich von München. Der S-Bahnhof Erdweg (S2) befindet sich in 950 m Entfernung und bietet eine direkte Zugverbindung nach München im 30-Minuten-Takt. Der Anschlusspunkt an die A8 Sulzemoos ist rund 11 km entfernt.
Zum Erholen laden in Eisenhofen die vielen Wander- und Radwege ein. Durch den anhaltenden Zuzug in die Metropolregion München wird die Infrastruktur ständig weiterentwickelt, wie z.B. die Betreuung für Kinder, Freizeit- und Sportangebote und Einkaufsmöglichkeiten.
Die weiterführenden Schulen wie Realschule, Gymnasium und FOS befinden sich in Markt Indersdorf, nur 2 S-Bahnstationen entfernt. Die Grund- und Mittelschule, ein EDEKA-Markt, Apotheke, Rathaus, Gaststätten, Sportverein, Fitness-Center etc. befinden sich gut einen Kilometer entfernt im Hauptort Erdweg.
Infrastruktur (im Umkreis von 5 km):
Apotheke, Lebensmittel-Discount, Allgemeinmediziner, Kindergarten, Grundschule, Hauptschule, Öffentliche Verkehrsmittel
Sonstige Angaben
Makleranfragen nicht erwünscht. Nach § 7 UWG sind unaufgeforderte Kontaktaufnahmen durch Makler ohne ausdrückliche Einwilligung des Empfängers verboten!
ohne-makler (OM) ist weder Anbieter noch Vermittler der Immobilie. OM betreibt eine Plattform für Immobilieneigentümer, die unter anderem die gleichzeitige Veröffentlichung einzelner Inserate auf mehreren Immobilienportalen ermöglicht. Die Inhalte dieser Inserate werden ausschließlich von Dritten verantwortet. Für die Richtigkeit, Vollständigkeit oder Rechtmäßigkeit der Angaben übernimmt OM keine Haftung. Hinweise auf mögliche Rechtsverstöße können jederzeit gemeldet werden und werden nach Prüfung umgehend bearbeitet.