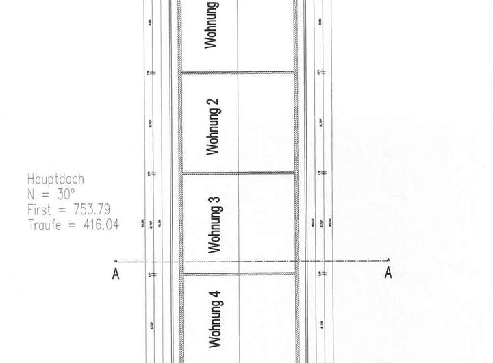
Diese wunderbare für Projektierungen geeignete Fläche befindet sich auf einem circa 5284 m² großen Grundstück. Früher standen in Straßennähe zwei Einfamilienhäuser – eines mit einem Nebengebäude, siehe Bild „Projektierungsmöglichkeit“. In der hinteren Hälfte des Grundstückes befindet sich ein 45 m langer und 10,50 m breiter Kuhstall, an dessen hinteren rechten Seite ein Schuppen angebaut ist. Der 1975 erstellte Kuhstall könnte sich durch einen Umbau unter Nutzung der bestehenden Grundmauern und einer Aufstockung des Dachstuhls in ein Reihenhaus-Ensemble, bestehend aus zwei Reihenendhäusern und drei Reihenmittelhäusern mit jeweils ca. 125 m² Wohnfläche entwickeln. Die vorhandene Bausubstanz macht einen soliden Eindruck.
Die angesetzte Scheune könnte gegebenenfalls als Heizungs- und/ oder Lagerraum dienen. Eine Bauvoranfrage war geplant, ist aber aufgrund des Verkaufes nicht umgesetzt worden. Möglicherweise sind an der Straße wieder zwei (oder mehr) Einfamilienhäuser zu erbauen - so, wie es die inzwischen abgerissenen Gebäude mit den Hausnummern 40 und 42 bereits in der Vergangenheit darstellten-siehe Bild „Projektierungsmöglichkeit“ .
Investoren aufgepasst: Grundstück mit Potenzial für ca. 5 Reihenhäuser und ggf. 2 EFH
24358 Ascheffel
Die vollständige Adresse der Immobilie erhalten Sie vom Anbieter.
Auf Karte anzeigen
Die vollständige Adresse der Immobilie erhalten Sie vom Anbieter.
Finanzierungszertifikat
In nur zwei Minuten zu Ihrem persönlichen Finanzierungszertifkat.
Infos
| Vermarktungsart | Kaufen |
|---|---|
| Grundstücksfläche | 5.284 m2 |
| Bebaubar nach | wie Nachbarbebauung |
| Verfügbar ab | sofort |
Kosten
| Miete pro Jahr |
400.000 € |
|---|---|
| Provision |
3,57 % inkl. der gesetzl. MwSt. Die Firma Sven Arndt Immobilien hat einen provisionspflichtigen Maklervertrag mit dem Verkäufer in gleicher Höhe abgeschlossen (§ 656 a-d BGB). |
Finanzierungsrechner:
Kaufpreis:
600.000 €
Eigenkapital:
600.000 €
Monatliche Rate
0 €
Effektiver Jahreszins
0 %
Sollzinsbindung
10 Jahre
Beschreibung des Objekts
Lage
Das Grundstück in der Dorfstraße 40/42 am Ortsausgang von Ascheffel liegt in einer ruhigen und naturnahen Umgebung im Herzen Schleswig-Holsteins.
Die Lage am Ortsrand kombiniert Ruhe, Naturnähe und eine attraktive, unverbaubare Aussicht mit einer zugleich alltagsfreundlichen Infrastruktur – ein überzeugender Standort für modernes Wohnen in ländlicher Umgebung mit guter Erreichbarkeit des Ortskerns.
Ascheffel ist geprägt von einer gewachsenen Dorfstruktur, gepflegten Wohnhäusern und einer aufgeschlossenen Nachbarschaft. Alle Einrichtungen des täglichen Bedarfs – darunter Einkaufsmöglichkeiten, Kindergarten, Grundschule sowie gastronomische Angebote – sind im nahen Umfeld vorhanden. Die Verkehrsanbindung an die umliegenden Gemeinden sowie an die Städte Rendsburg, Schleswig und Eckernförde ist gut ausgebaut.
Besonders hervorzuheben ist die unverbaubare Aussicht auf den Naturpark Hüttener Berge. Dieser landschaftlich reizvolle Höhenzug bietet ein attraktives Panorama direkt vom Grundstück aus und schafft einen außergewöhnlich hohen Erholungswert. Spazier- und Radwege beginnen quasi vor der Haustür und ermöglichen einen schnellen Zugang zur Natur.
Sollte Interesse an weiterem Umland mit möglichem Potenzial bestehen, so gäbe es hierfür Optionen und Sie können mich gerne hierzu ansprechen.
Sonstige Angaben
Es gelten die allgemeinen Geschäftsbedingungen der Firma Sven Arndt Immobilien. Die Käufer-Provision ist verdient und fällig mit Beurkundung des notariellen Kaufvertrages. Alle Angaben in diesem Exposé sind ohne Gewähr und basieren ausschließlich auf Informationen, die uns von unserem Auftraggeber übermittelt wurden. Wir übernehmen keine Gewähr für die Vollständigkeit, Richtigkeit und Aktualität dieser Angaben. Weitere interessante und sehenswerte Angebote finden Sie auf unserer Homepage www.sven-arndt-immobilien.com.