Mehrere Einfamilienhäuser preiswert abzugeben. Mietkauf möglich. Altschulden kein Hindernis. Kein Eigenkapital erforderlich.
Einfamilienhaus 140m²
59955 Winterberg
Die vollständige Adresse der Immobilie erhalten Sie vom Anbieter.
Auf Karte anzeigen
Die vollständige Adresse der Immobilie erhalten Sie vom Anbieter.
Infos
| Haustyp | Einfamilienhaus |
|---|---|
| Wohnfläche ca. | 140 m2 |
| Nutzfläche | 0 m2 |
| Grundstücksfläche | 760 m2 |
| Zimmer | 4 |
| Schlafzimmer | 3 |
| Badezimmer | 1 |
| Anzahl Garage/Stellplatz | 0 |
Kosten
| Kaltmiete |
1.100 € |
|---|---|
| Nebenkosten | keine Angabe |
| Heizkosten | keine Angabe |
| Gesamtmiete | 1.100 € |
Weiter mieten oder doch kaufen?
Wer in Miete wohnt, überweist dem Vermieter im Laufe der Jahre hohe Summen, die sich
auch in die eigenen vier Wände investieren lassen könnten.
Bausubstanz & Energieausweis
| Baujahr | 2026 |
|---|---|
| Qualität der Austattung | Gehoben |
| Heizungsart | Wärmepumpe |
Beschreibung des Objekts
Ausstattung
Jedes unserer Fertighäuser wird speziell für Sie geplant und ist perfekt auf die Anforderungen und Vorgaben Ihres Bauvorhabens angepasst – Bebauungspläne, eine besondere Grundstückslage und die gewünschten Eigenleistungen werden im Detail geprüft und berücksichtigt.
Jedes Schwabenhaus verfügt standardmäßig über:
- Fussbodenheizung
- Luft-Wasser-Wärme-Pumpe
- 3-Scheiben-Wärmeschutzglas
- elektrische Rollladensteuerung*
- Schwimmender Estrich mit Wärmedämmung
- 5 Jahre Gewährleistung nach BGB und 30 Jahre Garantie auf die Grundkonstruktion
Ihre Eigenleistung:
- Malern
- Bodenbeläge in Schlaf- und Wohnräumen
- Fliesen
- Inntüren
- Sanitär-Objekte montieren
Lage
Winterberg verfügt über ein gut ausgebautes öffentliches
Verkehrsnetz, das es einfach macht, sich in der Region zu bewegen.
Mit regelmäßigen Busverbindungen erreichen Sie problemlos die
umliegenden Orte und Sehenswürdigkeiten.
Sonstige Angaben
- Miet-Kauf möglich.
- Bonität vorausgesetzt.
- Ohne Einsatz von Eigenkapital möglich
- Altschulden, Verbindlichkeiten kein Hindernis.
Abbildungen können Extras beinhalten.
Ausgewiesener Preis exklusiv Erwerb und sonstigen Baunebenkosten
Bitte haben Sie Verständnis, das die Anfragen chronologisch bearbeitet werden und nur mit kompletten Kontaktdaten beantwortet werden Telefonnummer, Vor- und Zuname und E-Mail. Es handelt sich um ein reales Projekt.
Termine nur nach Vereinbarung in einem unserer regionalen Info-Center.
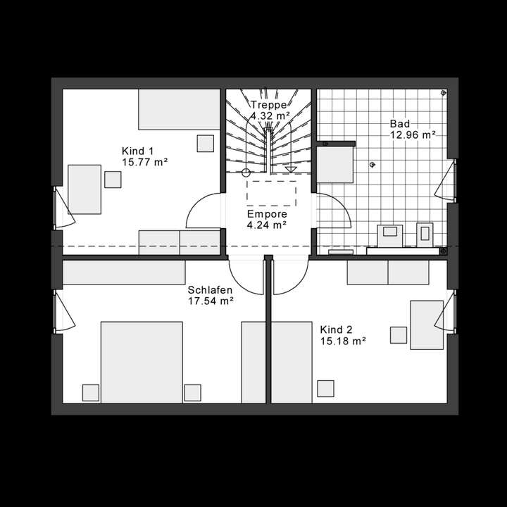
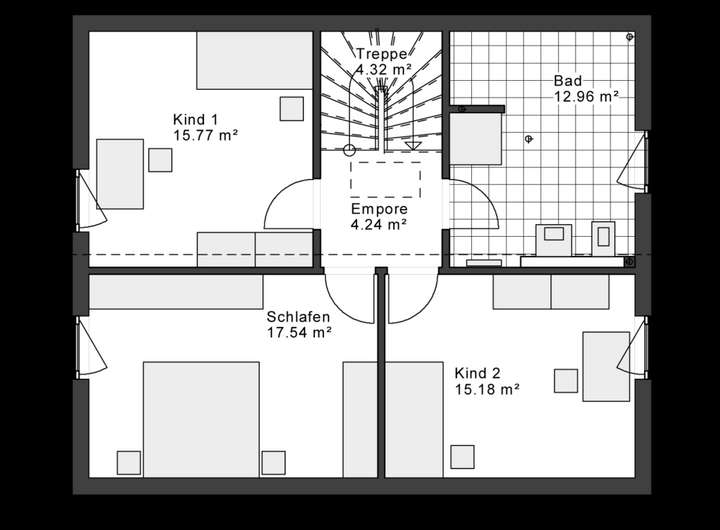
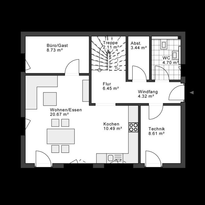
Grundriss
Grundriss EG
>
>
Grundriss OG
>
>
Adresse
59955 Winterberg
Interessante Orte
Preis- und Lageinformationen
Preistrend für Bestandsimmobilien in Winterberg