Anzeige mit Infos zu Kosten bitte genau lesen!!!!
Vermittlung eines Bauvorhabens und Erbpacht Grundstück - mehr Infos im ausführlichen Exposé
Eine mögliche Variante für Investoren:
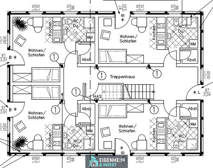
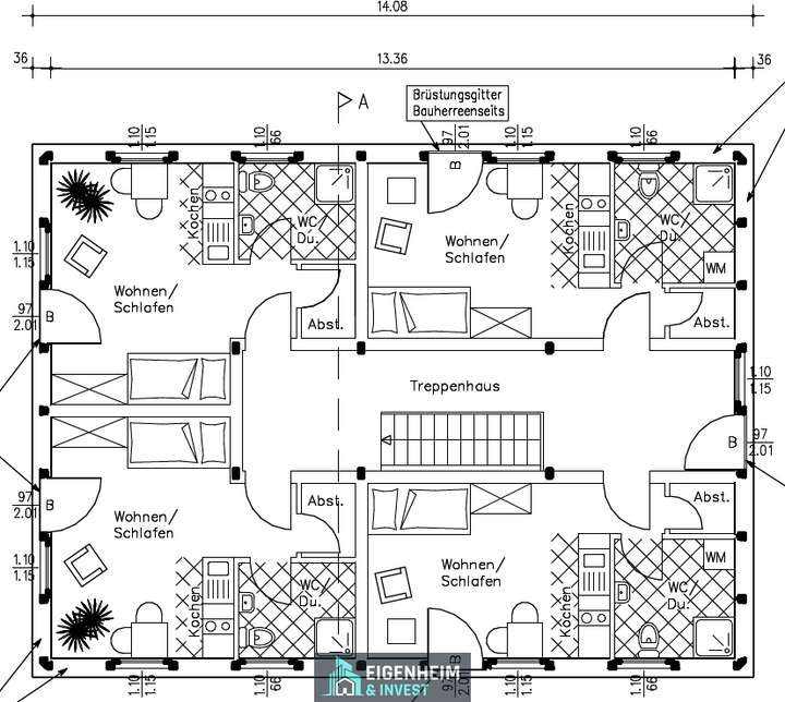
2 Vollgeschosse mit insgesamt 8 Wohneinheiten
jeweils 1 Zimmer Wohnungen a 22-24 qm und 40 qm Gartenanteil pro Wohnung vorgesehen
Denkbar als Monteur- oder Studentenwohnungen aber auch Seniorenwohnungen im EG durch die gegebene Barrierefreiheit
Kosten im Überblick (Konditionen bis 31.03.2026 gültig):
- Erbpachtvertrag für Grundstück 766 monatlich
- Ablösesumme für Baugenehmigung 10.000 - kann ggf. angepasst/verändert werden
- Schlüsselfertiges Haus inkl. Bodenplatte 520.000 EUR
Bei Vermietung ist eine Rendite bis zu 10% denkbar
Ihre Vorteile: erfahrene Baufirma, patentiertes Baukastensystem mit individueller Grundrissplanung, Niedrigenergiehaus in massiver Bauweise und höchster Baugüte, 35 Jahre Garantie, zeitnahe Fertigstellung
Das Bauvorhaben ist individuell planbar - der Innenausbau kann in Eigenleistung erfolgen, was die Kosten erheblich minimiert.
Weitere Infos + Pläne finden Sie im Exposé
Rendite bis zu 10% möglich · Individuell planbares Massivwohnhaus · Fertigstellung bis Ende 2026
13125 Berlin
Die vollständige Adresse der Immobilie erhalten Sie vom Anbieter.
Auf Karte anzeigen
Die vollständige Adresse der Immobilie erhalten Sie vom Anbieter.
Finanzierungszertifikat
In nur zwei Minuten zu Ihrem persönlichen Finanzierungszertifkat.
Infos
| Vermarktungsart | Kaufen |
|---|---|
| Grundstücksfläche | 628 m2 |
| Verfügbar ab | sofort |
Kosten
| Miete pro Jahr |
10.000 € |
|---|---|
| Provision |
3,57 % inkl. gesetzlicher MwSt. |
Finanzierungsrechner:
Kaufpreis:
600.000 €
Eigenkapital:
600.000 €
Monatliche Rate
0 €
Effektiver Jahreszins
0 %
Sollzinsbindung
10 Jahre
Beschreibung des Objekts
Lage
Das Bauvorhaben befindet sich im nördlichen Berliner Stadtteil Französisch Buchholz, der zum Bezirk Pankow gehört. Die Lage verbindet die Ruhe eines gewachsenen Wohngebiets mit der Nähe zur Berliner Innenstadt. Geprägt von Einfamilien- und Mehrfamilienhäusern sowie viel Grün, bietet die Umgebung ein angenehmes, familienfreundliches Wohnumfeld.
Die Infrastruktur ist sehr gut: Einkaufsmöglichkeiten für den täglichen Bedarf, Schulen, Kitas sowie medizinische Einrichtungen sind schnell erreichbar. Für Freizeit und Erholung laden Grünflächen, Parks und die nahe gelegenen Felder und Wiesen zu Spaziergängen oder sportlichen Aktivitäten ein.
Die Verkehrsanbindung ist ebenfalls attraktiv: Über die B109 sowie die A114 besteht eine schnelle Verbindung in die Berliner Innenstadt und ins Umland. Zudem sorgen Bus- und Straßenbahnlinien für eine gute Anbindung an den öffentlichen Nahverkehr.
Insgesamt bietet dieser Standort eine ideale Kombination aus ruhigem Wohnen im Grünen, familienfreundlicher Infrastruktur und urbaner Nähe, perfekt geeignet für ein modernes Mehrfamilienhausprojekt.
Sonstige Angaben
Weitere interessante Immobilien finden Sie unter www.eigenheim-invest.de
Suchprofil anlegen:
Sie haben die passende Immobilie noch nicht gefunden? Dann tragen Sie sich als Suchkunde bei uns ein und erhalten frühzeitig neue Immobilienangebote: www.eigenheim-invest.de/immobiliensuche
Für Immobilieneingentümer:
Sie möchten Ihre Immobilien verkaufen oder eine kostenlose Wertermittlung von einem Profi erhalten? Dann kontaktieren Sie uns direkt unter info@eigenheim-invest.de und vereinbaren Sie noch heute einen persönlichen Beratungstermin. Dieser Service ist für Sie völlig kostenfrei!
Grundriss
EG
>
>
OG
>
>