Warum weiter Miete zahlen, wenn der Weg ins Eigentum nur eine Entscheidung entfernt ist?
Unser flexibles Wohnmodell bietet dir die Chance, auch ohne Eigenkapital den Traum vom eigenen Zuhause zu verwirklichen.
Du bist unsicher, ob du die Voraussetzungen erfüllst?
- Wir prüfen gemeinsam, was möglich ist.
Du brauchst Orientierung bei Finanzierung und Ablauf?
- Wir begleiten dich Schritt für Schritt.
Du fragst dich, ob dieses Modell wirklich zu dir passt?
- Wir zeigen dir, wie es funktionieren kann..
Dein Weg ins Eigenheim beginnt heute – mit White&Black.
Mieten oder Eigentum? Hier beginnt Ihr Weg ins Eigenheim!
51702 Bergneustadt
Die vollständige Adresse der Immobilie erhalten Sie vom Anbieter.
Auf Karte anzeigen
Die vollständige Adresse der Immobilie erhalten Sie vom Anbieter.
Infos
| Haustyp | Einfamilienhaus |
|---|---|
| Wohnfläche ca. | 160 m2 |
| Nutzfläche | 0 m2 |
| Grundstücksfläche | 1.000 m2 |
| Zimmer | 5 |
| Schlafzimmer | 4 |
| Badezimmer | 1 |
| Anzahl Garage/Stellplatz | 0 |
Kosten
| Kaltmiete |
2.132 € |
|---|---|
| Nebenkosten | keine Angabe |
| Heizkosten | keine Angabe |
| Gesamtmiete | 2.132 € |
Weiter mieten oder doch kaufen?
Wer in Miete wohnt, überweist dem Vermieter im Laufe der Jahre hohe Summen, die sich
auch in die eigenen vier Wände investieren lassen könnten.
Bausubstanz & Energieausweis
| Baujahr | 2026 |
|---|---|
| Qualität der Austattung | Gehoben |
| Heizungsart | Wärmepumpe |
Beschreibung des Objekts
Ausstattung
THINK AHEAD – Fast Vollendet Plus
Rohbau, Dach, Fassade, Fenster & Türen – alles fix und fertig. Ihr Haus ist von außen komplett abgeschlossen und wettergeschützt.
Haustechnik vollständig installiert: Elektro, Heizung, Sanitär – fachgerecht verlegt, geprüft und betriebsbereit.
Zusätzlicher Komfort durch vorbereitete Innenflächen: Putz, Estrich und Trockenbau bereits erledigt – Sie starten im Innenausbau auf fertiger Basis.
Ausstattung nach Wunsch: Böden, Bäder, Türen und Oberflächen gestalten Sie selbst – mit maximaler Freiheit bei Stil und Umsetzung.
Sicherheit & Transparenz: Einheitliche Festpreise geben Ihnen volle Kostenkontrolle – ohne böse Überraschungen.
Fast Vollendet Plus ist der ideale Mix aus vorbereiteter Bauleistung und persönlicher Gestaltungsfreiheit – für alle, die mit Substanz starten und Raum für Individualität schätzen.
Lage
Hier wohnst du ruhig, ohne auf eine funktionierende Infrastruktur verzichten zu müssen. Alles, was du im Alltag brauchst, erreichst du in kurzer Distanz – vom Einkauf bis zur medizinischen Versorgung. Schulen und Kindertagesstätten sind gut angebunden und machen den Standort alltagstauglich. Über den öffentlichen Nahverkehr bleibst du flexibel unterwegs, auch über die Stadtgrenzen hinaus. Zusätzlich sorgen nahe Verkehrsverbindungen für entspannte Wege im täglichen Leben. In der Umgebung findest du Grünflächen und Freiräume zum Abschalten und Durchatmen. Das Wohnumfeld ist gewachsen und wirkt angenehm bodenständig. Gleichzeitig bietet der Standort Perspektive für modernes Wohnen mit Zukunft.
Sonstige Angaben
Hinweise & Terminvereinbarung
Bonität vorausgesetzt. Auch ohne Eigenkapital kann eine Umsetzung geprüft werden. Bestehende Verbindlichkeiten oder Altschulden stellen nicht zwingend ein Hindernis dar.
Der angegebene Preis versteht sich inkl. Grundstückskosten sowie zzgl. weiterer Baunebenkosten. Abbildungen, Grundrisse und Flächenangaben dienen der Veranschaulichung und können Sonderausstattungen wie Keller, Carport, Garage oder Anbauteile enthalten. Flächenangaben gemäß DIN 277. Alle Angaben ohne Gewähr.
💬 Fragen zum Ablauf, Haustypen oder den verfügbaren Grundstücken?
Schreiben Sie mir einfach bei WhatsApp +491785605352 – oder rufen Sie direkt an!
📞 Termine bitte ausschließlich telefonisch anfragen.
Im Gespräch klären wir gemeinsam Ihre Voraussetzungen, führen eine erste Bonitätsprüfung durch und besprechen die nächsten Schritte.
❗️Hinweis: Anfragen werden nach Eingangsdatum bearbeitet und nur bei vollständigen Kontaktdaten (Vor- und Nachname, Telefonnummer, E-Mail etc.) beantwortet.
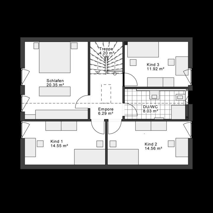
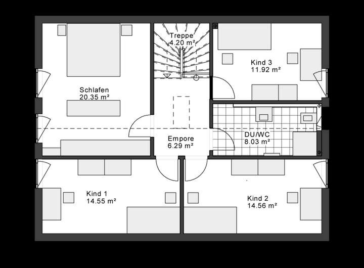
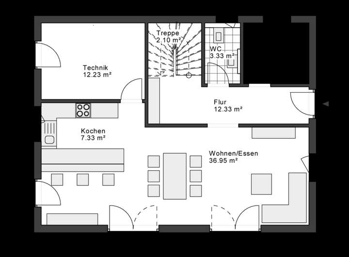
Grundriss
AWHITE&BLACK 160 | Concept
>
>
ERDGESCHOSS
>
>
OBERGESCHOSS
>
>
Adresse
51702 Bergneustadt
Interessante Orte
Preis- und Lageinformationen
Preistrend für Bestandsimmobilien in Bergneustadt