Dieses Haus gehört zu den seltenen Immobilien, die man betritt – und sofort spürt, dass sie etwas Besonderes sind. Schon beim Eintreten wird deutlich, dass hier mit viel Gespür für Stil, Qualität und Atmosphäre saniert und gestaltet wurde. Jede Fläche, jeder Raum wirkt durchdacht und trägt eine extravagante Handschrift.
Die umfassende Sanierung erfolgte vor einigen Jahren mit höchstem Anspruch an Material, Funktion und Design. Entstanden ist ein Zuhause, das Modernität mit Behaglichkeit verbindet – edel, aber nicht kühl; außergewöhnlich, aber immer wohnlich. Besonders eindrucksvoll zeigt sich das im Eingangsbereich, der mit seiner offenen Empore und der exklusiven Gestaltung ein einzigartiges Raumgefühl schafft.
Die Küche überzeugt durch wertige Materialien, durchdachte Details und eine klare Formsprache. Sie grenzt an den individuellen Wohn- und Essbereich und unterstreicht den modernen Charakter des Hauses – ein Ort, an dem Stil und Alltag mühelos zusammenfinden.
Im Hof setzt sich dieses Konzept fort: Dort befindet sich eine Outdoor-Küche mit Theke, ergänzt durch eine großzügige Terrasse mit Grillplatz. Ein Bereich, der in den wärmeren Monaten zum Mittelpunkt wird und Gourmet-Herzen höherschlagen lässt – echter Komfort und durchdachter Luxus im Außenbereich.
Zum Haus gehört außerdem ein Nebengebäude mit kleiner Werkstatt, Motorrad-Garage und Abstellraum. Ein Carport für zwei Fahrzeuge ergänzt das Ensemble.
Das gesamte Anwesen präsentiert sich in einem gepflegten, nahezu neuwertigen Zustand. Ein Teil der Möbel wird auf Wunsch im Haus verbleiben und kann übernommen werden – eine perfekte Ergänzung zum individuellen Stil des Gebäudes.
Dieses Wohnhaus ist mehr als nur eine Immobilie – es ist ein Statement. Ein Ort für Menschen, die das Besondere suchen, Wert auf ästhetische Klarheit legen und zugleich ein Zuhause wünschen, das sich jeden Tag neu entdecken lässt.
***Schöner Wohnen in stilvollem Ambiente***
56357 Strüth
Die vollständige Adresse der Immobilie erhalten Sie vom Anbieter.
Auf Karte anzeigen
Die vollständige Adresse der Immobilie erhalten Sie vom Anbieter.
Finanzierungszertifikat
In nur zwei Minuten zu Ihrem persönlichen Finanzierungszertifkat.
Infos
| Haustyp | Einfamilienhaus |
|---|---|
| Wohnfläche ca. | 169 m2 |
| Grundstücksfläche | 339 m2 |
| Zimmer | 6 |
| Badezimmer | 2 |
Kosten
| Kaufpreis |
349.000 € |
|---|---|
| Provision |
3,57% inkl. MwSt. vom Kaufpreis |
Finanzierungsrechner:
Kaufpreis:
600.000 €
Eigenkapital:
600.000 €
Monatliche Rate
0 €
Effektiver Jahreszins
0 %
Sollzinsbindung
10 Jahre
Bausubstanz & Energieausweis
| Baujahr | 1987 |
|---|---|
| Heizungsart | Zentralheizung |
| Wesentliche Energieträger | Öl |
| Energieausweis | liegt vor |
| Energieausweistyp | Verbrauchsausweis |
| Energieverbrauchskennwert | 80,6 kWh/(m²*a) |
| Energieeffizienzklasse | C |
80,6
kWh/(m²*a)
Energieeffizienzklasse C
- A+
- A
- B
- C
- D
- E
- F
- G
- H
- 0
- 25
- 50
- 75
- 100
- 125
- 150
- 175
- 200
- 225
- >250
Beschreibung des Objekts
Ausstattung
-Home-Assistent für Licht, Tür, Garagentor,..
-Outdoor-Küche
-Kamin im Wohnzimmer
-Solaranlage auf dem Dach für Warmwasser
-Ölheizung aus 2023, Firma Weishaupt
-Vollsanierung 2009 mit neuer Dacheindeckung, Elektrik, Bäder
Lage
Das Wohnhaus befindet sich in direkter Ortslage von Strüth.
Die Ortsgemeinde Strüth gehört zur Verbandsgemeinde Nastätten und beheimatet rund 300 Einwohner.
Das Mittelzentrum Nastätten (ca. 8 km) bietet alle wichtigen Versorgungsmöglichkeiten über Lebensmittelmärkte bis hin zu Fachärzten und einem Krankenhaus.
Ein Kindergarten befindet sich im benachbarten Welterod (ca. 1 km).
Grundschule und weiterführende Schulen bis hin zum Abitur sind in Nastätten ansässig. Ein weiteres Gymnasium bietet die Loreleystadt St. Goarshausen (ca. 19 km).
Sonstige Angaben
Gefällt Ihnen unser Angebot? Dann zögern Sie nicht und melden sich bei uns.
Wir zeigen Ihnen das Anwesen in einem gemeinsamen Termin vor Ort und begleiten Sie bei den folgenden Schritten zum Kauf Ihres eigenen Zuhauses.
Sie haben Fragen zur Finanzierung oder suchen einen Finanzierungspartner? Auch hier stehen wir Ihnen gerne zur Seite.
Oder haben Sie gleichzeitig eine Immobilie zum Verkauf? Wir kümmern uns darum!
Wir haben dieses Exposé mit Sorgfalt und nach bestem Wissen erstellt. Das Angebot erfolgt freibleibend, alle Angaben beruhen auf uns erteilten Informationen von Dritten.
Zwischenverkauf und Irrtum bleiben vorbehalten.
Wir weisen darauf hin, dass vorhandene Grundrisse nicht maßstabsgetreu sind, Maße, Angaben und Details abweichen können. Für die Richtigkeit, Vollständigkeit und Aktualität der Angaben können wir keine Gewähr übernehmen, auch nicht für mögliche Folgenutzungen der Immobilie.
Die Funktionsfähigkeit der technischen Anlagen haben wir bestmöglich erfragt, können jedoch im Einzelfall hierfür keine Gewähr übernehmen.
Selbstverständlich erhalten Sie bei näherem Interesse die Möglichkeit, das Haus durch Experten Ihrer Wahl ausführlich prüfen und begutachten zu lassen. Für die Klärung Ihrer offenen Fragen stehen wir Ihnen gerne zur Verfügung.
Doch nicht die richtige Immobilie? Dann schauen Sie sich unser weiteres Angebot an: www.zimmermann-immobilien.eu
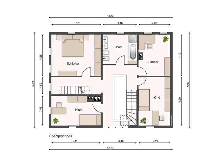
Grundriss
45105_755133_1988127_127-1170_
>
>
45105_755133_1988128_127-1170_
>
>
Adresse
56357 Strüth
Interessante Orte
Preis- und Lageinformationen
Preistrend für Bestandsimmobilien in Strüth