In ansprechender Wohnlage der Rintelner Nordstadt entsteht ein modernes Wohnbaugebiet entstanden. Die besonders beliebte Wohnlage und die Bebaubarkeit mit Einfamilienhäusern, Doppelhäusern und Mehrfamilienhäusern, bietet besonders den privaten Bauherren und Investoren die Möglichkeit Ihre eigenen 4 Wände zu schaffen.
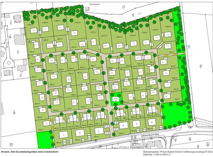
Auf ca. 67.000 m² Fläche entstehen hier bis zu 79 Baugrundstücke. Die Größen variieren von ca. 340 m² bis hin zu über 2.000 m².
Insbesondere die Nähe zu sämtlichen Versorgungseinrichtungen sowie auch die sehr gute verkehrstechnische Anbindung stellen einen deutlichen Pluspunkt dar und machen das Wohnen hier attraktiv und lebenswert.
Wir stellen Ihre Immobilienfinanzierung auf sichere Beine!
Gerne beraten Sie unsere Finanzierungsexperten zu Fördermitteln der KfW und BAFA. Ebenso hat die Bundesregierung mit dem Wachstumschancengesetz ein wirksames Mittel zur steuerlichen degressiven Abschreibung von vermieteten Wohnraum geschaffen. Zusammen mit Ihrem Steuerberater betrachten wir im Rahmen Ihrer Beratung gerne Ihre finanziellen Vorteile.
Leben und Wohnen, wo Rinteln am schönsten ist!
31737 Rinteln
Die vollständige Adresse der Immobilie erhalten Sie vom Anbieter.
Auf Karte anzeigen
Die vollständige Adresse der Immobilie erhalten Sie vom Anbieter.
Finanzierungszertifikat
In nur zwei Minuten zu Ihrem persönlichen Finanzierungszertifkat.
Infos
| Vermarktungsart | Kaufen |
|---|---|
| Grundstücksfläche | 373 m2 |
| Erschließung | Erschlossen |
| Empfohlene Nutzung | Doppelhaus, Einfamilienhaus, Mehrfamilienhaus |
| Bebaubar nach | Bebauungsplan |
| Verfügbar ab | nach Vereinbarung |
Kosten
| Miete pro Jahr |
83.925 € |
|---|---|
| Provision | Nein |
Finanzierungsrechner:
Kaufpreis:
600.000 €
Eigenkapital:
600.000 €
Monatliche Rate
0 €
Effektiver Jahreszins
0 %
Sollzinsbindung
10 Jahre
Beschreibung des Objekts
Lage
Die Stadt Rinteln (Landkreis Schaumburg) wird durch den Verlauf der Weser in Nord- und Südstadt geteilt.
Unser angebotenes Wohngebiet befindet sich in der wohnlich attraktiven Nordstadt. Denn hier ist der Kamm des Wesergebirges für Naturfreunde nahezu vor der Haustür. Die Dinge des alltäglichen Lebens, wie Einkaufsmöglichkeiten, Drogerie, Bank, Bahnhof etc. sind fußläufig erreichbar.
Der historische Altstadtkern mit seinen Fachwerk- und Natursteingemäuern in der Südstadt lädt zum Bummeln und Verweilen ein.
Eine ideale Verkehrsanbindung haben Sie durch die optimalen Anschlüsse zur B238, B83 sowie zur A2.
Erfahren Sie mehr über Rinteln unter:
https://www.rinteln.de/leben-in-rinteln/stadtportrait/
Sonstige Angaben
Wir stellen Ihre Immobilienfinanzierung auf sichere Beine!
Gerne beraten Sie unsere Finanzierungsexperten zu Fördermitteln der KfW und BAFA. Ebenso hat die Bundesregierung mit dem Wachstumschancengesetz ein wirksames Mittel zur steuerlichen degressiven Abschreibung von vermieteten Wohnraum geschaffen. Zusammen mit Ihrem Steuerberater betrachten wir im Rahmen Ihrer Beratung gerne Ihre finanziellen Vorteile.