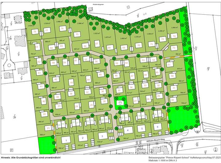
Am Waldrand der Rintelner Nordstadt entsteht ein modernes Wohngebiet für Wohnwünsche jeder Art. Sie können die Grundstücke mit Einfamilienhäusern, Doppelhäusern sowie Mehrfamilienhäusern bebauen – private Bauherren und Investoren finden hier optimale Voraussetzungen für ihr Vorhaben in Bestlage. Die Fläche umfasst insgesamt 78 Baugrundstücke in Größen zwischen ca. 340 m² bis über 2.000 m². Diese können, nach der erfolgten Erschließung, ab Sommer 2026 bebaut werden.
Besonders überzeugen die Nähe zu allen Versorgungseinrichtungen, Kindergärten und Schulen sowie die hervorragende verkehrstechnische Anbindung – ein deutlicher Pluspunkt für attraktives und lebenswertes Wohnen.
Gerne suchen wir mit Ihnen gemeinsam Ihr ideales Traumgrundstück aus und stellen gemeinsam ein maßgeschneidertes Finanzierungskonzept auf.
Leben und Wohnen, wo Rinteln am schönsten ist!
31737 Rinteln
Die vollständige Adresse der Immobilie erhalten Sie vom Anbieter.
Auf Karte anzeigen
Die vollständige Adresse der Immobilie erhalten Sie vom Anbieter.
Finanzierungszertifikat
In nur zwei Minuten zu Ihrem persönlichen Finanzierungszertifkat.
Infos
| Vermarktungsart | Kaufen |
|---|---|
| Grundstücksfläche | 529 m2 |
| Erschließung | Erschlossen |
| Empfohlene Nutzung | Einfamilienhaus |
| Bebaubar nach | Bebauungsplan |
| Verfügbar ab | nach Vereinbarung |
Kosten
| Miete pro Jahr |
119.025 € |
|---|---|
| Provision | Nein |
Finanzierungsrechner:
Kaufpreis:
600.000 €
Eigenkapital:
600.000 €
Monatliche Rate
0 €
Effektiver Jahreszins
0 %
Sollzinsbindung
10 Jahre
Beschreibung des Objekts
Lage
Die Stadt Rinteln (Landkreis Schaumburg) wird durch den Verlauf der Weser in Nord- und Südstadt geteilt.
Unser angebotenes Wohngebiet befindet sich in der wohnlich attraktiven Nordstadt. Denn hier ist der Kamm des Wesergebirges für Naturfreunde nahezu vor der Haustür. Die Dinge des alltäglichen Lebens, wie Einkaufsmöglichkeiten, Drogerie, Bank, Bahnhof etc. sind fußläufig erreichbar.
Der historische Altstadtkern mit seinen Fachwerk- und Natursteingemäuern in der Südstadt lädt zum Bummeln und Verweilen ein.
Eine ideale Verkehrsanbindung haben Sie durch die optimalen Anschlüsse zur B238, B83 sowie zur A2.
Erfahren Sie mehr über Rinteln unter:
https://www.rinteln.de/leben-in-rinteln/stadtportrait/
Sonstige Angaben
Wir stellen Ihre Immobilienfinanzierung auf sichere Beine!
Gerne beraten Sie unsere Finanzierungsexperten zu Fördermitteln der KfW und BAFA. Ebenso hat die Bundesregierung mit dem Wachstumschancengesetz ein wirksames Mittel zur steuerlichen degressiven Abschreibung von vermieteten Wohnraum geschaffen. Zusammen mit Ihrem Steuerberater betrachten wir im Rahmen Ihrer Beratung gerne Ihre finanziellen Vorteile.