Schönes Reihenmittelhaus sucht Mieter!
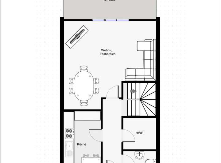
Das Reihenmittelhaus bietet im Erdgeschoss ein großzügiges Wohnzimmer mit dem direkten Zugang zu der Terrasse mit Garten, eine Küche, einen Abstellraum und ein Gäste-WC mit einem Fenster.
Im Obergeschoss befinden sich die drei Schlafräume sowie das grosszügige Tageslichtbad. Der Dachboden ist ausgebaut und bietet ein grosszügiges beheiztes Dachstudio.
Die familienfreundliche und ruhige Lage mit guter Infrastruktur ist hier besonders hervorzuheben. Einkaufsmöglichkeiten, Kindergärten, Spielplätze, sowie alle Schulformen befinden sich in unmittelbarer Umgebung und sind zügig mit dem Auto oder mit dem Rad zu erreichen.
Wir bitten um Verständnis, dass Hunde in diesem Objekt nicht gestattet sind.
Anfragen bitte schriftlich mit vollständigen Kontaktdaten!
Daten zum Objekt
Verfügbar: ab sofort
Zimmer: 5
Grundstück: 210m²
Kosten
Küche: 35 Euro
Kaltmiete: 1140,- Euro
Betriebskostenvorauszahlung: 100,- Euro
Kaution: 3 Kaltmieten
Verbrauchskosten:
Strom/Gas/Wasser nach eigenem Verbrauch und Abrechnung mit dem Energieversorger.
Damit Sie das Objekt anmieten können, benötigen wir folgende Unterlagen von Ihnen:
(von allen Hauptmietern nach der Besichtigung)
1. Mieterselbstauskunft (Formular wird von uns zur Verfügung gestellt)
2. Eine Kopie von dem Personalausweis (Vor- und Rückseite)
3. SCHUFA-Eigenauskunft (Nicht älter als 3 Monate)
4. Nachweis über derzeitige Einnahmen (z.B. Gehaltsabrechnung oder Bilanzen der letzten 2 Monate sowie vom letzten Dezember)
Reihenhaus in familienfreundlicher Lage
27356 Rotenburg (Wümme)
Die vollständige Adresse der Immobilie erhalten Sie vom Anbieter.
Auf Karte anzeigen
Die vollständige Adresse der Immobilie erhalten Sie vom Anbieter.
Infos
| Haustyp | Reihenmittelhaus |
|---|---|
| Wohnfläche ca. | 115 m2 |
| Grundstücksfläche | 210 m2 |
| Zimmer | 5 |
| Schlafzimmer | 4 |
| Badezimmer | 1 |
| Garage/Stellplatz | Außenstellplatz |
| Anzahl Garage/Stellplatz | 1 |
Kosten
| Kaltmiete |
1.140 € |
|---|---|
| Nebenkosten | keine Angabe |
| Heizkosten | keine Angabe |
| Gesamtmiete | 1.140 € |
Weiter mieten oder doch kaufen?
Wer in Miete wohnt, überweist dem Vermieter im Laufe der Jahre hohe Summen, die sich
auch in die eigenen vier Wände investieren lassen könnten.
Bausubstanz & Energieausweis
| Baujahr | 2000 |
|---|---|
| Letzte Sanierung | 2017 |
| Objektzustand | Modernisiert |
| Heizungsart | Gas-Heizung |
Beschreibung des Objekts
Ausstattung
Exemplarisch möchten wir auf die folgenden Ausstattungsdetails verweisen:
- Stellplatz
- Einbauküche
- Gäste WC
- Vollbad
- Dachboden ausgebaut
- Garten
Lage
Das Objekt befindet sich in Rotenburg Wümme. Die Umgebung wird geprägt durch Immobilien gleicher Bauart. Die Anbindung an öffentliche Verkehrsmittel ist problemlos zu erreichen. Einrichtungen des täglichen Bedarfs wie Einkaufsmöglichkeiten, Schulen, Apotheken befinden sich in der unmittelbaren Umgebung und sind zügig mit dem Auto oder mit dem Rad zu erreichen. Die verkehrsgünstige Lage von Rotenbug zwischen den Städten Bremen und Hamburg ist besonders hervorzuheben. Diese sind sowohl mit dem Auto als auch mit dem Zug gut zu erreichen. Durch die Lage ist eine optimale Anbindung an den Nah- und Fernverkehr gewährleistet.
Sonstige Angaben
Hinweis
Alle Daten und in diesem Exposé getroffenen Darstellungen beziehen sich auf die uns vorliegenden Pläne, uns übergebene Unterlagen und Skizzen sowie Aussagen des Eigentümers. Für die Richtigkeit dieser Angaben, Irrtümer oder Änderungen können wir keine Haftung übernehmen.
Kontaktaufnahme
Bitte vereinbaren Sie einen Besichtigungstermin. Haben Sie bitte Verständnis dafür, dass unangemeldete Besucher nicht empfangen werden können. Weiterhin bitten wir um Verständnis, wenn wir Kundenanfragen, aufgrund unserer Nachweispflicht gegenüber dem Verkäufer, nur bei vollständiger Angabe Ihrer Kontaktdaten – Name, Anschrift, Telefonnummer, E-Mail – bearbeiten.
Adresse
27356 Rotenburg (Wümme)
Interessante Orte
Preis- und Lageinformationen
Preistrend für Bestandsimmobilien in Rotenburg (Wümme)
>
>
>