Dieses kleine Einfamilienhaus befindet sich in einer Einbahnstraße von Gardelegen.
Das Haus wurde 1900 erbaut und ist bis zum 31.03.2026 vermietet.
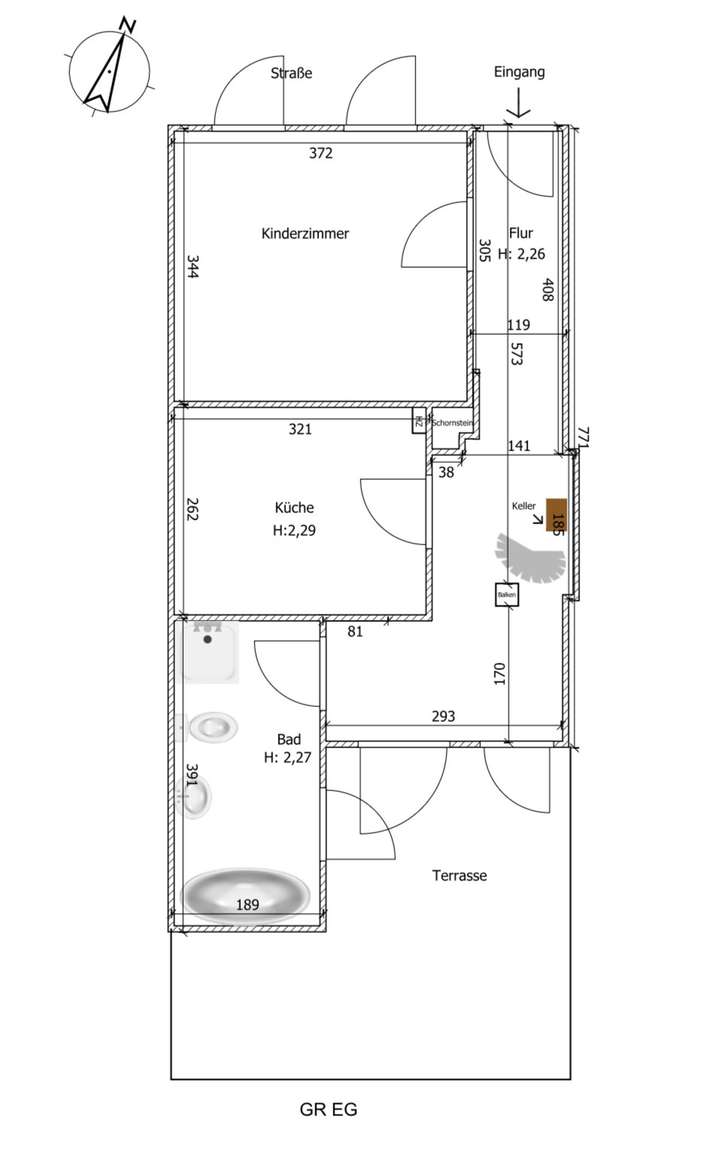
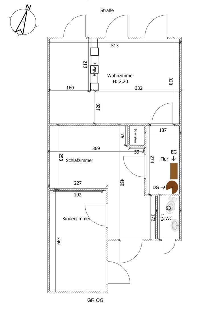
Raumaufteilung
Erdgeschoss:
1 Zimmer, Küche, Bad mit Dusche und Wanne und Flur
Obergeschoss:
3 Zimmer, Gäste-WC und Flur
Der Dachboden dient als Lagerfläche.
Das Haus ist teilweise unterkellert.
Das Grundstück besitzt zudem noch einen kleinen Hof.
Die Mieteinnahmen belaufen sich auf 4887,24 € im Jahr.
Finanzierungszertifikat
In nur zwei Minuten zu Ihrem persönlichen Finanzierungszertifkat.
Infos
| Haustyp | Reihenmittelhaus |
|---|---|
| Etagenzahl | 1 |
| Wohnfläche ca. | 95 m2 |
| Nutzfläche | 95 m2 |
| Grundstücksfläche | 76 m2 |
| Bezugsfrei ab | vermietet |
| Zimmer | 4 |
| Schlafzimmer | 3 |
| Badezimmer | 1 |
Kosten
| Kaufpreis |
50.000 € |
|---|---|
| Provision |
5.000,- € inkl. MwSt. |
| Mieteinnahmen | 407 € |
Finanzierungsrechner:
Kaufpreis:
600.000 €
Eigenkapital:
600.000 €
Monatliche Rate
0 €
Effektiver Jahreszins
0 %
Sollzinsbindung
10 Jahre
Bausubstanz & Energieausweis
| Baujahr | 1900 |
|---|---|
| Bauphase | Haus fertig gestellt |
| Denkmalschutzobjekt | Ja |
| Qualität der Austattung | Normal |
| Heizungsart | Zentralheizung |
| Wesentliche Energieträger | Gas |
| Energieausweis | liegt zur Besichtigung vor |
Beschreibung des Objekts
Ausstattung
+ vermietet bis zum 31.03.2026
+ teilweise unterkellert
+ Gaszentralheizung (Vaillant)
+ Warmwasser über Heizung
+ Fußböden: Fliesen + Dielung
+ Dachboden = Lagerfläche
+ Elektrik: alt
Lage
Inmitten der gemütlichen Gardelegener Innenstadt in einer kleinen Gasse finden Sie dieses Haus. Hier gibt es nur den Anliegerverkehr.
Sonstige Angaben
Wir hoffen mit diesem attraktiven Angebot Ihr Interesse geweckt zu haben.
Wir raten Ihnen, vor Vereinbarung eines Besichtigungstermines, Ihre Finanzierungsmöglichkeiten/Ihre Bonität abzuprüfen. Auf Wunsch können wir Ihnen einen versierten Finanzberater empfehlen.
Da es durch unautorisierte Begehungen von Verkaufsobjekten immer wieder zu Belästigungen der Nachbarn kommt, bitten wir Sie, das Privatgrundstück in Abwesenheit des betreuenden Maklers nicht zu betreten.
Alle Angaben nach Auskunft des Eigentümers!! Irrtum vorbehalten!!
Gerne stehen wir Ihnen zur Beantwortung weiterer Fragen und einen gemeinsamen Besichtigungstermin zur Verfügung.
Telefonisch erreichbar unter:
Telefon 03907 / 42169
Mobil 0170 / 3476375
Mail info@betreuungpur.de
Ihr H. Schwarzlose Immobilien Team
Bahnhofstraße 23, 39638 Gardelegen
www.schwarzlose-immobilien.de
Grundriss
Grundriss - 1. OG
>
>
IMG_5036
>
>
Adresse
Wächterstraße 17, 39638 Gardelegen
Interessante Orte
Preis- und Lageinformationen
Preistrend für Bestandsimmobilien in Gardelegen