Schönes Fachwerkhaus mit großzügigen Garten und anliegendem ca. 3.500 qm länglichen Grundstück.
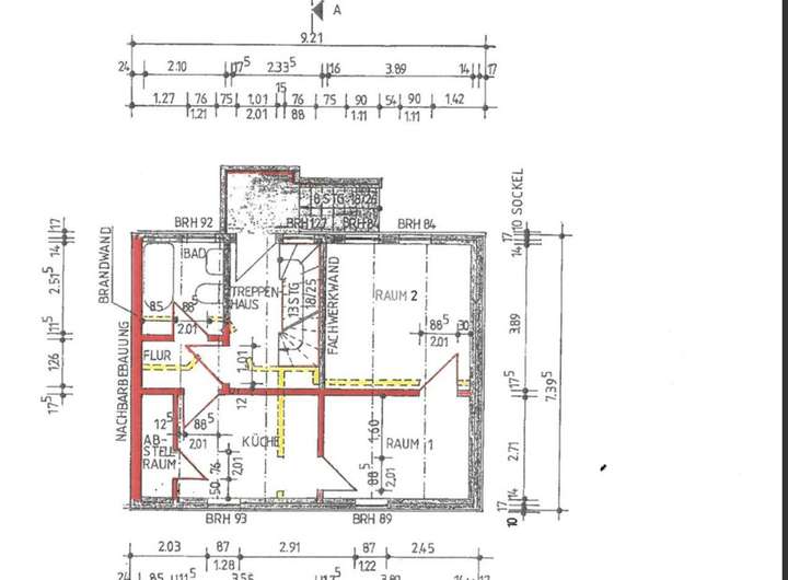
Im Haus befinden sich drei separate Wohnungen aufgeteilt in Erdgeschoss, Obergeschoss und Dachgeschoss. Die Grundrisse im EG und OG sind schnittgleich - jeweils 2 Zimmer, Küche und kleines Bad mit Dusche.
Die Wohnung im DG hat ein schön geschnittenes Zimmer mit einer Kochnische und einem kleinen Bad mit Dusche.
Unmittelbar am Haus befindet sich ein schöner gemütliche Garten.
Die Wohnungen im EG und OG sind jeweils 45 qm groß und die Nettokaltmiete beträgt monatlich derzeit je Wohnung 179,60 €.
Die Wohnung im DG hat 42 qm und steht seit drei Monaten zur Vermietung frei. Die letzte Kaltmiete in Jahr 2021 betrug 169,60 € pro Monat.
Weiter ist ein großer Steifen Ackerland verpachtet. Die Pacht beträgt 50,00 EUR pro Jahr.
Mehrfamilienhaus- Fachwerkhaus
38836 Huy
Die vollständige Adresse der Immobilie erhalten Sie vom Anbieter.
Auf Karte anzeigen
Die vollständige Adresse der Immobilie erhalten Sie vom Anbieter.
Finanzierungszertifikat
In nur zwei Minuten zu Ihrem persönlichen Finanzierungszertifkat.
Infos
| Haustyp | Mehrfamilienhaus |
|---|---|
| Etagenzahl | 2 |
| Wohnfläche ca. | 132 m2 |
| Grundstücksfläche | 3.475 m2 |
| Bezugsfrei ab | Sofort |
| Zimmer | 5 |
| Schlafzimmer | 3 |
| Badezimmer | 3 |
| Garage/Stellplatz | Außenstellplatz |
| Anzahl Garage/Stellplatz | 1 |
Kosten
| Kaufpreis |
89.000 € |
|---|---|
| Provision |
Maklerprovision (Käuferprovision) 7,14% inkl. gesetzlicher Mehrwertsteuer |
Finanzierungsrechner:
Kaufpreis:
600.000 €
Eigenkapital:
600.000 €
Monatliche Rate
0 €
Effektiver Jahreszins
0 %
Sollzinsbindung
10 Jahre
Bausubstanz & Energieausweis
| Baujahr | 1794 |
|---|---|
| Objektzustand | Gepflegt |
| Heizungsart | Zentralheizung |
| Wesentliche Energieträger | Gas |
| Energieausweis | laut Gesetz nicht erforderlich |
Beschreibung des Objekts
Ausstattung
Normale Ausstattung. Technisch im einwandfreien Zustand. Derzeitige Mieter im EG und OG sind mit den Wohnverhältnissen sehr zufrieden. Modernisierung im Bad würde den Wohnungen gut tun.
Lage
Am Rand vom oberen Harz landschaftlich sehr schön und ruhig gelegen. Mit dem Auto ist man in ca. 1 Stunde in Magdeburg oder Helmstedt. Bis nach Wernigerode sind es ca. 27 km.
Grundriss
DG
>
>
1.OG
>
>
EG
>
>
Keller
>
>
Adresse
38836 Huy
Interessante Orte
Preis- und Lageinformationen
Preistrend für Bestandsimmobilien in Huy