VIDEO-RUNDGANG (keine Anmeldung erforderlich):
https://vimeo.com/1106268607/3d6ec0bda9?share=copy
Link in Browser kopieren oder unter "Ergänzende Links" anklicken
Besichtigung ohne Wartezeit und Fahrtaufwand? Mit dem 360°-Rundgang können Sie diese Immobilie online besichtigen und sich frei durch alle Innenräume und den Außenbereich bewegen (durch die 3D-Darstellung ist es fast so, als seien Sie vor Ort). Die Zugangsdaten und ein detailliertes Exposé mit Objektanschrift erhalten Sie am schnellsten, indem Sie uns über das Anfrageformular Ihre vollständigen Kontaktdaten zusenden (bitte mit Rufnummer). Wenn Sie nach dem 360°-Rundgang eine Vor-Ort-Besichtigung oder weitere Informationen wünschen, freuen wir uns auf Ihre erneute Kontaktaufnahme.
DAS WICHTIGSTE IN KÜRZE
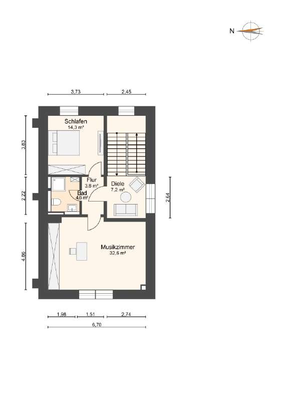
- repräsentativer, rechteckiger Turm mit 196 m² Wohnfläche auf drei Ebenen
- auf jeder Ebene jeweils zwei Zimmer mit Bad bzw. Küche
- Raumhöhe bis zu 3,19 m
- helles Treppenhaus mit großzügigen Podesten
- hochwertiges Merbau-Parkett in allen Räumen (ausgenommen Bäder)
- Altbaudetails (Sprossenfenster, antike Holztreppe, Bruchsteinmauerwerk)
- Küchenanschlüsse in jedem der drei großen Zimmer
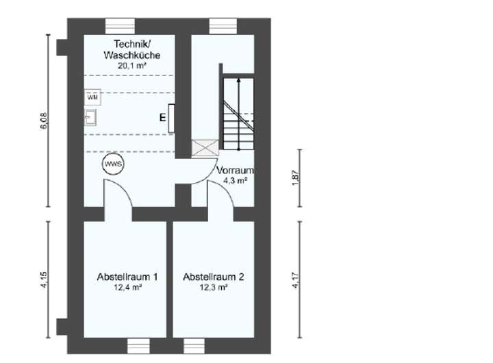
- vollständig unterkellert (49 m² Nutzfläche)
- sichtgeschützte Grünfläche mit Südterrasse (37 m²)
- zentrale Lage in einem geschichtsträchtigen Gebäudekomplex
Seltene Gelegenheit: Wohnen und Arbeiten auf modernisierten 196 m² Wohnfläche im Landgrafenschloss
35510 Butzbach
Die vollständige Adresse der Immobilie erhalten Sie vom Anbieter.
Auf Karte anzeigen
Die vollständige Adresse der Immobilie erhalten Sie vom Anbieter.
Finanzierungszertifikat
In nur zwei Minuten zu Ihrem persönlichen Finanzierungszertifkat.
Infos
| Haustyp | Sonstige |
|---|---|
| Wohnfläche ca. | 196 m2 |
| Grundstücksfläche | 433 m2 |
| Zimmer | 6 |
| Anzahl Garage/Stellplatz | 3 |
Kosten
| Kaufpreis |
980.000 € |
|---|---|
| Provision |
3,57% des Kaufpreises |
Finanzierungsrechner:
Kaufpreis:
600.000 €
Eigenkapital:
600.000 €
Monatliche Rate
0 €
Effektiver Jahreszins
0 %
Sollzinsbindung
10 Jahre
Bausubstanz & Energieausweis
| Baujahr | 1818 |
|---|---|
| Bauphase | Haus fertig gestellt |
| Objektzustand | Gepflegt |
Beschreibung des Objekts
Ausstattung
(Fortsetzung Objektbeschreibung)
EBENFALLS WISSENSWERT
Die Immobilie ist Teil des landgräflichen Schlosses in der Butzbacher Altstadt, dessen Ursprünge bis in das 14. Jahrhundert zurückreichen. Anfang des 19. Jahrhunderts wurde es für die Stationierung der Kavallerie umgebaut. Nach Nutzung als amerikanische Kaserne bis 1991 wurden die Gebäude von 2002 umfangreich modernisiert. Heute befinden sich in ihnen Wohnungen, Büros und Praxen. Circa drei- bis viermal im Jahr finden auf dem Gelände kulturelle Open-Air-Veranstaltungen statt.
Das Objekt steht unter Denkmalschutz (Einzelkulturdenkmal).
Aufgrund der Grundrissgestaltung und Nutzungsmöglichkeiten (Wohnen, Gewerbe, Mischnutzung) eignet sich das Objekt für unterschiedliche Bedürfnisse: Ob Ein-, Zwei- oder Dreifamilienhaus, Wohnen und Arbeiten unter einem Dach oder (anteilige) Vermietung- viele Konstellationen sind denkbar und ermöglichen eine langfristige Nutzung ohne kostenintensive Umbaumaßnahmen.
Die Immobilie ist zur Zeit vermietet, kann aber bei Bedarf mietfrei übergeben werden.
Die Möbel in den Dielen können optional miterworben werden.
- Einbauküche: Holzfronten, Holzarbeitsplatte, Elektrogeräte
- Fußbodenbeläge: hochwertiges Merbau-Parkett
- weiß lackierte Holzsprossenfenster mit Zweifachisolierverglasung (2002)
- großzügiger Einbauschrank in Weiß/Hellgrau (als Kleider- oder Büroschrank nutzbar)
- zweiflügelige Haustür aus Holz mit Lichtausschnitten und Oberlicht
- Eingangstreppe mit Metallgeländer
- Innentreppen aus Holz
- Terrasse (36,5 m²) mit Südausrichtung
Sicherheitstechnik:
- Fenster und Eingangstür mit Mehrfachverriegelung
- Türsprechanlage auf jeder Etage
SANITÄRE EINRICHTUNGEN
- zwei Duschbäder (Erdgeschoss, 2. Obergeschoss)
- beide Bäder mit grauen Bodenfliesen, weißen Wandfliesen und Sanitärobjekten
AUSSENANLAGE
- Grünfläche mit Baum (Linde), Rasen und Mauer/Hecke als Grundstücksbegrenzung/Sichtschutz
- Zuwegung: Basaltpflaster
- Einfriedung: Ma...
Lage
Die Immobilie befindet sich in zentraler Lage von Butzbach in der Altstadt.
Einrichtungen des täglichen Bedarfs sind in wenigen Fußminuten erreichbar.
Parkmöglichkeiten für Besucher stehen in der Straße ausreichend zur Verfügung (gebührenpflichtig).
Sonstige Angaben
- Massivbauweise
- Dämmung der obersten Geschossdecke mit Mineralwolle
- Blockheizkraftwerk
- Energieausweis nicht erforderlich
- Denkmalschutz
- Raumhöhe (m): UG: 2,63 - 2,71; EG: 3,10 - 3,19; 1. OG: 3,00 - 3,14; 2. OG: 2,84 - 2,96; DG: bis zu 1,67
- Nutzfläche gesamt (m²): 85,0
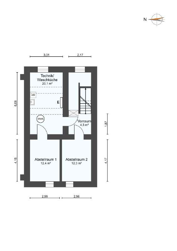
- Nutzfläche Keller (m²): 49,2
- Nutzfläche Dachgeschoss (m²): 23,5
- Nutzfläche Nebengebäude (m²): 12,4
- Gartenhäuschen
- drei Pkw-Außenstellplätze
- das Objekt ist vermietet
MODERNISIERUNG
- 2006/2007: Verlegen des Parketts, Durchführung von Malerarbeiten
- Januar bis August 2002: Grundsanierung des Gebäudes
Bildhinweis: Für eine erweiterte Raumansicht werden Innenräume mit Weitwinkelobjektiv fotografiert und können daher etwas größer wirken, als sie tatsächlich sind.
Sie sind Immobilienvermittler und stehen in Kontakt mit einem Interessenten, für den diese Immobilie passend sein könnte? Gerne kooperieren wir mit Ihnen. Bitte senden Sie uns hierfür zunächst das Kontaktformular mit dem Hinweis - Kooperationsanfrage - zu, wir nehmen innerhalb eines Werktages Kontakt mit Ihnen auf.
Weitere Dokumente
AGBsGrundriss
Grundriss Untergeschoss
>
>
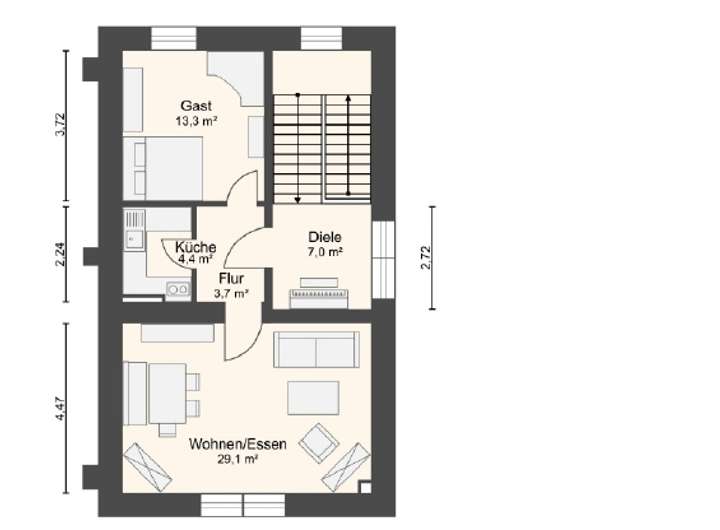
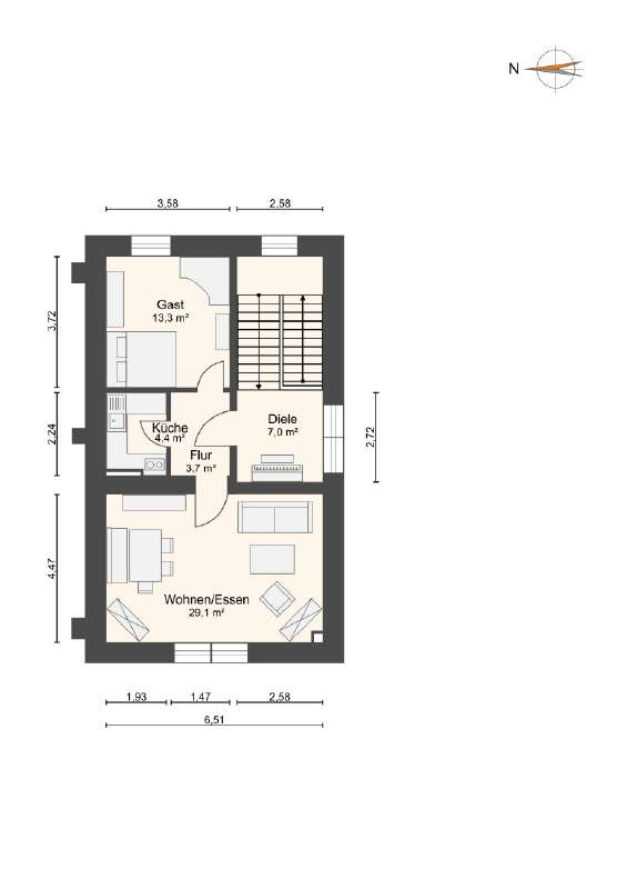
Grundriss Erdgeschoss
>
>
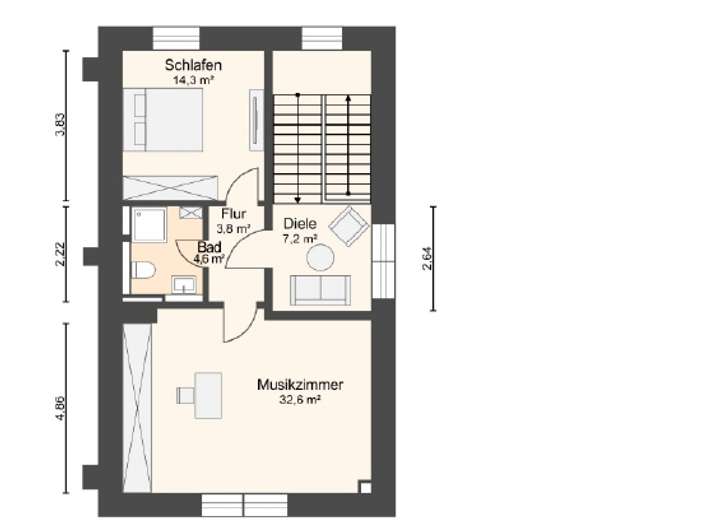
Grundriss Obergeschoss 1
>
>
Grundriss Obergeschoss 2
>
>
Adresse
35510 Butzbach
Interessante Orte
Preis- und Lageinformationen
Preistrend für Bestandsimmobilien in Butzbach