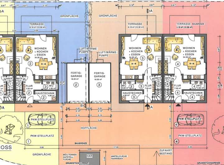
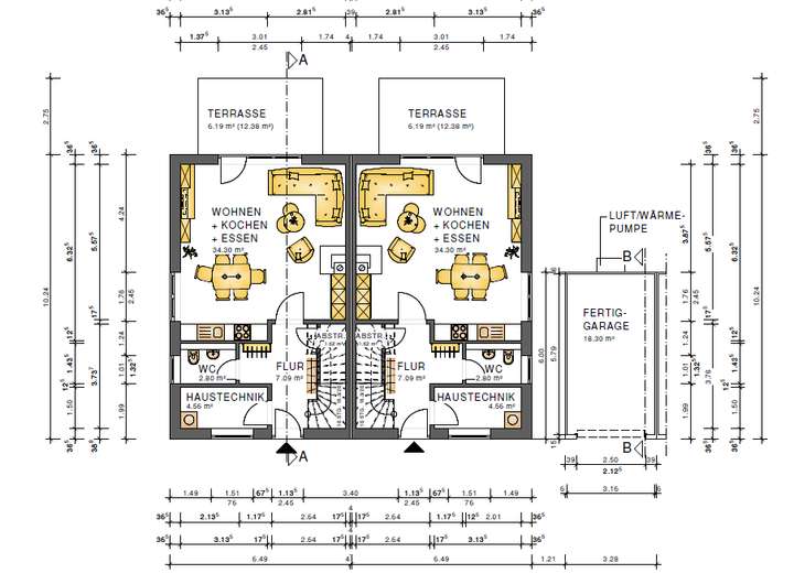
Das ideale Objekt für handwerklich begabte Macher oder Handwerker. Nehmen Sie den Innenausbau nach Ihren eigenen Wünschen und Vorstellungen vor und sparen Sie Geld dabei. Wir bieten Ihnen hier eine moderne Doppelhaushälfte. Die vollständige Planung wurde hier vom Bauträger übernommen, die Baugenehmigung liegt vor, der Rohbau ist fertiggestellt. Die vorliegende Planung sieht folgende zeitgemäße Raumaufteilungen vor: Im Erdgeschoss: Flur, großer Wohn-/Essbereich mit offener Küche und Ausgang zur Terrasse, Abstellraum, Gäste-WC und Haustechnikraum. Im Obergeschoss: Tageslichtbadezimmer, Gästezimmer, Kinderzimmer. Im Dachgeschoss: Schlafzimmer mit Ankleide, Master-Bad. Der Bau einer Garage ist genehmigt und kann nach Ihren Wünschen in Eigenleistung erstellt werden. DHH 1 = verkauft DHH 2 = frei DHH 3 = frei DHH 4 = verkauft
Moderne Doppelhaushälfte im erweiterten Rohbau - Machen Sie Ihr eigenes Ding
64354 Reinheim
Die vollständige Adresse der Immobilie erhalten Sie vom Anbieter.
Auf Karte anzeigen
Die vollständige Adresse der Immobilie erhalten Sie vom Anbieter.

Finanzierungszertifikat
In nur zwei Minuten zu Ihrem persönlichen Finanzierungszertifkat.
Infos
Haustyp | Doppelhaushaelfte |
---|---|
Etagenzahl | 3 |
Wohnfläche ca. | 145 m2 |
Grundstücksfläche | 172 m2 |
Bezugsfrei ab | sofort |
Zimmer | 5 |
Schlafzimmer | 3 |
Badezimmer | 2 |
Garage/Stellplatz | Garage |
Anzahl Garage/Stellplatz | 1 |
Kosten
Kaufpreis |
395.000 € |
---|---|
Provision |
3,57 inkl. MwSt. |
Finanzierungsrechner:
Kaufpreis:
600.000 €
Eigenkapital:
600.000 €
Monatliche Rate
0 €
Effektiver Jahreszins
0 %
Sollzinsbindung
10 Jahre
Bausubstanz & Energieausweis
Baujahr | 2022 |
---|---|
Qualität der Austattung | Gehoben |
Energieausweis | liegt zur Besichtigung vor |
Beschreibung des Objekts
Ausstattung
Das Objekt wird im erweiterten Rohbau verkauft. Der Rohbau, das Dach und die Außenfassade sind bereits fertiggestellt. Die DHH befindet sich in einer Eigentumsgemeinschaft mit 4 DHH, die Außenanlage wird noch fertiggestellt. Estrich, Heizung, Elektrik, Sanitär, Innenputz, Innenwände (EG und OG bereits gestellt und einseitig beplankt) sowie die Garage sind Eigenleistung des Erwerbers. Maßgeblich ist die Baubeschreibung sowie der Kaufvertrag. - Massive Bauweise - Moderne Architektur - Großzügige Terrassen (Planung) - Außenfenster mit 3-fach-Verglasung - Elektrische Rollläden - Offener Wohn-/Essbereich - Abstellraum (Planung) - Putzfassade im Wärmedämmverbund - Platz für Waschmaschinen-/Trockneranschluss in OG oder DG
Lage
Das Objekt liegt im Stadtteil Georgenhausen, am Rande des Rhein-Main-Gebiets im Landkreis Darmstadt-Dieburg. Der Stadtteil Georgenhausen mit 2.123 Einwohnerinnen und Einwohnern wächst, nicht zuletzt bedingt durch seine unmittelbare räumliche Nähe, immer weiter mit dem Stadtteil Zeilhard zusammen. Beide Stadtteile werden bereits von einem gemeinsamen Ortsbeirat vertreten. In diesem Stadtteil besteht ein Mix aus Wohnen und Handwerk. Mit dem sich in Georgenhausen befindlichen Freizeitzentrum ist auch hier Naherholung groß geschrieben. Reinheim Die Kernstadt bietet nicht nur ihren etwa 8800 Einwohnerinnen und Einwohnern ein vielseitiges Spektrum für gute Lebensqualität. Das Hofgut mit dem angrenzenden Stadtpark lädt zum Verweilen ein, ebenso das Naturschutzgebiet Reinheimer Teich mit dem Segelflugplatz in unmittelbarer Nähe. Wichtig auch die Vielzahl an Einkaufsmöglichkeiten in der Ortsmitte, die Gastronomie und auch die angesiedelte Industrie und das angesiedelte Handwerk, aber auch, bedingt durch die gut ausgebaute Infrastruktur, der direkte Weg nach Darmstadt und das gesamte Rhein-Main-Neckar-Gebiet. Ebenso wichtig ist die vorhandene medizinische Versorgung, die vorhandenen Kinderbetreuungseinrichtungen und ein ausgeprägtes Gemein- und Vereinswesen. Alles in allem ein Mix , der dafür sorgt, sich in Reinheim wohlzufühlen!
Sonstige Angaben
Wir bitten um Verständnis, dass wir Anfragen nur bearbeiten können, wenn wir folgende Angaben von Ihnen haben: Name, Vorname, Anschrift, Telefon-Nr., Mobil-Nr., E-mail-Adresse. Das Geldwäschegesetz (GwG) verpflichtet Makler zur Dokumentationspflicht über ihre Kundenkontakte vor Begründung einer Geschäftsbeziehung. Hierzu müssen wir die Daten Ihres Personalausweises festhalten. Dies kann erfolgen durch eine von Ihnen eingereichte Kopie oder durch ein Foto des Personalausweises. Diese können Sie uns gerne schon mit Ihrer Anfrage per e-mail zukommen lassen. Die Dokumente müssen mindestens fünf Jahre lang aufbewahrt werden. Wir bitten um Ihr Verständnis. Selbstverständlich eröffnen sich mit dem Kauf einer Immobilie auch Fragen, die in keinem Exposé beantwortet werden können. Wir stehen Ihnen deshalb gerne und kompetent für nähere Informationen sowie für einen Besichtigungstermin zur Verfügung. Dieses Angebot ist freibleibend und unverbindlich. Alle Informationen beruhen auf Aussagen des Eigentümers. Für Ihre Richtigkeit wird keine Gewähr übernommen. Irrtümer und Zwischenverkauf vorbehalten. Ein Besuch auf unserer aktuellen Homepage lohnt sich sicher! Dort finden Sie weitere interessante Angebote! ************************** Sie möchten Ihre Immobilie verkaufen? Wir verkaufen/vermieten für Sie seit über 20 Jahren im Main-Kinzig-Kreis und Rhein-Main-Gebiet – kompetent – sicher - zu marktgerechten Preisen. Nutzen Sie unser Fachwissen zu Ihrem Vorteil! Rufen Sie uns gerne an. Ihr Team von MALIK-Immobilien Tel.: 0 60 51-61 70 99 / www.malik-immobilien.de ***************************
Grundriss
Grundriss Erdgeschoss
>

Grundriss Dachgeschoss
>

Grundriss Obergeschoss
>

Freiflächenplan
>

Adresse
64354 Reinheim
Interessante Orte
Preis- und Lageinformationen
Preistrend für Bestandsimmobilien in Reinheim