Das Mehrfamilienhaus mit 3 potentiellen Wohneinheiten und einem Eigentumsgrundstück von 1000 m² befindet sich 35 Minuten von Wolfsburg entfernt in Lüdelsen. Die Immobilie ist ideal für Hobbyhandwerker, Tierliebhaber oder ein Mehrgenerationenwohnen und ist ruhig gelegen.
Die großzügige Wohnfläche von insgesamt 460 m² verteilt sich auf drei Wohneinheiten auf zwei Etagen mit 3-8 Zimmerwohnungen.
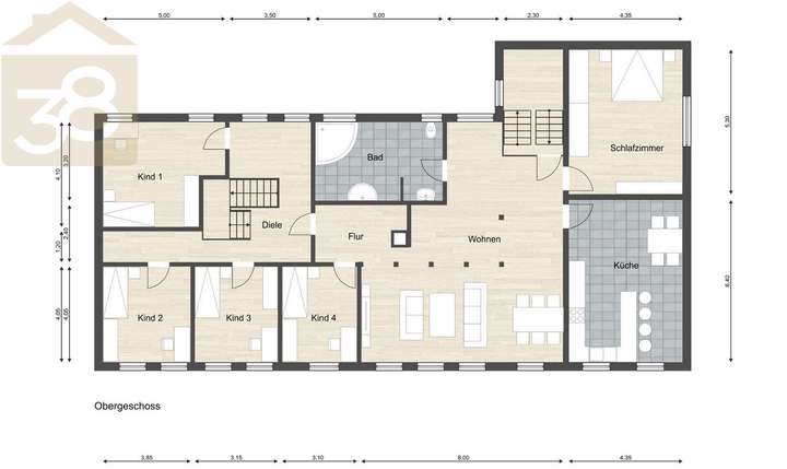
Im Obergeschoss befindet sich eine großzügige ausgebaute 8 Zimmerwohnung mit 240 m² Wohnfläche.
Beheizt wird das Obergeschoss mit einer Zentral Holz- Heizung.
Am Gebäude müssen teilweise Sanierungsarbeiten durchgeführt werden. Die Elektrik und Wasserleitungen wurde erneuert. Das Obergeschoss wurden kernsaniert.
1 Carport, 4 Stellplätze für Ihre PKW‘s und der große Garten mit Pool runden das Grundstück ab.
Doch am besten verschaffen Sie sich selbst eine Vorstellung bei einem persönlichen Besichtigungstermin.
Eine Besichtigung lohnt sich!
Mehrfamilienhaus mit 3 Wohneinheiten und Pool in Lüdelsen! Mein Haus = Mein Makler!
38489 Bornsen
Die vollständige Adresse der Immobilie erhalten Sie vom Anbieter.
Auf Karte anzeigen
Die vollständige Adresse der Immobilie erhalten Sie vom Anbieter.
Finanzierungszertifikat
In nur zwei Minuten zu Ihrem persönlichen Finanzierungszertifkat.
Infos
| Haustyp | Mehrfamilienhaus |
|---|---|
| Etagenzahl | 2 |
| Wohnfläche ca. | 460 m2 |
| Nutzfläche | 70 m2 |
| Grundstücksfläche | 1.000 m2 |
| Bezugsfrei ab | ab sofort |
| Zimmer | 15 |
| Schlafzimmer | 10 |
| Badezimmer | 1 |
| Garage/Stellplatz | Carport |
| Anzahl Garage/Stellplatz | 2 |
Kosten
| Kaufpreis |
99.000 € |
|---|---|
| Provision |
4,95 % inkl. Umsatzsteuer. Die Provision ist mit der Beurkundung verdient & vom Käufer zu zahlen. |
Finanzierungsrechner:
Kaufpreis:
600.000 €
Eigenkapital:
600.000 €
Monatliche Rate
0 €
Effektiver Jahreszins
0 %
Sollzinsbindung
10 Jahre
Bausubstanz & Energieausweis
| Baujahr | 1920 |
|---|---|
| Letzte Sanierung | 2014 |
| Bauphase | Haus fertig gestellt |
| Objektzustand | Renovierungsbedürftig |
| Qualität der Austattung | Einfach |
| Heizungsart | Zentralheizung |
| Energieausweis | liegt zur Besichtigung vor |
Beschreibung des Objekts
Ausstattung
+ 3 Wohneinheiten
+ Obergeschoss kernsaniert
+ insgesamt 460 m² Wohnfläche
+ ca. 1000 m² Eigentumsgrundstück
+ Pool
+ großer Garten
+ teil unterkellert
+ Carport
+ 4 Außenstellplätze
+ Holz-Zentral- Heizung
Lage
Lüdelsen liegt idyllisch mittig zwischen der B244 und der B248, den Verbindungsstraßen nach Wolfsburg und Salzwedel. Lüdelsen ist ein Ortsteil von Jübar. Dort befindet sich eine Grundschule und eine Kita. Alle Dinge des täglichen Bedarfs erledigen Sie im rund 11 km entfernten Beetzendorf.
Sonstige Angaben
Gerne laden wir Sie zu einer Besichtigung ein, um Ihnen vielleicht Ihr neues Zuhause bekannt zu machen.
Bei Interesse und zur Vereinbarung von Besichtigungsterminen setzen Sie sich bitte mit uns über das Kontaktformular in Verbindung. Bitte geben Sie hierbei Ihre vollständige Kontaktadresse an. Unvollständige Anfragen werden nicht bearbeitet.
Unser Angebot ist nur für den Empfänger bestimmt. Bei Weitergabe an Dritte - auch auszugsweise - haftet der weitergebende für unsere Courtage. Da die in diesem Exposé enthaltenen Angaben auf Informationen des Eigentümers beruhen, können wir für die Richtigkeit trotz aller Sorgfalt keine Gewähr übernehmen. Mit dem Zugang dieses Angebotes kommt ein Maklervertrag zustande. Wird von unserem Angebot Gebrauch gemacht und das Objekt erworben, zahlt der Käufer an uns die für das Objekt ausgewiesene Courtage. Die Courtage ist mit dem Abschluss des Kaufvertrags verdient und zur Zahlung fällig. Als Gerichtsstand gilt Wolfsburg als vereinbart.
Weitere Dokumente
DatenschutzhinweiseKostenfreie Wertermittlung
Zertifikate
Grundriss
Grundriss Erdgeschoss
>
>
Grundriss Obergeschoss
>
>
Adresse
38489 Bornsen
Interessante Orte
Preis- und Lageinformationen
Preistrend für Bestandsimmobilien in Bornsen