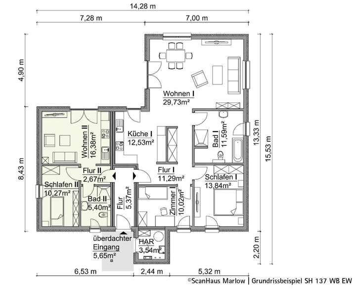
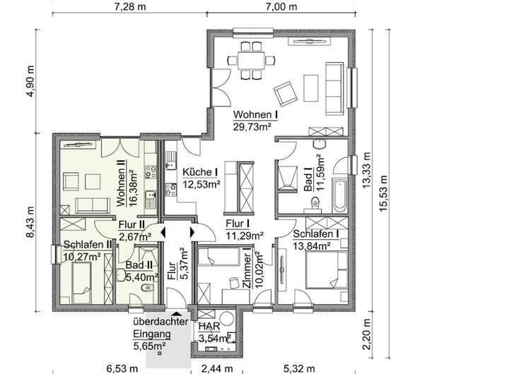
Warum soll es eigentlich nicht möglich sein, mehrere Generationen auf einer Ebene unter einem Dach unterzubringen? Unsere überzeugende Antwort ist hier das SH 137 WB EW – ein ebenso optisch ansprechender wie grundrissseitig durchdachter Winkelbungalow mit Zwei-Zimmer-Einliegerwohnung. Die Hauptwohnung bietet eine Drei-Zimmer-Lösung inklusive großem Vollbad. Das Besondere: Hier verfügen Jung und Alt jeweils über separate Wohnbereiche, die über einen gemeinsamen Flur erreichbar sind.
Änderungen u.a. der Kubator, Grundrisse, Heizungsart oder der technischen Ausstattung sind selbstverständlich möglich.
Zum Leistungsumfang des Hauses gehört u.a eine Luft-Luft/Wasserwärmepumpe, eine Fußbodenheizung, die Bodenplatte und der Estrich in den Etagen. Selbstverständlich gilt bei Scanhaus: ERST BAUEN – DANN BEZAHLEN.
Nicht zum Leistungsumfang gehören ua eine Küche, Malerarbeiten im Innenbereich, Wand- und Bodenbeläge, sowie Spachtel- und Fugenarbeiten oder Hausanschlüsse.
Barrierefreies Generationenhaus Fertighaus: SH 137 WB EW - Platz für die ganze Familie
61118 Bad Vilbel
Die vollständige Adresse der Immobilie erhalten Sie vom Anbieter.
Auf Karte anzeigen
Die vollständige Adresse der Immobilie erhalten Sie vom Anbieter.
Finanzierungszertifikat
In nur zwei Minuten zu Ihrem persönlichen Finanzierungszertifkat.
Infos
| Haustyp | Mehrfamilienhaus |
|---|---|
| Etagenzahl | 1 |
| Wohnfläche ca. | 138 m2 |
| Nutzfläche | 137,47 m2 |
| Grundstücksfläche | 443 m2 |
| Bezugsfrei ab | 2023 |
| Zimmer | 5 |
| Schlafzimmer | 3 |
| Badezimmer | 2 |
Kosten
| Kaufpreis |
963.015 € |
|---|---|
| Provision | Nein |
Finanzierungsrechner:
Kaufpreis:
600.000 €
Eigenkapital:
600.000 €
Monatliche Rate
0 €
Effektiver Jahreszins
0 %
Sollzinsbindung
10 Jahre
Bausubstanz & Energieausweis
| Baujahr | unbekannt |
|---|---|
| Bauphase | Haus in Planung (projektiert) |
| Objektzustand | Erstbezug |
| Qualität der Austattung | Luxus |
| Heizungsart | Fußbodenheizung |
| Wesentliche Energieträger | expose.parameter.energySourcesEnev2014.HEAT_SUPPLY |
| Energieausweis | liegt zur Besichtigung vor |
Beschreibung des Objekts
Ausstattung
Der Gesamtpreis setzt sich zusammen aus:
Hauspreis inkl. USt - SH 137 WB EW - 384.015,00€
(in unserer KFW 40-PV Ausführung)
und dem
Grundstück (externer Anbieter) - ca. 443m² - 579.000,00€
Gesamtpreis 963.015,00€
Zuzüglich Baunebenkosten (z.B. Notar- und Maklerkosten für den Grundstückskauf, Gründungskosten, Außenanlagen, Innenausbau, Küche)
Lage
Die Immobilie liegt in belebter Gegend in Bad Vilbel. In Laufnähe des Objekts sind mehrere Buslinien vorhanden. Überregionale Ziele sind durch die nahe verkehrende Bahnlinie S6 gut erreichbar. In direkter Umgebung finden Sie ein paar Restaurants, Supermärkte, Bäckereien, zwei Cafés und einen Arzt vor. Außerdem gibt es verschiedene Grün- und Parkanlagen, Modegeschäfte, zwei Bars, eine Buchhandlung und ein Fitnessstudio.
Sonstige Angaben
Gerne gehe ich mit Ihnen persönlich die gesamten Projektkosten durch und lade Sie dazu in eines unserer Musterhäuser oder zu einer Onlinesitzung ein. Überzeugen Sie sich hier selber von der ausgezeichneten Scanhausqualität und dem Wohlfühlklima in unseren Häusern.
------------------------------------------------------------------------------------------------------------
ACHTUNG:
Musterhausbesichtigungen sind unter vorheriger Terminvereinbarung von Dienstags bis Samstags möglich. Alternativ können wir Sie auch gern telefonisch beraten.
Wir freuen uns auf Ihre Kontaktaufnahme!
Grundriss
gernerationenhaus-grundriss-sh
>
>
Adresse
61118 Bad Vilbel
Interessante Orte
Preis- und Lageinformationen
Preistrend für Bestandsimmobilien in Bad Vilbel