Dieses charmante, im Jahr 2022 renovierte 1-2 Familienhaus mit ca. 154 m² Wohnfläche und 352 m² Grundstücksfläche bietet gemütlichen Wohnraum für die ganze Familie. Das Haus verfügt über 8 Zimmer und 2 Badezimmer, eine moderne Gasheizung sowie eine hochwertige Ausstattung. Ein Gäste-WC, einen Keller, ein Nebengebäude und einen Waschmaschinenraum. Eine Scheune mit 4 Außenstellplätzen ist ebenfalls vorhanden. Das Haus ist ab dem 21.09.2025 bezugsfrei und freut sich auf neue Bewohner, die Wert auf Qualität und eine gepflegte, ruhige und kinderfreundliche Umgebung legen. Die Infrastruktur ist ideal, da die Anbindung zur A5 nur ein paar Minuten entfernt liegt. Busverbindungen vor der Tür, Restaurants, Lebensmittelmarkt, Bäcker, Kindergarten, Grundschule alles im Ort.
Das Haus hat derzeit 2 Wohnungen, unten sind es 68qm, die obere Wohnung ist über 2 Etagen verteilt. Es kann auch als 1-Familienhaus genutzt und sofort bezogen werden.
Kein Denkmalschutz. BITTE KEINE MAKLERANFRAGEN.
Gastherme oben von 2015
Gastherme unten von 2020
Gasleitung von 2013
Elektroleitungen von 2015
Wasserleitungen 2015
Alle Dächer neu gedeckt 2013-2015
Alle Fenster doppelverglast.
Gebäude ist gedämmt.
Zwei moderne Einbauküchen
Das Haus ist grundsaniert, trotzdem gibt es hier und da mal eine nicht ganz gerade Wand. Es ist kein NEUBAU!
Der Hof ist nicht saniert worden.
Zur Finanzierunsunterstützung kann eine Wohnung bewohnt und die andere vermietet werden. Auch die Scheune kann vermietet werden.
Liebevoll sanierte Hofreite in Bad Homburg Ober Erlenbach
61352 Bad Homburg vor der Höhe
Die vollständige Adresse der Immobilie erhalten Sie vom Anbieter.
Auf Karte anzeigen
Die vollständige Adresse der Immobilie erhalten Sie vom Anbieter.
Finanzierungszertifikat
In nur zwei Minuten zu Ihrem persönlichen Finanzierungszertifkat.
Infos
| Haustyp | Einfamilienhaus |
|---|---|
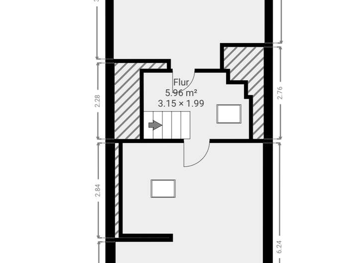
| Etagenzahl | 3 |
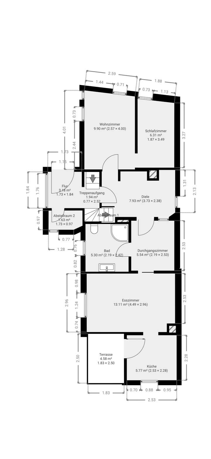
| Wohnfläche ca. | 154 m2 |
| Nutzfläche | 80 m2 |
| Grundstücksfläche | 352 m2 |
| Bezugsfrei ab | 21.9.2025 |
| Zimmer | 8 |
| Schlafzimmer | 3 |
| Badezimmer | 3 |
| Garage/Stellplatz | Außenstellplatz |
| Anzahl Garage/Stellplatz | 4 |
Kosten
| Kaufpreis |
629.000 € |
|---|---|
| Preis für Garage/Stellplatz | 629.000 € |
| Provision | Nein |
Finanzierungsrechner:
Kaufpreis:
600.000 €
Eigenkapital:
600.000 €
Monatliche Rate
0 €
Effektiver Jahreszins
0 %
Sollzinsbindung
10 Jahre
Bausubstanz & Energieausweis
| Baujahr | 1910 |
|---|---|
| Letzte Sanierung | 2022 |
| Bauphase | Haus fertig gestellt |
| Objektzustand | Saniert |
| Qualität der Austattung | Gehoben |
| Heizungsart | Gas-Heizung |
| Wesentliche Energieträger | Gas |
| Energieausweis | liegt zur Besichtigung vor |
Beschreibung des Objekts
Ausstattung
Fliesen in anthrazit, Laminat Wildeiche, 2 voll ausgestattete Küchen.
Bodentiefe Fenster im Wohnzimmer im Obergeschoss.
Je 1 Terrasse pro Wohneinheit.
Lage
Bad Homburg vor der Höhe, ein renommierter Kurort im Taunus, bietet eine exzellente Infrastruktur mit vielfältigen Einkaufsmöglichkeiten, Ärzten und Schulen. Die Anbindung an den öffentlichen Nahverkehr ist durch zahlreiche Buslinien und die Nähe zur S-Bahn gewährleistet, was schnelle Wege nach Frankfurt und in die Umgebung ermöglicht. Zahlreiche Parks und Grünflächen laden zu Erholung und Freizeitaktivitäten ein.
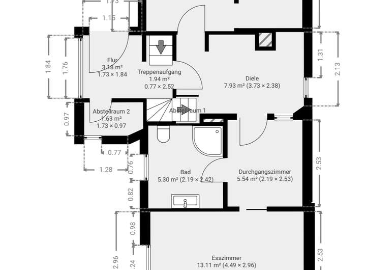
Grundriss
IMG_6414
>
>
IMG_6415
>
>
IMG_6416
>
>
Adresse
61352 Bad Homburg vor der Höhe
Interessante Orte
Preis- und Lageinformationen
Preistrend für Bestandsimmobilien in Bad Homburg vor der Höhe