Das Wohnkonzept unseres SH 102 Drempel ist auf insgesamt drei Zimmer ausgelegt.
Mit 101 m² Wohn- Und Nutzfläche zeigen wir Ihnen unseren kleinsten 1,5 Geschosser jedoch mit eine Drempelhöhe von 2 Metern! Mit dieser enormen Kniestockhöhe steht Ihnen einfach mehr Stellfläche im Obergeschoss zur Verfügung.
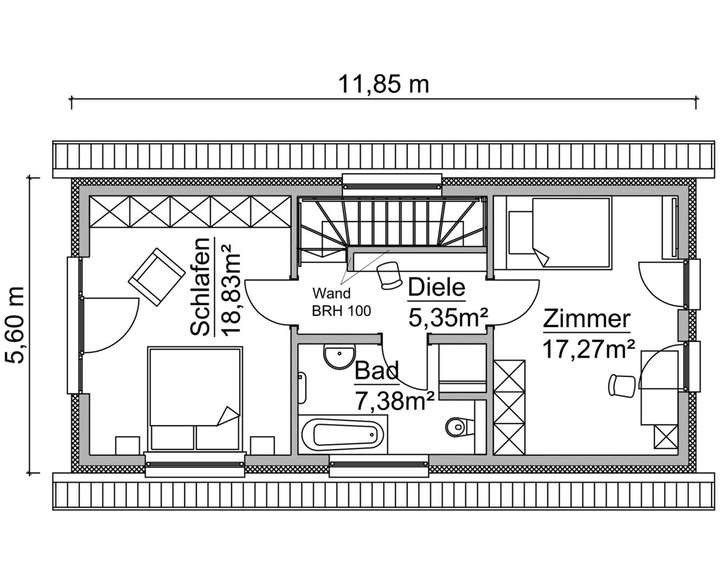
Zudem eignet sich dieses Haus insbesondere für schmal geschnittene Grundstücke mit seinen Außenmaßen von 11,85 x 5,6 Metern. Das Erdgeschoss beinhaltet einen offenem Wohn- und Essbereich mit Küche, Gäste-WC, Hauswirtschaftsraum und kleinem Absteller unterhalb der Treppe. Im Obergeschoss befinden sich das Schlafzimmer mit großer Fensterverglasung, ein weiters Zimmer, ein Vollbad und eine kleine Diele mit Platz für eine Schreibtischlösung - praktisch fürs Arbeiten nicht nur im Homeoffice.
Änderungen u.a. der Kubator, Grundrisse, Heizungsart oder der technischen Ausstattung sind selbstverständlich möglich.
Zum Leistungsumfang des Hauses gehört u.a eine Luft-Luft/Wasserwärmepumpe, eine Fußbodenheizung, die Bodenplatte und der Estrich in den Etagen. Selbstverständlich gilt bei Scanhaus: ERST BAUEN – DANN BEZAHLEN.
Nicht zum Leistungsumfang gehören ua eine Küche, Malerarbeiten im Innenbereich, Wand- und Bodenbeläge, sowie Spachtel- und Fugenarbeiten oder Hausanschlüsse.
Eigentum statt Miete: Charmantes Einfamilienhaus
63457 Hanau
Die vollständige Adresse der Immobilie erhalten Sie vom Anbieter.
Auf Karte anzeigen
Die vollständige Adresse der Immobilie erhalten Sie vom Anbieter.
Finanzierungszertifikat
In nur zwei Minuten zu Ihrem persönlichen Finanzierungszertifkat.
Infos
| Haustyp | Einfamilienhaus |
|---|---|
| Etagenzahl | 2 |
| Wohnfläche ca. | 101 m2 |
| Nutzfläche | 97,68 m2 |
| Grundstücksfläche | 400 m2 |
| Bezugsfrei ab | 2025 |
| Zimmer | 3 |
| Schlafzimmer | 2 |
| Badezimmer | 2 |
Kosten
| Kaufpreis |
555.700 € |
|---|---|
| Provision | Nein |
Finanzierungsrechner:
Kaufpreis:
600.000 €
Eigenkapital:
600.000 €
Monatliche Rate
0 €
Effektiver Jahreszins
0 %
Sollzinsbindung
10 Jahre
Bausubstanz & Energieausweis
| Baujahr | 2024 |
|---|---|
| Bauphase | Haus in Planung (projektiert) |
| Objektzustand | Erstbezug |
| Qualität der Austattung | Gehoben |
| Heizungsart | Fußbodenheizung |
| Wesentliche Energieträger | expose.parameter.energySourcesEnev2014.HEAT_SUPPLY |
| Energieausweis | liegt zur Besichtigung vor |
Beschreibung des Objekts
Ausstattung
Der Gesamtpreis setzt sich zusammen aus:
Hauspreis inkl. USt - SH 102 Drempel- 327.700,00€
(in unserer KFW 40-PV Ausführung)
und dem
Grundstück (externer Anbieter) - ca. 400m² - 228.000,00€
Gesamtpreis 555.700,00€
Zuzüglich Baunebenkosten (z.B. Notar- und Maklerkosten für den Grundstückskauf, Gründungskosten, Außenanlagen, Innenausbau, Küche)
Lage
Die Immobilie finden Sie im lebendigen Stadtteil Großnauheim. Nahe gelegen gibt es die Buslinien 566 und 6 und die Bahnlinien RB56, RB58 und RE59, die Sie mit regionalen und überregionalen Zielen verbinden. Zu Fuß erreichen Sie ein paar Restaurants, Supermärkte, Cafés und zwei Bäckereien. Einige Fitnessstudios, Modegeschäfte, zwei Grün- und Parkanlagen, eine Bar und eine Bibliothek finden Sie ebenfalls vor Ort.
Sonstige Angaben
Gerne gehe ich mit Ihnen persönlich die gesamten Projektkosten durch und lade Sie dazu in eines unserer Musterhäuser oder zu einer Onlinesitzung ein. Überzeugen Sie sich hier selber von der ausgezeichneten Scanhausqualität und dem Wohlfühlklima in unseren Häusern.
------------------------------------------------------------------------------------------------------------
ACHTUNG:
Musterhausbesichtigungen sind unter vorheriger Terminvereinbarung von Dienstags bis Samstags möglich. Alternativ können wir Sie auch gern telefonisch beraten.
Wir freuen uns auf Ihre Kontaktaufnahme!
Grundriss
geschosser-grundriss-sh102-d-d
>
>
geschosser-grundriss-sh-102-d-
>
>
Adresse
63457 Hanau
Interessante Orte
Preis- und Lageinformationen
Preistrend für Bestandsimmobilien in Hanau