Willkommen in Ihrem neuen Zuhause!
Das Einfamilienhaus in Parsau ist ein charmantes Fertighaus in Bungalow-Stil mit einer Wohnfläche von 141 m² und zusätzlichen 141 m² Nutzfläche im Vollkeller. Es befindet sich auf einem gepflegten und großzügigen Grundstück mit einer Fläche von 1067 m².
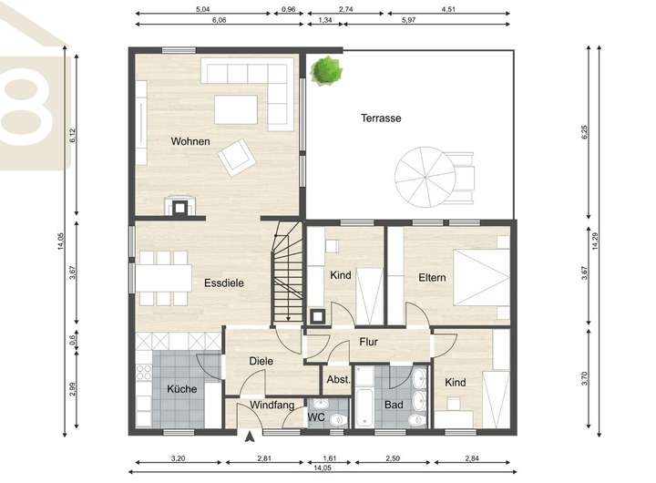
*Erdgeschoss*
Das Erdgeschoss des Hauses bietet einen einladenden Windfang, ein Gäste-WC und eine geräumige Essdiele mit stilvollen Einbauschränken. Die Küche ist mit einer älteren Einbauküche ausgestattet und das Wohnzimmer verfügt über einen gemütlichen Kaminofen sowie Zugang zur schönen Eckterrasse. Ein Zwischenflur führt in den Schlaftrakt des Hauses, der ein Elternschlafzimmer, das erste Kinderzimmer, das zweite Kinderzimmer, einen Abstellraum und ein Badezimmer mit Badewanne, Dusche und Fenster umfasst.
*Keller*
Der Vollkeller des Hauses bietet 4 Räume, wovon einer als Wohnraum mit Heizung ausgebaut ist und als Gäste- oder Arbeitszimmer genutzt werden kann. Ein weiteres Badezimmer mit Dusche, der Heizungsraum mit Ölheizung und der Hauswirtschaftsraum vervollständigen den Kellerbereich.
*Garten*
Der gepflegte und großzügige Garten der Immobilie verfügt über eine Teichanlage, eine Brücke und einen Pavillon für angenehme Schattenplätze. Ein Doppelcarport bietet Platz für Fahrzeuge
Mit seiner durchdachten Raumaufteilung, dem gepflegten Garten und den vielseitigen Nutzungsmöglichkeiten ist dieses Einfamilienhaus in Parsau ein wahres Traumobjekt für alle, die ein komfortables und gemütliches Zuhause suchen. Das Haus ist ideal für altersgerechtes Wohnen oder für Familien geeignet.
Vereinbaren Sie doch gleich einen Besichtigungstermin um Ihr neues Zuhause persönlich kennen zu lernen.
Unterkellerter Bungalow mit großem Grundstück und Doppelcarport in Parsau! Mein Haus = Mein Makler!
38470 Parsau
Die vollständige Adresse der Immobilie erhalten Sie vom Anbieter.
Auf Karte anzeigen
Die vollständige Adresse der Immobilie erhalten Sie vom Anbieter.
Finanzierungszertifikat
In nur zwei Minuten zu Ihrem persönlichen Finanzierungszertifkat.
Infos
| Haustyp | Einfamilienhaus |
|---|---|
| Etagenzahl | 0 |
| Wohnfläche ca. | 141 m2 |
| Nutzfläche | 141 m2 |
| Grundstücksfläche | 1.067 m2 |
| Bezugsfrei ab | sofort |
| Zimmer | 4 |
| Schlafzimmer | 3 |
| Badezimmer | 1 |
| Garage/Stellplatz | Carport |
| Anzahl Garage/Stellplatz | 2 |
Kosten
| Kaufpreis |
175.000 € |
|---|---|
| Provision |
Je 2,58 % inkl. USt.Die Provision ist mit der Beurkundung verdient & vom Käufer+Verkäufer zu zahlen. |
Finanzierungsrechner:
Kaufpreis:
600.000 €
Eigenkapital:
600.000 €
Monatliche Rate
0 €
Effektiver Jahreszins
0 %
Sollzinsbindung
10 Jahre
Bausubstanz & Energieausweis
| Baujahr | 1982 |
|---|---|
| Bauphase | Haus fertig gestellt |
| Objektzustand | Gepflegt |
| Qualität der Austattung | Normal |
| Heizungsart | Öl-Heizung |
| Wesentliche Energieträger | Öl |
| Energieausweis | liegt zur Besichtigung vor |
Beschreibung des Objekts
Ausstattung
- Wohnfläche: 141 m²
- Nutzfläche im Vollkeller: 141 m²
- Grundstücksgröße: 1067 m²
- 4 Zimmer im Erdgeschoss
- 4 Räume im Vollkeller (einer als Wohnraum nutzbar), Badezimmer, Heizungsraum, Hauswirtschaftsraum
- insgesamt 2 Badezimmer plus Gäste-WC
- Besondere Merkmale: Kaminofen im Wohnzimmer, Eckterrasse, Teichanlage im Garten, Pavillon, Doppelcarport
- Geeignet für: Altersgerechtes Wohnen, Familien
Lage
Die Gemeinde Parsau gehörte ab 1972 zur Samtgemeinde Rühen. Im selben Jahr kam sie vom Landkreis Helmstedt zum Landkreis Gifhorn. Am 1. März 1974 wurde die Samtgemeinde Rühen aufgelöst. Am 15. März 1974 wurde die Gemeinde Parsau Teil der Samtgemeinde Brome.
Direkt im Ort gibt es einen Kindergarten, Grundschule, Kiosk, Kirchen, Arzt und Bio- Lebensmittel
In den umliegenden Nachbarorten befinden sich diverse Supermärkte und alles, was für den täglichen Bedarf benötigt wird.
Sie haben die Möglichkeit die Annehmlichkeiten der Stadt Wolfsburg / Gifhorn zu nutzen und gleichzeitig die Vorzüge der Natur zu genießen
Auch Busverbindung stündlich besteht nach Wolfsburg
Die Anbindung ist an eine Schnellstraße optimal. Man kann die Stadt Wolfsburg in einer 10-15 Minuten mit dem Auto erreichen.
Sonstige Angaben
Gerne laden wir Sie zu einer Besichtigung ein, um Ihnen vielleicht Ihr neues Zuhause bekannt zu machen. Bei Interesse und zur Vereinbarung von Besichtigungsterminen setzen Sie sich bitte mit uns über das Kontaktformular in Verbindung. Bitte geben Sie hierbei Ihre vollständige Kontaktadresse an. Unvollständige Anfragen werden nicht bearbeitet.
Unser Angebot ist nur für den Empfänger bestimmt. Bei Weitergabe an Dritte - auch auszugsweise - haftet der weitergebende für unsere Courtage. Da die in diesem Exposé enthaltenen Angaben auf Informationen des Eigentümers beruhen, können wir für die Richtigkeit trotz aller Sorgfalt keine Gewähr übernehmen. Mit dem Zugang dieses Angebotes kommt ein Maklervertrag zustande. Wird von unserem Angebot Gebrauch gemacht und das Objekt erworben, zahlt der Käufer an uns die für das Objekt ausgewiesene Courtage. Die Courtage ist mit dem Abschluss des Kaufvertrags verdient und zur Zahlung fällig. Als Gerichtsstand gilt Wolfsburg als vereinbart.
Weitere Dokumente
DatenschutzhinweiseKostenfreie Wertermittlung
Zertifikate
Grundriss
Grundriss Kellergeschoss
>
>
Grundriss Erdgeschoss
>
>
Adresse
38470 Parsau
Interessante Orte
Preis- und Lageinformationen
Preistrend für Bestandsimmobilien in Parsau