Angeboten wird ein bereits projektiertes Grundstück mit ca. 1.671 m² für die Realisierung von 30 Wohneinheiten mit jeweils 1 Zimmer und einer Gesamtwohnfläche von ca. 785,62 m². Die Baugenehmigung wurde bereits erteilt, sodass sofort mit dem Baubeginn gestartet werden kann. Die 30 Wohneinheiten haben eine Wohnfläche zwischen ca. 24 m² - 37 m², einen Balkon oder eine Terrasse, einen Fahrradstellplatz und einen Kellerraum. Ebenfalls hervorzuheben sind 4 Wohneinheiten, die extra rollstuhlgerechte geplant wurden.
Das Wohngebäude bietet Gemeinschaftsräume wie eine Waschküche, einen Fahrradkeller und einen gemeinschaftlichen Abstellraum was somit zusätzliche Annehmlichkeiten für die Bewohner bietet.
Auf dem Grundstück befindet sich derzeit noch ein Altbestand, der vor Baubeginn abgerissen werden muss. Der Mieter des Altbestands muss ebenfalls gekündigt werden.
Die Lage des projektierten Grundstücks ist sehr attraktiv im Westen Oldenburgs und nur 5 Minuten mit dem Fahrrad von der Uni entfernt. Zum Oldenburger Bahnhof benötigt man mit dem Fahrrad nur 14 Minuten. Somit bietet es den Bewohnern alle Vorzüge einer urbanen Umgebung sowie die Ruhe eines ruhigen Wohngebiets.
Gelegenheit! Bereits projektiertes Grundstück für 30 Single-Apartments und 19 Stellplätze in OL
26129 Oldenburg (Oldenburg)
Die vollständige Adresse der Immobilie erhalten Sie vom Anbieter.
Auf Karte anzeigen
Die vollständige Adresse der Immobilie erhalten Sie vom Anbieter.
Finanzierungszertifikat
In nur zwei Minuten zu Ihrem persönlichen Finanzierungszertifkat.
Infos
| Haustyp | Mehrfamilienhaus |
|---|---|
| Wohnfläche ca. | 785 m2 |
| Grundstücksfläche | 1.671 m2 |
| Zimmer | 30 |
| Badezimmer | 30 |
| Garage/Stellplatz | Außenstellplatz |
| Anzahl Garage/Stellplatz | 19 |
Kosten
| Kaufpreis |
1.190.000 € |
|---|---|
| Provision |
5,95% inkl. 19% MwSt. des beurkundeten Kaufpreises. |
Finanzierungsrechner:
Kaufpreis:
600.000 €
Eigenkapital:
600.000 €
Monatliche Rate
0 €
Effektiver Jahreszins
0 %
Sollzinsbindung
10 Jahre
Bausubstanz & Energieausweis
| Baujahr | unbekannt |
|---|---|
| Heizungsart | Wärmepumpe |
Beschreibung des Objekts
Ausstattung
- Waschküche
- Trockenraum
- Abstellraum - Allgemein
- Fahrradabstellräume
- Außenstellplätze
- Keller
- Balkone
- Terrassen
Lage
Die Immobilie liegt recht zentral im Westen Oldenburgs im Stadtteil Bloherfelde und ist nur ca. 20 Gehminuten von der Universität entfernt. Oldenburg bietet sämtliche Einrichtungen zur Deckung des täglichen Bedarfs und der Bloherfelde Wochenmarkt (Mittwoch & Freitag jeweils von 7:00 bis 13:00 Uhr) ist nur 2 Gehminuten entfernt. Darüber hinaus gibt es in unmittelbarer Nähe Bäcker, Banken, Ärzte, Apotheken, Schulen und Kindergärten. Ebenfalls in der Nähe und nur jeweils ca. 10 Gehminuten entfernt ist der Kennedyteich und das Hallenbad Eversten.
Die Autobahnauffahrt der A 28 ist nur 6 Minuten mit dem Auto entfernt. Ebenfalls gut ist die Anbindung an den öffentlichen Personennahverkehr (ÖPNV), die Haltestellen der Linien 309 und 324 sind in wenigen Gehminuten erreicht und der Oldenburger Bahnhof ist nur ein paar Haltestellen entfernt oder in ca. 14 Minuten mit dem Fahrrad erreicht.
Sonstige Angaben
Gerne stehen wir Ihnen für weitere Auskünfte und für die Vereinbarung eines Besichtigungstermins zur Verfügung.
Objektnummer: 3005
Um Ihre Anfrage schnellstmöglich bearbeiten zu können, bitten wir Sie Ihre vollständigen Kontaktdaten mit anzugeben. Vielen Dank.
HBV-Immobilien haftet nicht und gibt auch keine Gewähr für die Richtigkeit oder Aktualität der Informationen über das Auftragsobjekt, welche vom Auftraggeber oder Dritten zur Verfügung gestellt wurden. Änderungen, Irrtum und Zwischenverkauf vorbehalten.
Mit der Inanspruchnahme unserer Maklerleistungen, einschließlich der Anforderung eines Exposés, schließt der Interessent einen Maklerauftrag mit HBV-Immobilien e.K., Bremer Str. 64, 27749 Delmenhorst. Der Käufer zahlt nach Beurkundung des gewünschten Grundstückskaufvertrags, eine Käuferprovision in Höhe von 5,95% inkl. 19% MwSt. des notariell beurkundeten Kaufpreises.
Grundriss
Erdgeschoss
>
>
Obergeschoss
>
>
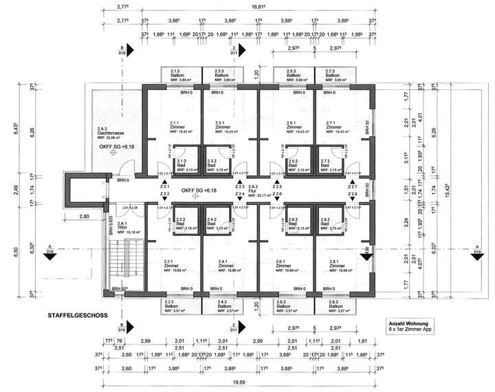
Staffelgeschoss
>
>
Kellergeschoss
>
>
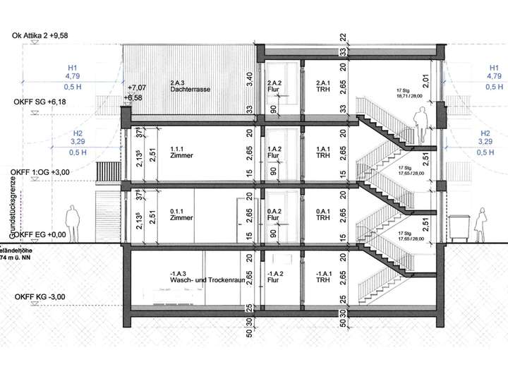
Schnitt A
>
>
Schnitt B
>
>
Adresse
26129 Oldenburg (Oldenburg)
Interessante Orte
Preis- und Lageinformationen
Preistrend für Bestandsimmobilien in Bloherfelde