Fantastisches 3-4 Fam-Haus in Egelsbach
Über 330 m² feinste Wohnfläche werden sowohl die Anlegerherzen als auch eine Großfamilie als Selbstnutzer erfreuen. Denn die Hauptwohnung als eine Art Haus im Haus mit 130 m² Wfl, Wellness-Bereich im Souterrain und angrenzendem Garten wäre auch für jede Familie hochinteressant. Für € 795.000.- inkl. Garage eine sehr gute Gelegenheit.
Fantastisches 3-4 Fam-Haus in Egelsbach
63329 Egelsbach
Die vollständige Adresse der Immobilie erhalten Sie vom Anbieter.
Auf Karte anzeigen
Die vollständige Adresse der Immobilie erhalten Sie vom Anbieter.
Finanzierungszertifikat
In nur zwei Minuten zu Ihrem persönlichen Finanzierungszertifkat.
Infos
| Haustyp | Mehrfamilienhaus |
|---|---|
| Wohnfläche ca. | 330 m2 |
| Nutzfläche | 50 m2 |
| Grundstücksfläche | 360 m2 |
| Zimmer | 12 |
| Garage/Stellplatz | Garage |
Kosten
| Kaufpreis |
795.000 € |
|---|---|
| Provision |
5,95 % Käuferprovision 5,95% (inkl. 19% MwSt) Käuferprovision, verdient und fällig mit Beurkundung des notariellen Kaufvertrages. |
| Mieteinnahmen | 3.347 € |
Finanzierungsrechner:
Kaufpreis:
600.000 €
Eigenkapital:
600.000 €
Monatliche Rate
0 €
Effektiver Jahreszins
0 %
Sollzinsbindung
10 Jahre
Bausubstanz & Energieausweis
| Baujahr | 1977 |
|---|---|
| Letzte Sanierung | 2016 |
| Bauphase | Haus fertig gestellt |
| Objektzustand | Gepflegt |
| Qualität der Austattung | Normal |
| Heizungsart | Zentralheizung |
| Wesentliche Energieträger | Gas |
| Energieausweis | liegt zur Besichtigung vor |
Beschreibung des Objekts
Ausstattung
- zentrale Stadtlage
- sehr gepflegt
- 3 EBK´s
- offener Kamin
- Sauna mit Dusche
- teilweise Fußbodenheizung
- neuere Dacheindeckung 2007
- Dachausbau für 4. Wohnung 2016
- Jahresnettomiete € 40.164.- (weiteres Mietsteigerungspotential von 15%)
- Garage
Lage
Egelsbach...
... liegt inmitten des Stästedreiecks Frankfurt-Offenbach-Darmstadt.
Mit vielen Freizeitmöglichkeiten wie z.B. Jet-Segelflugplatz und zahlreichen Sportvereinen, lockt diese Stadt seine Abwohner. Der S-Bahn Anschluss Darmstadt/Frankfurt ist eine schnelle, stressfreie Alternative zum PKW. Wer auf sein Auto nicht verzichten möchte, hat direkten Anschluss zur A 5 und A 661.
Egelsbach hat ca. 10.000 Einwohner.
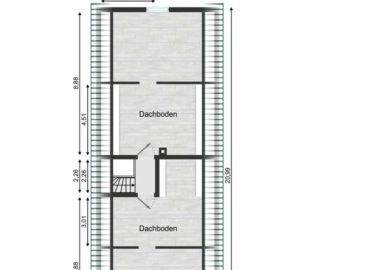
Grundriss
Grundriss Kellergeschoss
>
>
Grundriss Erdgeschoss
>
>
Grundriss 1. Obergeschoss
>
>
Grundriss Dachgeschoss
>
>
Adresse
63329 Egelsbach
Interessante Orte
Preis- und Lageinformationen
Preistrend für Bestandsimmobilien in Egelsbach