Zwei Wohnungen unter einem Dach
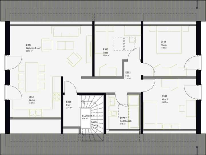
Mit der Option "Einliegerwohnung im DG" bietet das attraktive Mehrgenerationenhaus FamilyStyle 21.01 S auf insgesamt ca. 216 m² Nettogrundfläche genügend Raum für zwei getrennte Haushalte unter einem Dach. Die mit ca. 97 m² sehr großzügig angelegte Dachgeschosswohnung umfasst dabei nicht nur zwei Schlaf- und ein Gast-/Arbeitszimmer sowie ein zentrales Bad, sondern glänzt darüber hinaus auch mit einem einladend offenen Wohn-, Ess- und Küchenbereich. Auf einer Nettogrundfläche von ca. 117 m² präsentiert sich die Erdgeschosswohnung noch weitläufiger: Im Anschluss an den zentralen Eingangsbereich mit Hauswirtschaftsraum und separatem Aufgang zum ersten Stock öffnet sich der helle, seitlich bodentief verglaste Wohn-Essbereich, der über Eck nahtlos in die Küche übergeht. Rechterhand verbindet ein langer Flur die beiden Kinder- und das Elternzimmer mit Bad, Dusche und WC.
Zwei Generationen unter einem Dach? massa haus hat die Lösung!
35619 Braunfels
Die vollständige Adresse der Immobilie erhalten Sie vom Anbieter.
Auf Karte anzeigen
Die vollständige Adresse der Immobilie erhalten Sie vom Anbieter.
Finanzierungszertifikat
In nur zwei Minuten zu Ihrem persönlichen Finanzierungszertifkat.
Infos
| Wohnfläche ca. | 216 m2 |
|---|---|
| Grundstücksfläche | 500 m2 |
| Zimmer | 8 |
Kosten
| Kaufpreis |
410.000 € |
|---|---|
| Provision | Nein |
Finanzierungsrechner:
Kaufpreis:
600.000 €
Eigenkapital:
600.000 €
Monatliche Rate
0 €
Effektiver Jahreszins
0 %
Sollzinsbindung
10 Jahre
Bausubstanz & Energieausweis
| Baujahr | unbekannt |
|---|
Beschreibung des Objekts
Ausstattung
Sie können dieses Haus als reines AUSBAUHAUS zum "selbst ausbauen" oder als "fast schlüsselfertig" erwerben. Wir erstellen Ihnen ein detailliertes und individuelles Angebot und berücksichtigen dabei exakt Ihre persönlichen Wünsche! Dabei achten wir auf eine faire und realistische Kalkulation und eine umfassende Beratung. Wir nehmen uns Zeit für Sie!
Bereits im Kaufpreis enthalten:
- KFW 55 Effizienzhaus
- Architektenleistung
- Bodenplatte inkl. Baugrunduntersuchung
- Klima-Plus Wände
- hochwertiges Pfettendach
- selbstreinigende Dachziegel
- Dachrinnen und Fallrohre aus Titanzink
- Dreifachverglaste Fenster für energiebewusstes Wohnen
- Aluminium Außenfensterbänke
- Aluminium Rollläden
- Moderne Haustür in massiver Ausführung mit Edelstahlgriff und Mehrfach -Sicherheitsverriegelung
- Aussenputz
- Buche-Echtholztreppe in verschiedenen Design-Varianten
- Elektro
- Sanitär
- Luft-Wasser Wärmepumpe mit Fußbodenheizung
- integrierte kontrollierte Be- und Entlüftungsanlage mit Wärmerückgewinnung
- Material Dämmung und Beplankung
- Estrich
- Innentüren
- Material für Wand- und Bodenbeläge
- Blower Door Test
- Versicherung während der Bauphase
- Keller gegen Aufpreis möglich
- zuzüglich Grundstück
- zuzüglich Endausbau
- zuzüglich Baunebenkosten
Lage
Da Grundstücke Tagesgeschäft sind und wir keine eigenen Grundstücke besitzen werden Grundstücke immer mit dem Kunden individuell gesucht.
Bitte haben Sie Verständnis dafür, dass wir aufgrund der aktuell sehr angespannten Situation am Grundstücksmarkt vorab keine Adressen von Bauplätzen kommunizieren können.
Die Unterstützung bei der Grundstückssuche erfolgt ausschließlich für meine Kunden.
Anfragen zu Grundstücken werden nicht beantwortet
Sonstige Angaben
Deutschland´s meistverkaufte Ausbauhäuser
- 45 Jahre Bauerfahrung
- 15 Monate Festpreisgarantie
- Bezahlung des Hauses nach Montage / Abnahme - keine Vorauszahlung
- Montage innerhalb von 2-4 Tagen
- persönliche Baubetreuung
- 33 Jahre Gewährleistung auf Grundkonstruktion
- Nachweislich gesundes Bauen: TÜV Siegel "Toxproof"
- Sicherheit von einem deutschen Großunternehmen
- über 40.000 Häuser "Made in Germany"
Fragen zur Finanzierung?
Unser Finanzpartner berät Sie gerne.
Haben wir Ihr Interesse geweckt?
Legen Sie auch Wert auf eine ausführliche und kompetente Beratung?
Dann rufen Sie jetzt an und nutzen unseren kostenlosen Beratungsservice unter:
Tania Stern
06045 - 952780
0152 - 53636089
* Die hier gezeigten Fotos sind originale Aufnahmen und dienen als Beispiel. Sie stammen aus bereits gebauten massa haus - Musterhäusern. Die Hausansichten sind teilweise mit Sonderausstattungen, die nicht zum Angebot gehören aber gerne geplant werden können.
Wichtiger Hinweis: Die Objektangaben wurden nach bestem Wissen und Gewissen erstellt. Grundlage der vorstehenden Angaben sind Informationen, welche uns seitens Dritter zur Verfügung gestellt worden. Eine Gewähr für die Richtigkeit der Angaben kann daher nicht übernommen werden. Irrtum und Zwischenverkauf vorbehalten.
Grundriss
EG Grundriss veränderbar
>
>
OG Grundriss veränderbar
>
>
EG Grundriss veränderbar
>
>
OG Grundriss veränderbar
>
>
Adresse
35619 Braunfels
Interessante Orte
Preis- und Lageinformationen
Preistrend für Bestandsimmobilien in Braunfels