Dieses gepflegte Einfamilienhaus wartet auf seinen neuen Besitzer.
Wenn sie die Vorteile der Stadt schätzen und gleichzeitig im Grünen leben möchten, ist diese Immobilie genau das Richtige! Diese befindet sich am Ende einer ruhigen Straße im Süden von Bad Kreuznach. Besonders herauszuheben ist die attraktive Lage am Waldrand.
Auf 155m² Wohnfläche und drei Etagen finden Sie viel Potential um sich ihr neues Zuhause zu schaffen.
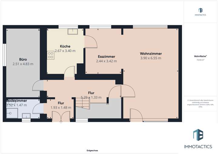
Im Erdgeschoss befindet sich direkt am Windfang ein Gästebad mit ebenerdiger Dusche, welches 2010 erneuert wurde. Über den Flur gelangen Sie in ein Zimmer, welches z.B. als Arbeits- oder Gästezimmer genutzt werden kann.
Die Küche ist ein geschlossener Raum, verfügt jedoch über direkten Zugang zum Esszimmer welches an das großzügige Wohnzimmer mit 26m² anschließt.
Auf dieser Etage stehen Ihnen ein Badezimmer sowie Wohn- und Schlafraum zur Verfügung, wodurch komfortables Wohnen auf einer Ebene, auch im Alter, problemlos möglich ist.
Besonders ansprechend ist die teilüberdachte Terrasse mit Blick auf das idyllische Gartengrundstück mit einer beindruckenden Größe von 1.902m² . Hier genießen Sie Ruhe im Grünen und einen ansprechenden Blick über die Stadt. Auf mehreren Ebenen können Sie hier die Gartenfläche bewirtschaften und die Ernte der Streuobstwiese genießen.
Über das helle Treppenhaus gelangen Sie in das Dachgeschoss. Dieses bietet drei gemütliche Schlafzimmer und ein Badezimmer mit Badewanne. Die ehemalige Loggia wurde mit Fenstern geschlossen und kann ebenso als lichtdurchfluteter Wohnraum genutzt werden.
An das größte der Zimmer mit 22m² schließt ein gemütlicher Balkon mit Ausblick ins Grüne an. Hier genießen Sie die Abendsonne über Bad Kreuznach.
Die Immobilie ist komplett unterkellert. Im Untergeschoss befinden sich daher mehrere Keller-/Lagerräume mit Tageslicht, welche viel Stauraum bieten. Einer der Räume verfügt über ein Duschbad und eignet sich somit als Gästetrakt. Ein großes Fenster sorgt hier für viel Licht.
Angelehnt an die Nachbarschaftsbebauung könnte der Garten auch als Bauland genutzt werden. Diese Möglichkeit erläutern wir Ihnen gerne im persönlichen Gespräch.
Zum Grundstück gehört eine Garage mit Stellplatz. Weitere Parkmöglichkeiten befinden sich auf der Straße.
Diese Immobilie beinhaltet viel Potential und verschiedenste Nutzungsmöglichkeiten in bester Lage von Bad Kreuznach. Vereinbaren Sie noch heute einen Besichtigungstermin!
Einfamilienhaus in begehrter Stadtrandlage von Bad Kreuznach-Süd inkl. Grundstück mit Potential
55543 Bad Kreuznach
Die vollständige Adresse der Immobilie erhalten Sie vom Anbieter.
Auf Karte anzeigen
Die vollständige Adresse der Immobilie erhalten Sie vom Anbieter.
Finanzierungszertifikat
In nur zwei Minuten zu Ihrem persönlichen Finanzierungszertifkat.
Infos
| Haustyp | Einfamilienhaus |
|---|---|
| Etagenzahl | 3 |
| Wohnfläche ca. | 155 m2 |
| Grundstücksfläche | 1.902 m2 |
| Bezugsfrei ab | sofort |
| Zimmer | 7 |
| Schlafzimmer | 5 |
| Badezimmer | 2 |
| Garage/Stellplatz | Garage |
| Anzahl Garage/Stellplatz | 2 |
Kosten
| Kaufpreis |
445.000 € |
|---|---|
| Provision |
3,57% inklusive gesetzlicher Umsatzsteuer |
Finanzierungsrechner:
Kaufpreis:
600.000 €
Eigenkapital:
600.000 €
Monatliche Rate
0 €
Effektiver Jahreszins
0 %
Sollzinsbindung
10 Jahre
Bausubstanz & Energieausweis
| Baujahr | 1967 |
|---|---|
| Letzte Sanierung | 2014 |
| Bauphase | Haus fertig gestellt |
| Objektzustand | Gepflegt |
| Qualität der Austattung | Normal |
| Heizungsart | Zentralheizung |
| Wesentliche Energieträger | Öl |
| Energieausweis | liegt vor |
| Energieausweistyp | Bedarfsausweis |
| Energieverbrauchskennwert | 207,4 kWh/(m²*a) |
| Energieeffizienzklasse | G |
207,4
kWh/(m²*a)
Energieeffizienzklasse G
- A+
- A
- B
- C
- D
- E
- F
- G
- H
- 0
- 25
- 50
- 75
- 100
- 125
- 150
- 175
- 200
- 225
- >250
Beschreibung des Objekts
Ausstattung
- Massive Bauweise
- Fenster Kunststoff ISO-Glas (2014-2017), teilweise 3-fach verglast
- Haustür (2010)
- Öl Zentralheizung (2003, Niederbrennwertgerät)
- Gästebad mit ebenerdiger Dusche (2010)
- Dusche, Badewanne
- Überdachte Terrasse
- großes begrüntes Gartengrundstück
- Garage
Lage
Diese Immobilie befindet sich im Süden von Bad Kreuznach; am Ende einer ruhigen Straße am Waldrand.
Bad Kreuznach ist eine moderne Kurstadt mit perfekter Anbindung an das Rhein-Main-Gebiet.
Neben deutschlandweit bekannten Kureinrichtungen wie den Salinen, Solebädern und dem Radonstollen bietet die Infrastruktur alles was das Herz begehrt.
Schulische und ärztliche Einrichtungen, Hauptbahnhof, Autobahnanschlüsse, Einkaufspassagen, akademische Lehrstätten - alles steht zur Verfügung.
Sie erreichen von Bad Kreuznach das gesamte Rhein-Main-Gebiet über die Autobahn, ebenso Mannheim, Koblenz und Köln.
Trotz der Nähe zu Frankfurt genießen Sie frei von Fluglärm das Leben in Bad Kreuznach.
Mit über 50.000 Einwohnern bietet Bad Kreuznach ein unschlagbares Preis-/Leistungsangebot für das Sie in der nur 20 Autominuten entfernten Landeshauptstadt ein ganzes Stück mehr zahlen müssten.
Sonstige Angaben
Die in unserem Exposé enthaltenen Aussagen basieren ausschließlich auf Informationen, die uns vom Verkäufer und von Handwerkern zur Verfügung gestellt wurden.
Wir übernehmen daher keine Gewähr für die Vollständigkeit und Richtigkeit der Angaben.
Das Immobilienangebot ist freibleibend.
Irrtum und Zwischenverkauf bleiben vorbehalten.
Weitere Details zum Objekt erläutern wir Ihnen gerne bei einem Besichtigungstermin.
Wir bitten um Ihr Verständnis dafür, dass wir nur Anfragen mit vollständigen Adressdaten inklusive Vor- und Zuname, Anschrift, Telefon-/Mobilnummer und Email Adresse bearbeiten können.
Sie suchen nach der passenden Finanzierung? Wir finden sie!
Als ungebundene Finanzierungsvermittler vergleichen wir über 900 Banken und finden einen optimalen Kredit für Sie.
Sparen Sie Geld und Zeit! Mit Sicherheit günstiger als Ihre Hausbank.
Fragen Sie uns kostenfrei und unverbindlich an!
Wir freuen uns auf den Kontakt zu Ihnen:
Immotactics GmbH
0671 – 20272030
info@immotactics.de
Grundriss
Grundriss EG
>
>
Grundriss 1. OG
>
>
Grundriss Keller
>
>
Adresse
55543 Bad Kreuznach
Interessante Orte
Preis- und Lageinformationen
Preistrend für Bestandsimmobilien in Bad Kreuznach