In einer der schönsten Lagen an der Elbchaussee wurde im Jahr 1928 diese schlossähnliche Villa von den Architekten Elingius und Schramm für die Familie Sieveking erbaut. Das 10.940 m² große Grundstück befindet sich auf einem Teil des Geländes der seinerzeit bekannten und im Jahr 1795 gegründeten Baumschule James Booth & Söhne. Auf dem Anwesen steht noch eine große Anzahl von seltenen und wertvollen Bäumen.
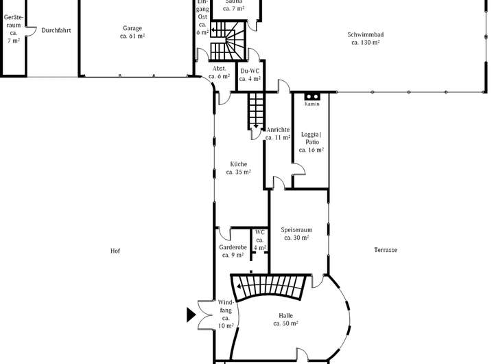
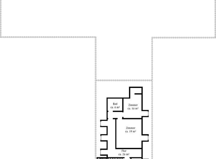
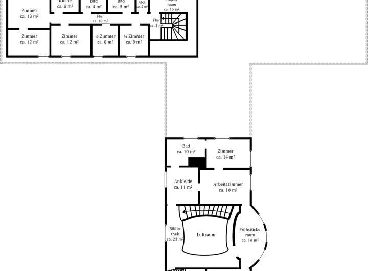
Das äußere Erscheinungsbild dieses Landsitzes an der Elbe hat eine klassische Formsprache und ist Zeugnis hanseatischer Baukultur zu Anfang des 20. Jahrhunderts. Eine lange Auffahrt führt am Seitentrakt des Gebäudes vorbei zu dem eigenen Innenhof mit mehreren Stellplätzen und drei Garagen. 1960 wurde das Hauptgebäude nach den Plänen des Architekten Pinnau modernisiert und um den Seitentrakt erweitert. Durch die großzügige Architektur hat die Villa eine Wohnfläche von ca. 600 m² und zusätzlich eine Nutzfläche von ca. 300 m². Von der hellen mit Marmor belegten Halle, von dem Kaminzimmer und von dem Speiseraum aus, genießt man einen wunderschönen Blick in den nach Süden zur Elbe ausgerichteten weitläufigen Park. Der ehemalige Angestelltentrakt über den Garagen bietet neben den Zimmern im Hauptgebäude viel Platz, um Familienangehörige sowie zahlreiche Gäste unterbringen zu können. Das große Schwimmbad im Seitentrakt der Villa lässt auch eine anderweitige Nutzung zu. Diese Immobilie bedarf einer Sanierung und kann daher von dem zukünftigen Eigentümer nach seinem persönlichen Stil gestaltet werden.
In der heutigen Zeit bietet dieses parkartige  Anwesen eine ungestörte Privatsphäre insbesondere durch den hochwertigen Busch -und Baumbestand, der einen besonderen Sichtschutz zu allen Seiten gewährt.
Eine solche einzigartige Atmosphäre - inmitten einer Großstadt - ist kaum anderswo zu finden.
            
        Anwesen im Park
                     22605 Hamburg                            
Die vollständige Adresse der Immobilie erhalten Sie vom Anbieter.
        
            
            Auf Karte anzeigen
        
        Die vollständige Adresse der Immobilie erhalten Sie vom Anbieter.
    Finanzierungszertifikat
In nur zwei Minuten zu Ihrem persönlichen Finanzierungszertifkat.
Infos
| Haustyp | Villa | 
|---|---|
| Wohnfläche ca. | 600 m2 | 
| Nutzfläche | 300 m2 | 
| Grundstücksfläche | 10.940 m2 | 
| Zimmer | 15 | 
Kosten
| Kaufpreis | 
                11.500.000 € | 
        
|---|---|
| Provision | 
                            3 % inkl. 19 % ges. MwSt. | 
    
Finanzierungsrechner:
                    
                     Kaufpreis:
                        
                            600.000 €
                        
                    
                    
                    
                
            
                        
                            Eigenkapital:
                            
                                 600.000 €
                            
                        
                    
                
            
                        Monatliche Rate
                        0 €
                    
                    
                        
                            Effektiver Jahreszins
                        
                        0 %
                    
                    
                        Sollzinsbindung
                        10 Jahre
                    
                Bausubstanz & Energieausweis
| Baujahr | 1928 | 
|---|---|
| Wesentliche Energieträger | Öl | 
| Energieausweis | liegt vor | 
| Energieausweistyp | Bedarfsausweis | 
| Energieverbrauchskennwert | 350,0 kWh/(m²*a) | 
| Energieeffizienzklasse | H | 
                                                    350,0
                                kWh/(m²*a)
                                                
                    Energieeffizienzklasse H
- A+
 - A
 - B
 - C
 - D
 - E
 - F
 - G
 - H
 
- 0
 - 25
 - 50
 - 75
 - 100
 - 125
 - 150
 - 175
 - 200
 - 225
 - >250
 
Beschreibung des Objekts
Lage
                Die Geschichte der Elbchaussee reicht über 250 Jahre zurück. Die Elbchaussee zählt zu den schönsten Straßen der Welt. In ihren Glanzzeiten war die Elbchaussee Treffpunkt von Literaten und Diplomaten, Unternehmern, insbesondere Reedern und Wissenschaftlern. Hamburgs längste Straße ist noch immer eine Entdeckungsreise wert. Kulturelles und Kulinarisches liegen auch heute sozusagen Haus an Haus: Schlemmerrestaurants und Sommerschlösschen, Gärten und Museen. Hochherrschaftliche Villen auf großen Grundstücken verleihen dieser Straße und ihren Immobilien ein unvergleichliches Weltstadtambiente inmitten einer Parklandschaft in den Hamburger Elbvororten. Die von uns angebotene Immobilie befindet sich in dem bevorzugten Stadtteil Othmarschen. Die Elbe mit dem Elbwanderweg sowie Sport- und Einkaufsmöglichkeiten bieten einen außerordentlich hohen Wohn- und Freizeitwert. Kindergärten und Schulen befinden sich schnell erreichbar in der Nähe. Eine Bushaltestelle in kurzer Entfernung sorgt für eine schnelle Erreichbarkeit der Hamburger Innenstadt.
                
        Adresse
22605 Hamburg
Interessante Orte
Preis- und Lageinformationen
                Preistrend für Bestandsimmobilien in Othmarschen
    
        
                    
            
        
    
                                        >
                                                                    
                                        >
                                                                    
                                        >